查看完整案例


收藏

下载
◈客厅空间的采光通透,窗帘只选择纱帘,仙气十足又减少厚重感;
◈空间主要以浅色调为主,客厅顶部做了留白设计,搭配无主灯,满足空间照明需求,提升空间氛围感;
◈电视背景墙选择浅色乳胶漆通刷,底部设计悬空地台,满足客厅小杂物的收纳,视觉上干净整洁;
◈电视墙摒弃了造型结构,用最简单的一面底色来衬托,让视觉看上去干净无物;
◈宽大吧台撑起了整个中西厨区域的亮点;
◈把原来的次卧打掉,与客厅融合,视觉感通透太多了;
◈在软装搭配上选择米色系沙发,预留空间不靠墙设计,搭配原木地面,空间烘托出一种温馨浪漫的氛围;
◈整个空间干净且温馨;
◈浅色的窗帘、显色的沙发、浅色的地毯,浅色的墙面,再用局部的重颜色点缀,空间的温度和立体感全有;
◈玄关设计除了基本的使用需求,还显示屋主品味的作用,本案中考虑到隐私问题,在玄关处加上长虹玻璃隔断,简约有质感,可以转移一些注意力,左侧设计一面通顶衣柜,延申出来换鞋凳方便使用;
◈地面选择奶油色地砖,与原木地板拼接设计,还达到空间过渡性,又方便清洁;
◈餐桌和餐椅的深色系使其在空间里格外立体,背景墙选择白色乳胶漆,搭配上石膏线条的装饰避免单调性;
◈超大六人餐桌绝对满足了家庭聚餐的需求;
◈个性吊灯为就餐环境增添氛围感;
◈餐厅设计在沙发后面预留的空间内,打造宽敞舒适的开放式餐厅设计;
◈就餐时是餐桌,平时是书桌又是手工台;
◈厨房布局为U型设计,空间得到充分利用,柜体选择低饱和度,整体看上去整洁干净又高级,吊柜+地柜的组合,在结合家电内嵌的设计,这样的厨房不要太有格调,收纳实力爆棚,还方便存储;
◈卧室采用用了少量复古色及元素,让空间更有年代感;
◈背景墙采用白色乳胶漆通刷设计,简洁耐看,空间超大落地窗满足室内采光,无主灯设计调和氛围感;
◈床头一侧放着极简落地灯,暖色灯光低调温馨,深色的床头柜与对面角柜相呼应,略带复古元素,起到年代感的点缀效果;
◈衣帽间入口;
◈柜体选择轻复古质感,深色胡桃木丰富空间色彩感,呈现出沉稳的空间感;
◈主卧预留空间打造步入式衣帽间设计,柜体选择茶灰玻璃,让小空间显得更加通透明亮,凸显出空间的高级感,搭配上合适灯光,氛围感十足;
◈在窗户下方设计化妆桌,还能当书桌使用,一举两得;
◈卫浴是极简风设计,空间以浅色为基地色,空间看起来更明亮一些,搭配白色系卫浴产品,墙面和地面选择米灰色,二者搭配在一起太舒服治愈了;
空间采用干湿分离,选择玻璃进行一字型隔断,通透又美观。浴室柜悬空设计,搭配上可收纳的浴室镜,空间储物功能也是十足呢;
◈餐厅右侧利用厨房墙体设计岛台位置,平常用于吃早餐,简易就餐,午后喝喝咖啡等,绝佳的休闲一角;
◈顶部吊顶选择原木吊顶,与客厅区域形成一个视觉过渡,无主灯设计给空间蒙蔽上一层滤镜,让家更富有疗愈力;
▲原始结构图
◈位于海淀万丰路18号院橙色年代,二手房改造项目;
◈全部南向;
◈内部比例协调;
◈室内室内无明显过梁;
◈暖气温度充足,
◈客餐厅一体空间。
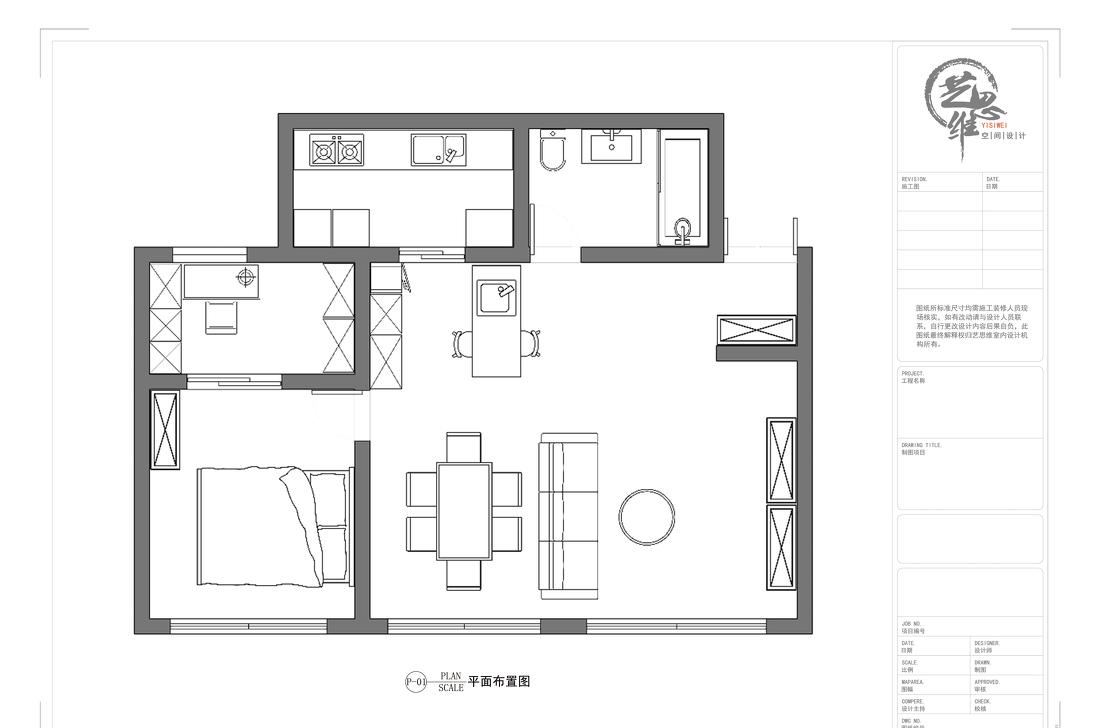
▲平面布置图
◈入户设置半遮半掩景观柜,打造第一视觉亮点;
◈把次卧与客厅打通,形成更宽敞的客餐厅空间;
◈设置中西厨,满足更多的厨房功能;
◈西厨设置吧台,有足够的休闲空间;
◈独立衣帽间;
◈全屋色调采用中性色为主色调;
◈空间色彩需要与软硬装相互协调,形成软硬装统一效果。
客服
消息
收藏
下载
最近























