查看完整案例


收藏

下载
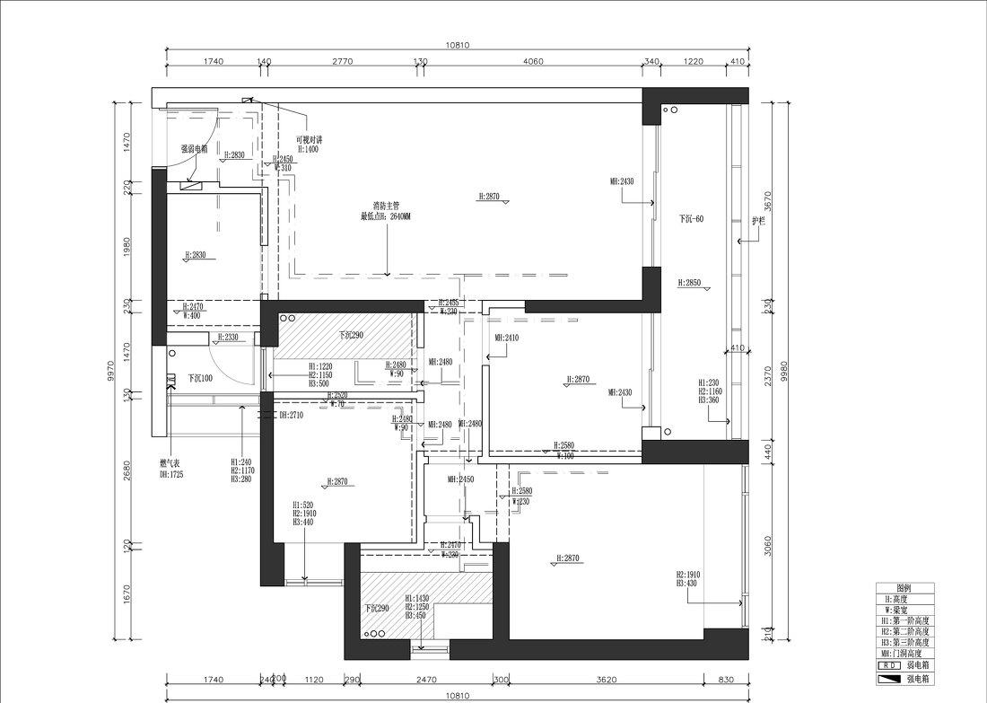
原始户型图
平面方案图
1.由于进门有个强弱电箱,设计师在进门这边把墙体做成鞋柜的形式,把电箱藏在鞋柜里面,并且做了储物的空间;
2.利用玄关处的墙体做了延伸,做成了岛台+餐桌的形式;
3.业主虽然是一个人居住,但是还是需要一个厨房,设计师将厨房面积扩大,增大了厨房的操作空间;
4.生活阳台的面积缩小,主卧面积扩大做成现有的书房兼衣帽间的形式
低调沉稳的空间,艺术与生活同行,演绎不一样色彩的家。沉稳、大气,让人在喧嚣的都市中静下来,享受家中的安静,放空自我。
在自然光线的光合作用下,大面积的黑色与棕色互动的隐现出材质的肌理感与线条感。利用暗黑系的木饰面板定制而成的电视柜,在柔和的灯光映射下赋予空间独特的光影魅力。
天花错落的层次与沙发背景色彩形成强烈的对比,创造空间融合以及视觉张力,通过几何图形的拼接与沉稳的色调突显业主的成熟气质,空间的艺术性设计和业主的气质产生了共鸣,构造属于自己色调的家。
阳光穿过通透的白纱,给予空间家具无限的光感,延伸了空间感,让家成为不一样色彩的艺术空间
肌理质感的长条实木餐桌配上黑灰色皮质餐椅,与简洁的白色天花形成隐形交汇,共同演绎低调而大气的风范。
嫩绿的枝芽与时钟装饰的搭配,让整体用餐环境简洁而雅致。
玄关的另外一面便是厨房,简约的L字型厨房,线条干净而没有繁杂的装饰,大理石地板搭配灰色橱柜,简洁而富有质感。提供操作台的同时,也为厨房整洁提供充足的收纳保证。色彩上高级灰与简洁白,加以天然石纹肌理点缀,时尚大方,演绎别致的生活美学。
设计师结合各种的日常家居需求,让生活更加舒心。
主卧兼具舒适与沉稳感,简洁利落的墙面、木色纹理的地板、与墨绿的硬包在隐藏式灯光下营造出宁静素雅的氛围。
大面积的窗台提供了绝佳的光景与视野,每当街灯初上的夜幕。坐在飘台上手捧读物,看着窗外的车水马龙,告别每一个夜晚。让从不同的生活状态或情绪中归来的业主,找到属于自己的归心处。
进入主卧便是衣帽间,满足了生活、收纳所需,还以空间以纯粹,使得空间的利用更加合理。设计师还在柜体旁设置了书桌,坚决实用与美观,物件摆放颇显自由的态度,在光线的走动下呈现出不同的风格。
通彻明亮的落地窗,更适合男人独自安静地办公。主卫利用低饱和的线性光源勾勒出整个空间的轮廓,使得空间更具有雕塑感。肌理感的黑色墙面,让空间在科技感与未来感中展现出生活品味。
主卫利用低饱和的线性光源勾勒出整个空间的轮廓,使得空间更具有雕塑感。肌理感的黑色墙面,让空间在科技感与未来感中展现出生活品味。
公卫延续了主卫的整体色调,将高级黑的极致魅力尽情晕染,简约而干练的设计感加上隐光灯带的渲染使得卫生间大气而高级。
客服
消息
收藏
下载
最近





























