查看完整案例


收藏

下载
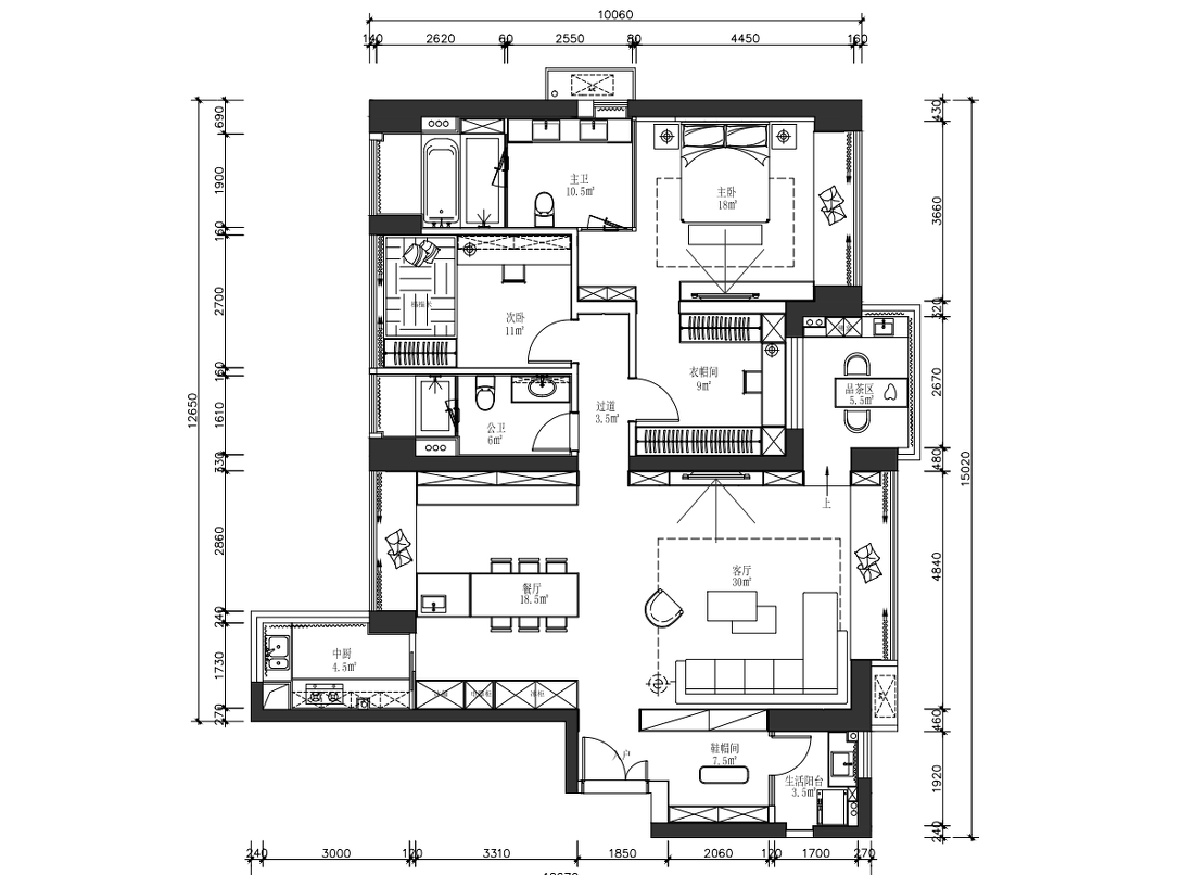
平面方案图
设计师根据业主的需求,设计出一套专属于他们夫妻的生活空间,以深色系为基底,为其打造了一个有品位格调的现代空间居所,最大化地开放视野,让家居生活更加有深度。
①将原本玄关处的墙体拆除,做成了一个鞋帽间,设置了一排矮柜可以放置鞋子和储物,把生活阳台门做成了玻璃门的形式,让采光更加通透。
②原本的生活阳台改成了中厨,原来的厨房空间缩小,进而扩大了餐厅的面积。
③增加主卧空间,其中的一个房间用玻璃窗隔断做成了茶室和衣帽间。
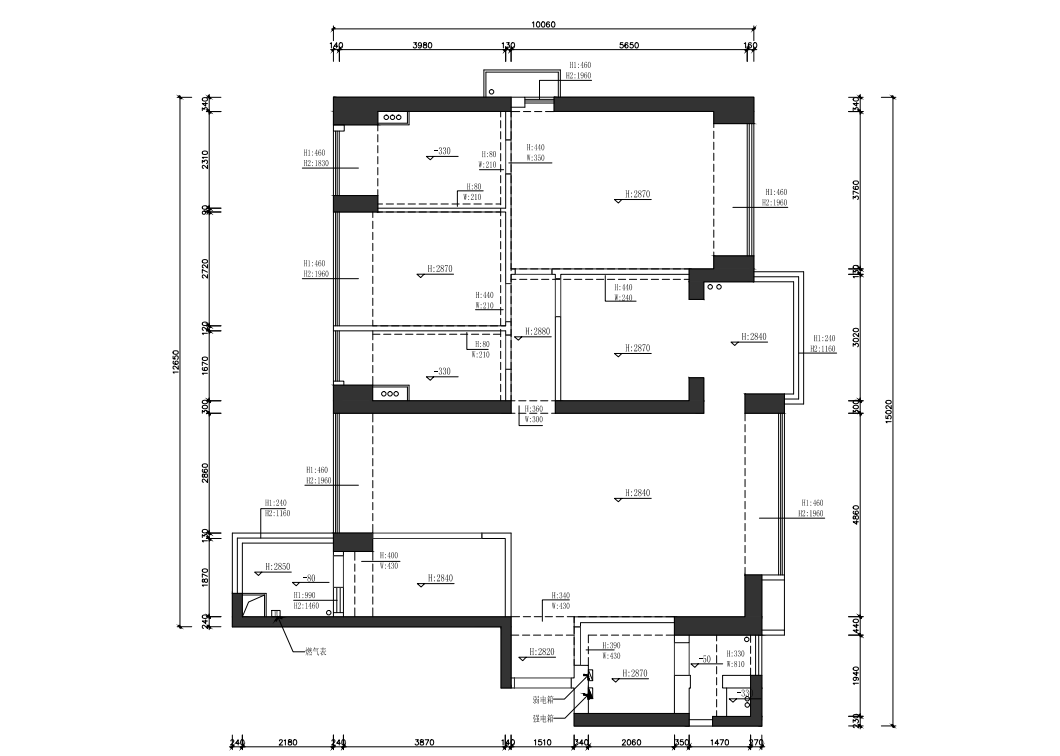
原始户型图
在原始的房子结构中,一进门玄关的位置没有放置鞋柜的地方,而且采光性不够;业主在家不经常做饭,但需要配置酒柜、烤箱、餐边柜以及研制咖啡的岛台。
餐桌侧边的暗藏灯带采用了暗藏内嵌的设计手法,创造出清晰的轮廓感和高级的氛围感,为整体空间增添了一道点睛之笔。
深色的硬包背景拼接深木色的搭配,灰色系的床品尽显格调,在灯光的照射下提升整体空间的氛围感与质感。
进入主卧,衣帽间采用大量的黑玻璃元素让现代的风格扑面而来,也丰富了空间的层次感和美感。
现代风格的设计,以优雅与沉稳的材质为主,总体以深色木饰面为主,大理石元素为背景墙,局部以亮色有质感的软装陈设与随处可见的咖啡机作为点缀,整体的现代韵味与咖啡香气让人沉醉其中。
禅意与中式结合的茶具,为空间打造了一种宁静致远之感。
深沉的色调在光透的作用下,呈现出大气稳重之态,是一种有态度的中式氛围。
定制柜与展示柜的几何,兼具收纳与展示的功能。
餐桌+岛台一体化的设计,让空间的利用更加细致;灰色餐桌与大理石岛台的结合,让空间风格和谐大气。
主卫同样也以深色系为主,深色纹理的大理石衬托起大面积的浴缸,干湿分离的设计,品质感十足,化妆镜层次分明的的灯光,干净利落的空间,呈现出不一样的品质。
大理石与展示柜在统一的平面上,更加凸显质感。
深灰色的沉稳空间被黄色的装饰品带动活跃了起来,使得空间不再单调乏味。
现代风格的茶室在于其简,无需过多的设计元素堆砌,简单的茶具就能营造出意境。
使用了质感哑光的黑灰色餐桌,加上深色纹理的大理石支柱,餐厅内的桌椅使用皮革带质感的材质,让空间的氛围感变得松弛,烟火气也变得干净利落。
透明的推拉门打开,便是中厨的空间。偌大的飘窗设计,在夕阳落下时分,在此用餐也增添了些许情调与氛围感。
灰冷色调的家具,阳光透过窗户照射进屋,让生活空间增添了一丝暖意,精致的生活,藏在日常的细节中。
设计师用深木和黑色的格调搭配,赋予空间大气的居家格调,勾勒出纯粹干净的线条感。
棕色的真皮沙发在极简的无主灯的照射下尽显优雅,下方铺设了大块的灰色的方形绒毛地毯与沙发相得益彰。
通透的飘窗,挑空的位置内嵌灯光,明亮的光线自由流淌,而光是最美好的设计。
入户玄关可以便捷的完成换鞋、卸下外部装备的一系列动作,深色系的大门与柜子相互搭配,让整体区域统一又实用,解决了业主的收纳需求。
卧室使用灰色基调,当清晨醒来,推开窗帘,映入眼帘的便是一副美景,营造一个轻松的环境气场。
客服
消息
收藏
下载
最近

















































