查看完整案例


收藏

下载
客厅看向餐厅、厨房
客厅天花做了弧形处理,与过道处门洞相呼应。放眼过去,空间没有被隔断,视觉上开阔明亮,厨房与餐厅的动线更是便利了一日三餐。
电视柜的一体化设计,既满足了收纳,也满足了业主放置乐高展示柜的愿望。一整面的艺术涂料从玄关处一致延伸至电视墙处,让视觉得到延伸。客厅窗台处设立一个开放书柜,平时坐在窗台上阅读充电也是十分便捷,开放的设计也许会难于清扫,但却能提升阅读的几率。(懒人如小编想看书时却受到了柜门的阻拦可能就直接放弃看书的念头~
浅驼色的三人位沙发,憨态可爱,与浅青色的边几搭配相得益彰,低饱和的色彩总是耐看些,也不会产生突兀感。两侧使用吊灯+落地灯,不对称的形式让生活平添一份趣味。发现了吗?艺术漆将电视区与沙发区连接到了一起哦~
慢慢充实自己家的感觉真不戳哈~
吊灯与落地的细节图
景深细节
客厅温馨一角
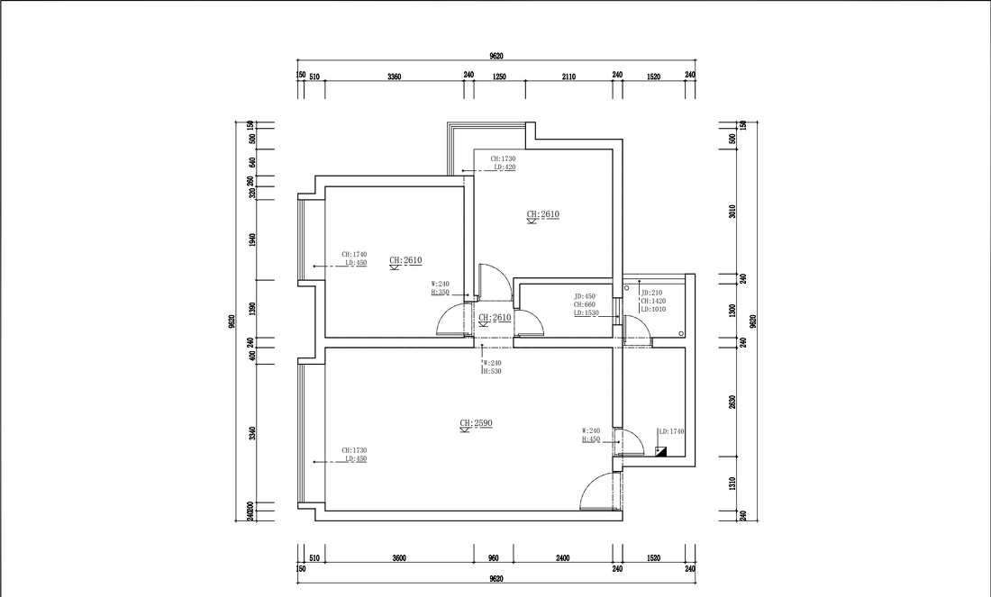
原始户型分析:
1.采光稍暗,厨房操作台较少
2.公卫采光差,无法做到干湿分离,洗衣机放置在厨房外的生活阳台,无隔离油烟多
3.次卧较小,无法满足屋主收纳+书桌的需求
4.主卧开门见衣柜阳角,体验感受较差
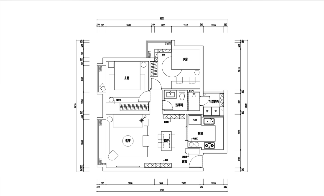
方案优化后的平面布置图:
1、更改生活阳台动线,由公卫进入,做了整扇的艺术玻璃门,增加公卫采光,调整过道及公卫尺寸,使得公卫做到干湿分离
2、厨房墙体借用餐厅部分空间,台面改为U形台面,增加操作空间的同时使厨房扩大
3、原客餐厅比例比较狭长,过于浪费空间,与厨房尺寸调节后比例更加和谐
4、调整两个卧室的墙体,让次卧拥有收纳+书桌的功能
5、主卧房门移位,床尾做到一整面收纳衣柜,空间不减的同时收纳加大
玄关全身镜与洞洞板的结合,让包包、钥匙及帽子等物品有了专门放置的区域。出门或回家随手拿取十分便利。
进门右边安排了一个“漂浮”的到顶鞋柜,连接换鞋凳,储物功能强大,下方放置常穿的鞋子,随换随走~
(鞋柜没有拍到···失策失策)
餐厅看向玄关
心情糟糕的时候一束小雏菊就能达到治愈的效果
餐桌居中放置,让四周形成环状动线,活动方便。简洁线条感的餐桌椅显得轻盈,也方便卫生的清洁。
根据屋主的需求,设置了餐边柜,白色的柜体与墙面融为一体,视觉上干净整体,做了部分开放处理,预留了插座放置饮水机,让生活更加便捷。
餐厅望向客厅
窗帘拉开,采光立马能穿透整个客餐厅,大面积的浅色系+小面积的深色点缀,达到一个美的平衡点。餐桌上的一束小花、一盆沁甜怡人的水果,将自己热忱的一面积极展示给生活~
随手用手机拍摄的照片打印出来也是温馨满满,夜晚来临,点上一支香薰蜡烛,氛围感马上就被渲染起来。
餐厅望向客厅及主卧区域
弧形的过道拱门上方设计了隐藏式的挂机,L型的风口百叶与天花形成整体,更加简洁美观。拱门内侧用红柄色区别白色的墙面,更显精致。
主卧床头背景木饰面与乳胶漆的结合,另一侧做上吊顶使得空间更平衡,护墙板的灯带在晚上也不会刺眼,躺着看书更加惬意。
床尾一整排超大的收纳+梳妆台的结合,满足强大衣物收纳的同时最大化利用空间,白色的柜门与整体的墙面一致,整体干净美观。
梳妆台细节
展示架可以放置一些小摆件和书籍。梳妆台与衣柜使用穿插的手法,抽屉外置既能满足女屋主日常存放护肤品的需求,也可以使衣柜做满挂衣区,功能的区分更加明显。台下还预留了插座备用。
床头细节
主卧日常采光极佳,无法改造的飘窗台偶尔也能充当阅读区,多留给屋主一个充电学习的区域。
次卧目前作为屋主二人的休闲看书空间,用于采光的窗也有一个转折的飘窗台(不得不说顽固性的飘窗台不能打掉改成落地窗真是有点浪费),窗台作为充电阅读区域,将它包裹起来延出一部分空间用来放置书籍,阅读时随手拿取,十分便利。
屋主二人的“电竞”区域
“来一局吗?”
“走起!”
次卧除了作为休闲区,还需满足老人及朋友的偶尔住宿需求,简单设置一个常规床+床头柜即可。床尾也留了衣柜,满足存放换季被褥或入住衣物收纳的条件。
床头细节
卫生间原本阴暗狭小,改造为干湿分离,原生活阳台的动线由厨房改为卫生间,选择透光不透人长虹玻璃门,增加了厨房的操作台面,也增加了卫生间的采光。
洗衣机、干衣机及热水器等这些“不太美观”的家电统统“藏”在生活阳台,只给外界展示美的一面,同时还能余出一部分空间用于收纳。给厨房开了一扇窗,增加其采光。
U型的厨房不管是收纳空间还是操作台面都大大增加,下厨不再挤挤挨挨,提升生活幸福感~
来自生活阳台的采光
客服
消息
收藏
下载
最近



































