查看完整案例


收藏

下载
看着家中的各种小东西,装扮
就知道屋主对生活所向往的美好
精心一点一滴地装点着一个温馨属于自己的家
对他们来说,生活中不仅要有美的事物
还要有美好的回忆和幸福感
在一整排的柜子上预留了一个悬空的换鞋凳,加上其它地方不做柜门的设计使整面柜子不至于死板压抑。换鞋凳下部留出宽敞的空间方便临时更换的拖鞋存放.穿衣镜放置在这个区域,方便每天出门上班时整理仪容,这条gai最靓的崽就是我啦~
客餐厅是家里的收纳主力,一整面的收纳柜齐平,所有的柜门采用暗扣手,无把手设计更显得空间线条干净。整排的收纳柜让家里的每一寸地都没有被辜负。白色与木色的经典配色让空间明亮清爽,黑色的展示柜与黑板墙色调呼应,增加了一丝趣味,让家里具有更多的可能性。
虽然只是两口子常住,但是收纳空间是只能多不能少的
家里是否整洁,很大程度上取决于收纳。
根据自己的喜好装点每一个角落,每一处角落就都会是自己喜欢的样子。
设计师最大挖掘空间的可利用性,选择开放式生活布局,空间以白色大基调奠定,辅以木色点缀。
整个客厅空间不大,大面积白墙设计与简单装饰画搭配,增加空间明亮度以及设计感。柔软的皮质沙发色调虽较深,但在大面积白色与木色的空间里还是让人有眼前一亮的视感。开放式的空间让工作区与客厅也能产生良好的互动性,在疫情期间无法外出办公只能在家忙碌时,我就在一旁看书无声陪伴···这样的场景在这急躁的社会里往往最是治愈人心。
开放式的客厅,与厨房餐厅相连,拥有落地式的窗户,阳光充沛,设计师摒弃繁华堆砌,简洁的线条,温和的色调,安宁地诠释出静谧的格调。
客厅一角,绿植的点缀让整个空间变得更加生机盎然。
“ 客厅我需要能够满足办公、同时要有个书架、也可以展示旅游纪念品.....”屋主想要的都实现啦,利用边角的位置空间开辟出办公区,不会占据过多的位置也不会遮挡光线,最近天气变冷,让阳光洒在身上暖一暖~
根据自己的喜好装点每一个角落,每一处就都会是自己喜欢的样子。
厨房采用灰色的墙砖与白色柜体相结合,搭配白色石英石台面,使得空间更加明亮,对比度更强。
开放式的厨房增强了客餐厅之间的互动性也使整个空间更加的开阔,利用不同颜色及材质的地砖将两个区域区分,空间虽独立却又趋于完整。生活阳台这边是整个建筑的一个通风井,白天光线也很弱,对厨房的开放式的设计会增加厨房的一部分采光,橱柜、操作台面及地砖都是选用的白色,对于提高光感也是很不错的选择,这也是屋主一直想要的。
在餐桌周围与所爱之人共享温馨小叙、精致美食和香醇葡萄酒,共度一段美好时光是我们的重点,在舒适的环境中分享故事、欢笑和温馨一刻,沉浸在休闲放松的氛围当中,放松身心。
餐厅黑板墙的设计记录日常生活的小确幸让生活增添了一丝趣味性,又增加与家人的互动性 。
家中的每个角落,随便拍张照片都可以成为一个小场景。
日常再忙碌,也请记得好好生活~
主卧延续客厅的风格 简单一点,没有过多的装饰,两侧的床头灯均为独立开关,夜间使用互不打扰。
墙面整体使用暖黄色乳胶漆,干净纯粹,相对大白墙的冷淡多了一丝温暖,却又不输于它的明亮。
床头的壁灯,增添氛围感。
次卧采用榻榻米形式,材质和色彩方面主要以温馨舒适为主,延续了房子的整体风格,白色与木色的搭配舒适明亮,也能满足父母的偶尔来往的需求。
次卧空间虽然比较局限,但还是留了衣柜与书架的位置
卫生间简单的三件套,墙地一体的墙砖,简洁统一。
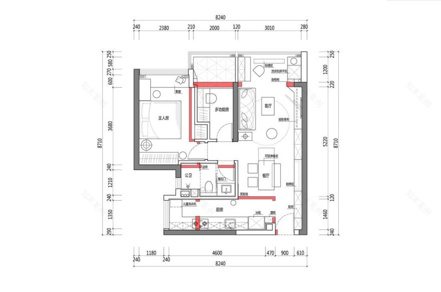
原始墙体拆除图,对于室内非承重的墙体几乎都拆除了,虽然有些墙体只有细微的移动但是对我们平面布置及整体空间而言有着差之毫厘谬以千里的影响,每一个墙体的移动都是经过深思熟虑的考究这就决定的我们整个空间的舒适度、以及生活的品质。
优点:原户较方正,光线通风较好。
缺点:1.厨房较小,生活阳台比较鸡肋。
2.卫生间想要干湿分离,按照原有户型,无法满足。
3.主卧的深度较短,放了床之后不能正常走动。
客服
消息
收藏
下载
最近


























