查看完整案例


收藏

下载
本案是一家五口住,男女业主、一儿一女和老人。这个家是足够满足他们的日常生活,居住的人数也不算少,所以怎样最大化地提高居住的舒适度是我们需要认真琢磨的问题。
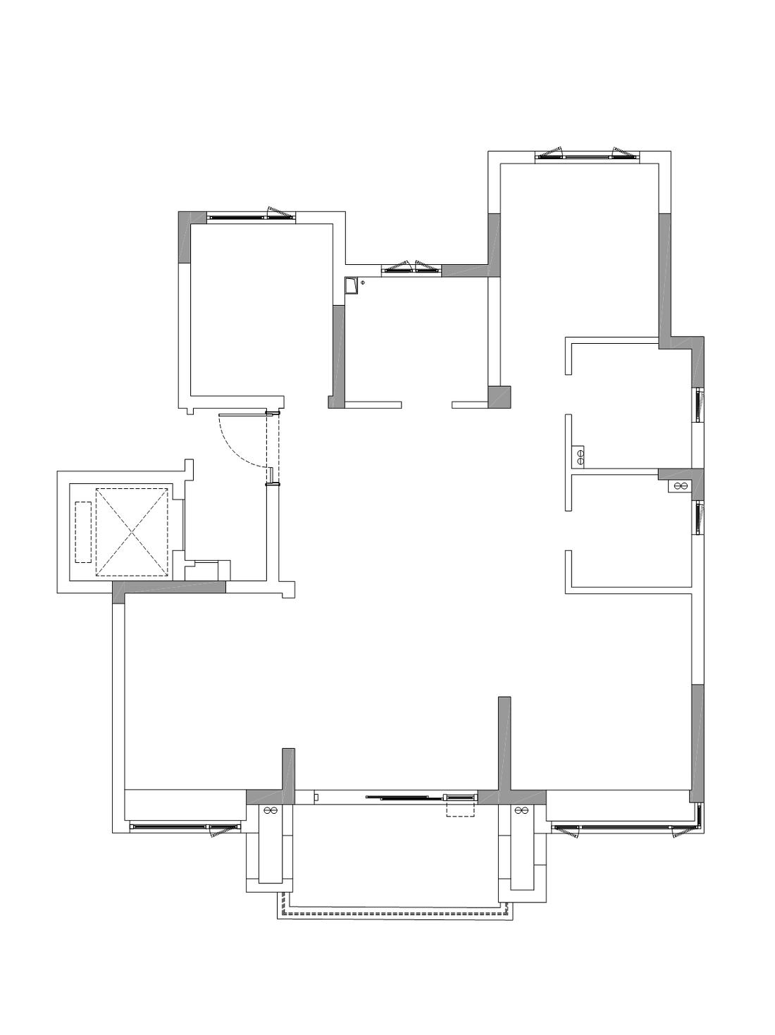
房子的大框架还是可以的,我们在局部进行调整,优化使用空间以及高利用度。为了加强主卧的储物空间和舒适度,将主卫向外推,但是在保证两个卫生间的舒适度以及不占用父母房面积的情况下,设计师将两个卫生间的淋浴区合二为一。
次卫看向主卫角度,淋浴区恰好处在中间,无论是从主卧还是公共空间都可以进来。拍摄的时候淋浴的玻璃门还没贴膜,现在业主在两面已经贴了膜,所以隐私性是绝对没问题哒!
#主卫# 想看更直观的卫生间以及全屋视频,可以dy搜索“菲拉设计”。
这套作品是混搭风,不限制于风格,打造业主想要的随性自在的家,在整个的调性保持和谐就好。有美式的踪迹、有现代的调调、有法式的浪漫......
米白色的亚麻制沙发坐感超级棒,客厅作为一家人的公共区域,舒适自在便是的最大诉求。周末业主会陪小朋友在沙发上或者地摊上打打游戏。一个慵懒舒服的沙发是幸福感好物必备。
客厅绿色护墙板作为沙发背景,几幅画的点缀,精致浪漫。主卧门藏在其中,看出来了吗?
进门右手边做了一组玄关柜,刚刚好和女孩房卧室门保持同一水平线。实用与颜值的契合~,顺便说一句,女孩房也是隐形门,整个面干净清爽很多。
电视墙旁做了一组展示柜,一家人喜欢的乐高、盲盒和娃娃被塞得满满的,都是爱呀。
我们去拍摄毕业照的时候业主已经入住了,恰好一家人在吃早餐,简单幸福。而且一进玄关就是先经过餐厅,再进到客厅,所以这也是我们的用意,餐厅保有质感的舒服清爽就好。
背后的墙壁选择木饰面装饰,下面做墙裙分隔处理,一是为了美观,二是家里有两个小朋友,便于保持整洁和打扫。
卧室整面落地窗采光很好,所以在里面做了一个休闲的小区域,浪漫惬意~
床头的大理石边几和客厅沙发旁的是同一个系列,质感很好,价格也是在线的,1k左右。
镜面床头柜,会更显空间敞亮,当然脏了也会更明显哈哈。看个人干净程度自行选择哈哈。
业主自己很喜欢买的一个边柜,中古调调。
#次卧# 业主父母在住,打造一个温馨的氛围。
储物柜做了一个线条、结构穿插的造型,小孩子的房间拒绝生硬感。
很好看的森林壁纸,本来觉得应该会很花很乱,但是现场发现真的是杞人忧天了,质感超棒,看画看的有点入迷哈哈哈,当然也是和价格成正比的。
客服
消息
收藏
下载
最近

























