查看完整案例


收藏

下载
项目名称:墨白
设计机构:菲拉设计
设计师:宋雄飞
项目类型:硬装设计,软装宅配
项目地点:浙江湖州
项目面积:380㎡
# 墨 白 #
“少”不是空白而是精简“多”不是拥挤而是完美
形式依赖于结构
但不受结构限制
它从结构中产生
反过来又要求精心制作结构
—密斯·凡德罗
(密斯·凡德罗,德国建筑师,亦是最著名的现代主义建筑大师之一。)
密斯·凡德罗
代表作品—巴塞罗那国际博览会德国馆
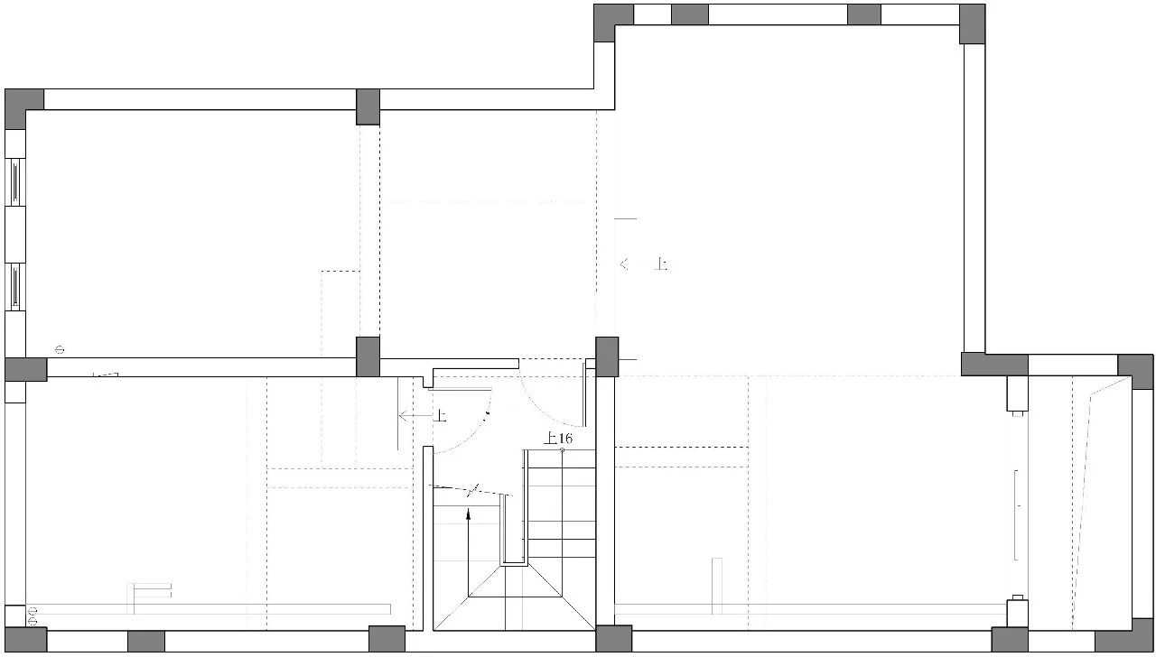
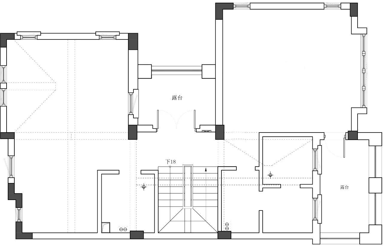
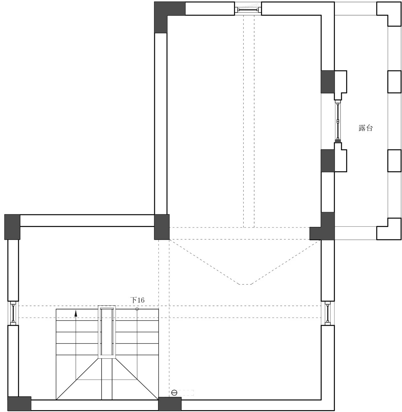
/ 原始结构图 & 平面设计图/
负一层
负一层
一层
一层
二层
二层
阁楼
阁楼
没有杂乱的装饰
没有无中生有的变化
没有奇形怪状的摆设品
只有结构本身和功能之间的衔接
# 客 餐 厅 #
# 主 卧 #
# 次 卧 #
# 休 闲 区 #
主案设计师
创始人/设计总监:宋雄飞专业:环境艺术设计
宋雄飞,专注于室内空间设计,创立了自己的品牌公司“菲拉设计”。带领着一批具有崇高设计梦想的青年团队,一直在设计的矛盾中寻求突破。善于结合生活将空间重组,把空间特色发挥到极致,强调功能与美感平衡,尊重使用者的真实需求。生活方式决定空间形态,为很多业主量身打造了属于他们自己别具一格的家。
主要业绩及获奖情况
中国空间设计艺术大赛-- 创新中国-- 最佳设计作品金奖;
创新中国空间设计艺术大赛 十佳杰出设计青年;
亚太空间设计 百强设计师奖;
好好住营造家奖;
《第八届大金内装设计大赛》综合设计 公寓组 铜奖;《第七届大金内装设计大赛》全国综合设计 公寓组 铜奖;
国际空间设计大奖《艾特奖》 围奖;
中央财经频道 CCTV2《交换空间》栏目受邀设计师;
杭州电视台 3 频道《生活大参考》栏目受邀设计师;
杭州电视台 4 频道《家居我来帮》栏目受邀设计师;
作品发表《装修情报》《家居视界》《杭州城报》等平面媒体
设计案例:绿城-- 中交悦西溪样板房、绿城-- 兰庭伍重院、绿城-- 桃花源、绿城-- 富春和园、绿城-- 翡翠城、新湖-- 武林国际、滨江-- 城市之星、雅戈尔-- 御西湖、碧桂园杭州样板房、云龙十一景、彩虹城、风雅钱塘、金基晓庐、钱江时代等
杭州菲拉装饰
客服
消息
收藏
下载
最近










































