查看完整案例


收藏

下载
夜幕下的YEARLY PLAN服装概念店——深圳南油新街口
“我们想知道,它可能是什么,它必须是什么,以及不该是什么……
我们想创造一种秩序,它使所有的事物各就其位。
我们想要每个事物都回归本质。
我们期待着完美的实现,使我们所创造的世界由内而外地绽放。
我们别无他求,更多的,我们也无能为力。”
(Ludwig Mies Van der Rohe 1886-1969)
密斯将裸露的结构定义为新建造艺术的造型标准,它明确表达了“诚实美学”的重要性,以及对那种骨架式建筑的渴求。他所期待的美学是把结构、功能和实用“奉为”目标,由此可以认为有必要放弃对于过去艺术的理解,就是通过隐藏和装饰把丑陋的结构变得“使人愉悦”的做法。对于骨架式建筑,密斯放弃通过添加“无意义”的艺术化形式来换取一种“更优越的美学”,就像年轻的尼采对历史主义的清算一样:“脱下外套,露出你们的真面目!”只有“更多的想法而不是材料”能够实现这样的目标:“我们任务的目标常常是简单明晰的。只有对其加以认识并开始设计,才能带来卓越的建造方案。
——《缺少艺术性的文字 密斯·凡·德·罗建造艺术论》
(Fritz Neumeyer)
"灵活的平面和清晰的结构是不可分割的。清晰的结构是自由平面的基础。如果没有明确的结构,我们就会失去所有的方向。
我们首先问自己我们要建造什么:开放式大厅还是传统类型的建筑,然后,在解决平面的细节问题之前,我们的工作是从(结构)选型开始直到最小的细部。如果,您首先解决了平面或空间布局问题,(后续的)一切都会受到影响,而且还不可能得到清晰的结构。”"清晰的结构,意味着什么?”"我们说得很明白:就是,因为我们想拥有满足当前标准化要求的合理化结构。"
——克里斯蒂安·诺伯-舒尔茨
(Christian Norbeg-Schulz)(Ludwig Mies Van der Rohe)
载于《建造艺术和工艺形式》
(Baukunst und Werkform)
1958年11月,第6期,615-618页
"对抽象化的追求表现为精确的几何形式,在干净的建筑体量的提炼过程中,清晰地表现为一种线性力场,并作为整体空间的协调体系支撑起建筑。"
(Fritz Neumeyer)
它达到了这样—个目标,即根据建筑的可能性,把钢和玻璃,现代材料和结构作为“新的建造艺术的真实建筑元素和构件”来使用。
1930年前后,密斯发觉实现他想法的条件成熟了。新的材料、构造和它们 “颠覆空间的威力”,为这个想法提供了理想手段,为丰富新的建造艺术带来“真正的建筑元素”,它们确保“使空间设计得到一定程度的自由,我们将无法离开的那种自由。现在,我们才能够自由地划分空间、打开空间并使之与风景相连。构造的简洁、建构方式的清晰以及材料的纯粹是新美学的光辉。”——《缺少艺术性的文字 密斯·凡·德·罗建造艺术论》
(Fritz Neumeyer)
“裸露的结构接近真实。它没有遮蔽地立在那里,那骨架比完工的房子更为清晰和完美。”———埃里克.门德尔松,《美国,一位建筑师的画册》
(Amerika. Bilderbuch eines Architelten), 1926
"秩序逻辑根植于精神原则之中,它在事实和意义、主体和客体之间建立起一种关系,并赋予生活过程以应有的意义。"
我们不解决形式问题,而是建造问题。形式并非目的,而是我们工作的结果。形式的真正完善,取决于任务的同步成长,是解决方案的最基本表达。把形式作为目的是形式主义;同样我们很少追求风格。风格意志也是形式主义。我们正把营建(Bauerei)从美学投机中解放出来,还其建筑(Bauen)的本来面目,
(Ludwig Mies Van der Rohe 1886-1969)
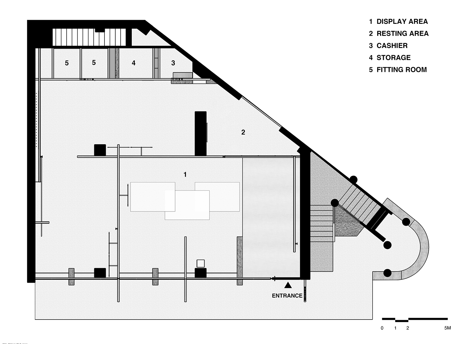
项目名称|YEARLY PLAN 服装概念店
项目地点|中国 深圳 南油
完工时间|2020.12
设计单位|PENG - PARTNERS / 鹏和朋友们设计事务所
设计团队|杜晓鹏、陈容仪、李程
PENG - PARTNERS
多莫斯设计学院,意大利米兰,产品设计系,硕士研究生;伦敦艺术大学,英国伦敦,室内设计系,硕士研究生。
作品屡获国际顶级设计奖项,包括德国iF设计奖、德国RedDot红点设计奖、美国IDA Design Awards设计金奖、德国国家设计奖German Design Award,德国Iconic Innovative Architecture设计奖(winner)、亚洲最具影响力设计奖、意大利MACEF Design Award设计奖、亚太设计双年奖最佳产品设计大奖,以及被《漂亮家居》杂志评选为“50位华人设计新势力”,《环球设计》2017年度最佳办公空间设计、2018年度最佳展厅空间设计等、2019年度最佳办公空间设计、2020年度最佳国际品牌旗舰店设计,2021年度最佳买手店设计。
客服
消息
收藏
下载
最近










































































