查看完整案例


收藏

下载
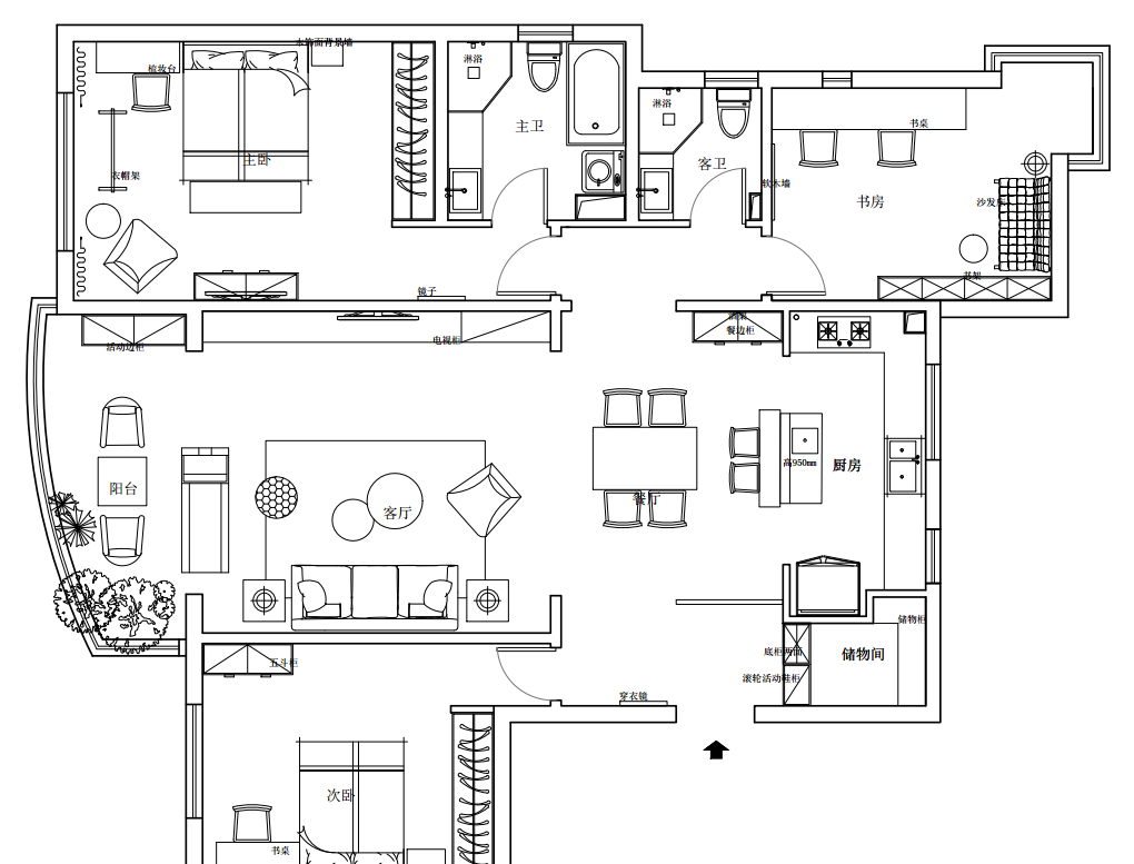
房子户型比较方正,因为是他们的婚房,功能格局大部分也比较符合他们的诉求,唯一令Y先生不满意的大概就是房子没有玄关了吧,我们在优化局部空间动线的同时,考虑玄关的改造,尽可能多的提升空间的实用性。
整体布局 1.将厨房与餐厅的隔墙打破,加入中岛吧台做为隐形的分界线,增加空间通透感。 2.为M小姐的多肉在阳台安一个家。 3.将格栅与定制玄关柜结合,将鞋柜隐藏于储物间门体中,打造出间隔与收纳两用的玄关。
轻巧的玄关柜,可以临时放些包包、钥匙或者临时需要的一些小物件,为避免鞋柜在玄关区域内太占地,所以与储物间门体结合,以隐藏的形式出现,整体化的同时,也增加了容量。
黑色的格栅与白色的柜体结合,既满足了玄关的功能性,又增强了空间层次感。
客厅整体保持最纯粹的色彩空间,以干净优雅的白色为主,搭配木色地板,与阳台连接,采光充足,深蓝色的窗帘与沙发的色彩使空间对比性更强烈。
#落地灯#沙发#茶几#南瓜墩
黑白吊灯与黑白相间的挂画,给空间带来了一丝趣味性。
餐厅主要以纤细为准,桌、椅、吊灯轻巧便捷,简单和谐。
黑胡桃木色餐边柜上摆放着M小姐超喜欢的一整套茶具与摆件,黑色搁板装饰在墙上,也让白色的墙面不孤单了。
以吧台争取整体室内的开阔感,紧邻玄关的厨房,经由餐厅连接客厅,整个餐厨空间就依附在通道旁,为求整个空间动线流畅。
厨房地面六角形地砖拼贴,地砖与地板直接对接,这对工人师傅的功力要求是相当高的。
无隔断的设计使空间放大很多,在长形的公共区域里,以无隔断的手法配置客厅,餐厅、厨房,使空间看起来更宽敞,利用家具的位置模糊区隔各空间,暗示区域的转换。
卫生间干湿分离,依然用了木色,搭配了复古水泥砖。
浴室怎能没有浴缸,墙面复古花色水泥砖营造一种独特的文艺气息。
客卫配色选了黑白灰经典色搭配。
卧室采光充足,床头背景墙用木地板上墙的方式,鱼骨拼的工艺,灰色与木色更为典雅。
卧室顶面满吊石膏板平顶,未添加主灯,用灯带和吊灯使室内空间更舒适。
定制衣柜用白色搭配木色,既扩大了储物空间,又增加了美感。
书房并没有放太多的东西,虽然已经入住半年多了,但是M小姐依然让这里...真的是什么都没有....
画框内放了许多两个人的美好回忆~
虽然刚结婚,但是还是需要考虑到将来宝宝的房间规划,床头墙漆选了淡蓝色,对面电视墙面用淡蓝色与深蓝色结合,用童话城堡的形状来迎接未来的宝宝。
阳台的复古白砖和花砖可是让M小姐喜欢死了,终于能给自己的多肉小伙伴们一个安静舒适的家了。
老物件的桌子,给了生活一些年代感。
生石花不好养,但M小姐还是在坚持不懈的养,因为太爱了。
储藏间隐藏在玄关旁,面积不大,但是实用性确超强,任何暂时性用不到的物件都可以安置进来,当然没用的东西已经通通被M小姐姐扔掉了~
客服
消息
收藏
下载
最近



































