查看完整案例


收藏

下载
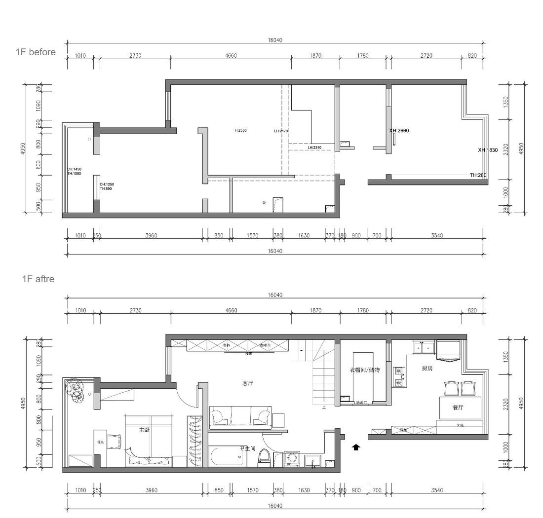
改造前:
1.入户门与厨房门相对,风水欠佳
2.入户处没有玄关,临时物品无处搁置,鞋子随地丢弃,衣服挂满了墙面,扑面而来的凌乱
3.空间零碎,收纳空间不够整合
4.厨房是暗厨,没有窗户,不通风
5.楼梯空间局促,坡度有点陡,老人小孩在此有摔倒经历,设计上需要注意
6.洗衣机在楼上卫生间,晾衣服却在楼下阳台,十分不方便
改造后:
1.原本的厨房位置改成衣帽间
2.露台改造成厨房与餐厅
3.原本主卧的小衣帽间封死,位置换成主卫的浴缸
4.整体卫生间都做了干湿分离
5.入户门处增加18公分厚度的翻斗式鞋柜,搭配定制的台阶坐垫,方便换鞋
6.为一家三口每个人都单独打造了属于自己的阅读区域
整个户型结构给玄关部分留出来的位置相当局促,安装了一款18cm厚的翻斗鞋柜,用来存放日常出入的临时鞋,从门到对面墙体的总长度也才115cm而已,有了鞋柜,无处换鞋也是一个麻烦事。
设计师根据现场的位置,将换鞋凳改成了定制的小垫子,与厨房的台阶相结合,换鞋时只需要把垫子放平即可,简单实用。
客厅的一面书柜是业主最需要的标配,不管是男主人还是女主人,甚至是小朋友的书都超多,没有一面大书柜根本承载不了这个爱阅读的一家三口。因为空间有限,选了一款黑色铁艺茶几,让空间轻巧一些,留出更多的活动空间。
大大的投影很节省空间,不看的时候就是一整面书柜。
楼梯下方做了一面储物间,与楼梯做成了一个整体。楼下一般所需的物品都放在这里,方便取用。
楼梯是一个很重要的空间,连接着楼上楼下,使用频率也是相当高,经过改良的楼梯在原来的位置,每一步台阶面宽深度增加了3公分,台阶表面贴上了防滑条,从而保证了使用者的安全。
整个一层层高2.55m,特意在卧室做了吊顶,让空间层次分明,因为是卧室,并不显压抑,反而让这个小空间更温馨舒适了些,搭配木白相间的整体衣柜,装饰画是屋主在非洲带回来的,异域风格很浓重,也搭出了不一样的效果。
原本卧室与阳台有一组连窗门隔断开,很浪费空间,将窗户拆除,原本半墙保留加改造,定制木饰面变成完美的卧室办公学习区域,满足客户的阅读需求。
暖气由半墙下方改到了最左侧墙面上。
卧室放了一副画,是家里的小朋友创作,据说妈妈经常带着他做手工,参加活动,亲力亲为,是一位非常有爱的妈妈~
入户门直接对着厨房在风水上来说是一个很大的问题,原始户型厨房空间也相对较小,无法满足全家人的需求,设计师大胆的将空间大挪移,原始厨房位置改造成为衣帽间,整面木色做了隐形门,让入户的第一感觉整齐舒适。
厨房和餐厅原本是露台的位置,将这里改造之后空间利用率更高。
厨房一面做成整体柜子,因为屋主家的玄关太小,临时物品无处存放,做这样一面柜子,也可以供给玄关临时使用。厨房没有安装门,直接敞开,这里是一步台阶,玄关换鞋的小垫子使用时铺在地上即可。
露台靠窗位置是个斜面,空调无法直接安装到最外侧,尽量安装到最高点,空调线外漏相当丑,设计师直接在这一面做了木格栅,将线直接挡在后面。
一楼的卫生间,洗衣机直接与柜体做成一个整体。
浴缸马桶与洗手池做成了干湿分离的部分,这里放了一个大浴缸,位置借用了原始户型中主卧的小小衣帽间,浴缸上放满了小朋友的玩具,可见是非常喜欢了。
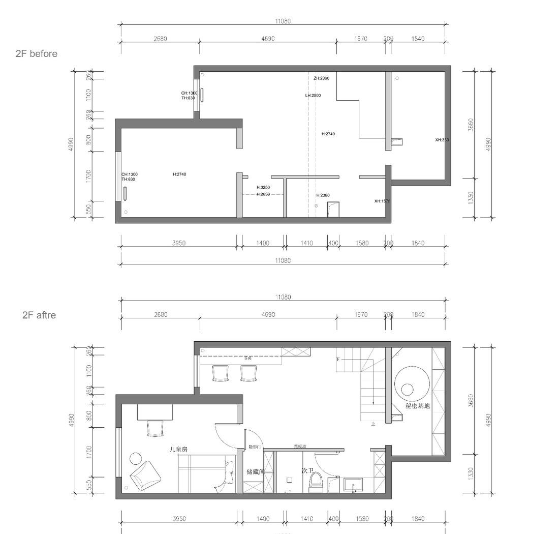
小朋友的房间在二层,刷了一整面的灰蓝色墙漆,窗户旁放着书架和地毯,给爱阅读的小朋友一个可以自己学习看书的小角落。
二楼做了一整面的黑板墙,拍照当天业主跟我们说,小朋友想了好久还是没舍得擦掉,仔细看的话,小朋友的脑洞很大,画的很好,当初做黑板墙的初衷就是给小朋友增加趣味性,看来小朋友是非常喜欢这里了,设计师也是很开心的。
二楼做了一个储物间,热水器安装在这里,平时很少用到的物品都可以放在这里。
百叶窗旁的位置做成了办公角落,这里也有一面大书柜,依然是满满的书。
阁楼上有个很小的空间,做成了小朋友的秘密基地。
平时的玩具太多了,通通放进这个秘密基地,小朋友的专属空间,也会偶尔爬进来玩一玩。
二楼的卫生间依然做了干湿分离。
整个设计从前期设计到最终落地,前前后后花了大概八个月的时间,业主夫妻人很好,也感谢下业主的理解与支持,好的设计与业主也是分不开的,在此谢过~
客服
消息
收藏
下载
最近

































