查看完整案例


收藏

下载
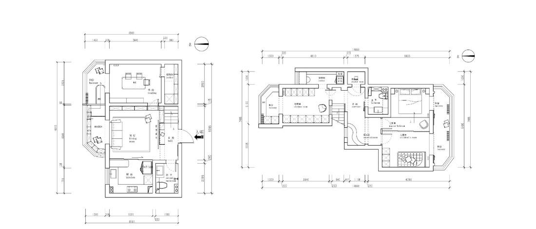
本案户型为上下两层,局部空间对应重叠,一层单向朝北,二层为南北通透。
户型分析
优势:①两层阳台空间较大
②各个房间相对方正
③部分空间为轻体墙,可拆除
劣势:①客厅空间零散,四面均无独立完整墙体
②老房管道多,且不能移动位置
③一层只有单面朝北向采光
平面改造重点:
一层
①厨房外墙拆除后,整体向客厅侧扩大,用3扇推拉门变为可开放、可封闭式的厨房。
②客厅电视方向由原格局的东西向改为南北向,增加了一面书墙。
③将原本两个利用率不高的阳台合并为一个儿童娱乐空间。
二层
①将占地面积不小却昏暗不便利用的走道空间改为开敞的儿童阅读角。
②将靠近卫生间的狭小储藏室,改造成独立的淋浴间。
③主卧和儿童房作为可分可合的空间。
下班回家后休息的第一个空间便是这里,孩子们可以光着脚丫在地上跑来跑去,所以在家具选择上都是以柔软灵活为主,取消了传统的茶几,将收纳功能放在了一旁的书柜上。
电视利用玄关背后的格栅进行了固定,让客厅空间尽量开敞。客厅所有的门、柜把手全部做成了暗藏形式,避免孩子磕碰。沙发背后设计了40公分高的地台,即可储物,又可以变成孩子的娱乐空间。
柜门和书房门合二为一,减小了门扇开启所占用的书房面积,同时外侧看来客厅空间更加规整。木格栅和玻璃结合的隔断给空间增加了一个玄关空间,同时并不影响采光。
三扇联动推拉门可以方便地将厨房和客厅彻底分隔成两个空间,解决了煎炒烹炸的油烟问题。
U形厨房一端增加木质吧台的结构,可以解决小两口早上的简餐问题。吧台腿儿上安装了两个滑轮,可以将吧台延长,为厨房增加更多的操作空间。
吊地柜中间用了斜铺小白砖。
阳台整体抬高40公分,下面榻榻米可以完全储物,利用窗户下沿的剩余尺寸给宝宝们做了玩具收纳柜,收纳柜的抽屉也是走上滑梯平台的楼梯踏步,贴近榻榻米的抽屉可以拉出来当第一步台阶,收回去又和其他抽屉看起来别无二样。
自从有了这个空间,大宝和二宝天天都要在这个位置循环无数次,其他小朋友来到家里也玩的不亦乐乎,好几次小伙伴走的时候都要哭上一鼻子,久久不愿意离开。
来客人时,这里是餐厅。休息时,这里是陪宝宝们玩耍、写字的空间。夜晚时,这里又变身加班的氛围。
客厅阳台延伸过来的滑梯
楼梯立面选用了蓝色,一直消失到壁画的海平面处。
上一张图的对立角度,海平面上初升的太阳沿着屋顶蔓延到夜晚的宇宙星空,直至海洋。
14、作为通向两个卧室的主通道,其本身面积并不小,但是利用率非常的低。修改之后我们将这个位置定义为了读书角,现场工人制作了两层弧形梯台,既能放书,又能当作台阶来使用。通常是睡觉前宝宝们围着妈妈听故事的地方。
儿童房与主卧之间用了玻璃隔断,打开后同时拓宽了两屋的视觉感。妈妈更希望能在一点一滴的地方全程参与孩子的成长,而不是把他们关到独立的房间里。在小的时候,爸爸妈妈会在意到给他们足够的安全感,等到长大时在分开独立的房间。
上下床除了解决孩子们的睡觉问题,最下方还有与床同宽的拖拽玩具箱,零零散散的玩具全部可以放进去。
在淋浴房和卫生间中间扩充出一个干湿区过度空间,既能作为进出湿区的更衣区,也能避免将湿区的水直接带到地板上。
卧室是储物地台和床垫的组合形式,大宝二宝经常会来蹭睡,一个躺在爸爸边上,一个躺在妈妈边上。齐平的地台,保证了不让孩子们摔落下去。
床头两侧有结构柱体,不能拆除。索性用木板直接包住,做了床头柜。
客人来时大部分是使用一层的卫生间,那么二层卫生间相对来说隐私一些,所以可以更加个性化,让孩子们眼中的世界更加丰富多彩。
客服
消息
收藏
下载
最近

























