查看完整案例


收藏

下载
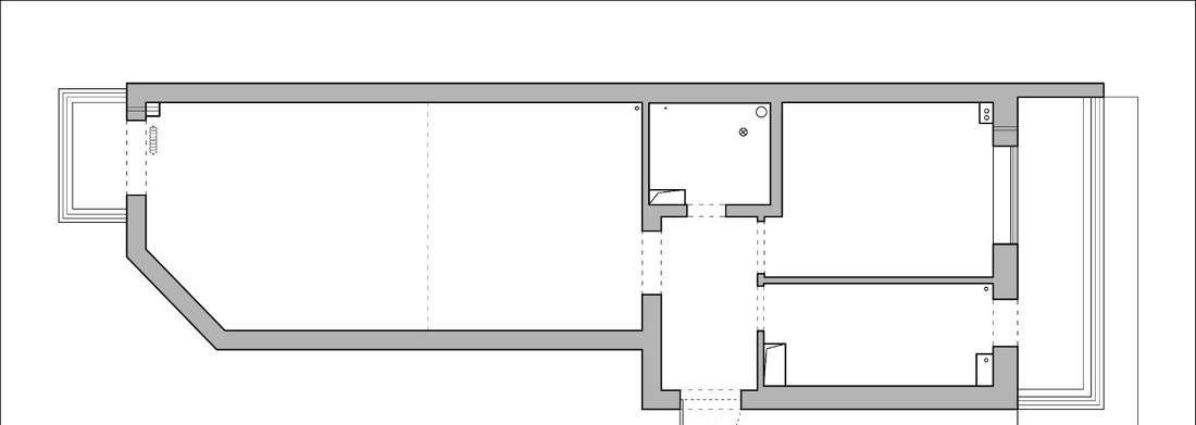
这是一套小两居的户型,前业主已经把主卧室和客厅打通,可以看到主卧室的利用率有部分损失,因为方位的缺角,无论是床体摆放或是衣柜等其他家具摆放都是一个绝对的硬伤。
另外,厨房阳台过于狭长,由于过道宽度的限制,厨房储物空间也比较鸡肋,并且对次卧的采光也有阻碍。
平面改造重点:
1. 主卧利用衣柜的切面将空间斜角结构视线缩小,充分利用空间进行收纳。
2. 客厅打造出一个无电视空间,做为全家人读书学习聊天的场所。
3. 洗手台外置,卫生间做了干湿分离。
4. 增大儿童房的面积,以地台和高床铺的结构进行组合,同时保证了衣柜、书柜和玩具柜的空间。
5. 卫生间进行了局部开窗,增大采光。
整个空间以白色为主,改善了原先昏暗的环境,用木色家具和灰色涂料进行了局部的点缀。随着时间的推移,人们或多或少的都会添加生活物品,比如旅游带回来的纪念品,或者是小朋友DIY的作品,所以我们在前期对这部分收纳空间都做了预留。
书架墙以抽屉和开放的形式进行组合,零碎些的物品可以放在随手可拿取的抽屉中,开放部分可以放一些摆件、挂画类的东西。
客厅和卧室之间使用了一组玻璃推拉门,同时在玻璃内侧挂了布帘。
推拉门完全拉开后可以全部隐藏在两侧的柜体后,这种模式可以增大客厅的视觉空间。
床品材质以棉麻为主
床尾处的衣柜采用了白色和木色结合,一是为了配合整个空间风格的方向,另外一个是将斜角结构做了视觉弱化。
床头背景墙在三分之一处进行了分色处理
45公分高的榻榻米,储物的同时又有了孩子的活动区。
儿童房为上床下桌的形式,两边是用来放书籍和玩具的空间。
床头是衣柜和玩具柜。
厨房两侧的进深尺寸不一,我们随着这个结构定做了深浅不同的地柜,用于存放不同种类的厨具。
卫生间做了干湿分离,将洗手台外置,木质格栅做为进门视线遮挡。
客服
消息
收藏
下载
最近



















