查看完整案例


收藏

下载
客厅,顶部欧式雕花线条勾勒,一圈吊顶设计让空间有了层次感,金色不锈钢拉丝包边让轻奢风自然融入到整体空间。
茶几上方搭配艺术感精致的金属色吊灯,沙发背景墙石膏板造型比起平整的墙面,石膏线的应用突出了墙面的立体感,使空间更丰富,墙面装饰时下流行的时尚轻奢元素饰品点缀,灰色的墙板搭配金色的线条,低调中加入一些小奢华。
楼梯被改到书房兼影视厅的这一间中,楼梯上去便是主卧室套间,某种意义上来说,主卧室套间已经涵盖了楼下这间书房。让这套屋子成为楼中楼。
墨绿色的沙发,让客厅散发一种优雅气质。
凹进去的空间和客厅利用柜体做隔断,增加收纳空间,利用隐形柜门设计,更整洁清爽大气。
沙发一角精心搭配圆形茶几,上方石膏雕塑装饰增添艺术气息。
吧台设置也可以作为厨房的操作台面,使用起来也比较方便。上方吊灯打下微暖的灯光,整个吧台空间多了温馨浪漫的情调。
进门玄关柜延伸到厨房橱柜,统一材质,更完整。镂空鞋柜设计方便放置随身进出的物品。开放式厨房设计让视野更开阔,明亮。
餐桌设计成了卡座的形式,比较节省空间,一抹亮眼的橙色不仅增加食欲,也让整个餐厅空间重新温馨的氛围。
香槟金色的橱柜门板,把金元素淡淡地延续。
在适当缩小主卧面积,把楼梯改到主卧后,原本楼梯空间做成部分卫生间功能,卫生间做成分离式三分离,干区一侧是马桶间,另一侧是淋浴+浴缸,这样就把原本的走廊同卫生间合二为一,从而省出了好几个平米的面积,人多使用也比较方便。
干区台面上方复古文艺瓷砖拼接,搭配高颜值圆镜与台上盆,金属装饰品可以摆放洗漱用品。
淋浴+浴缸,大面积灰色墙地砖,打造质感清爽淋浴空间。
主卧室是最让人感觉温馨舒适的,浅灰色的墙板,金色的墙饰。
选用一副进深感的艺术挂画扩宽视野,倒放别有一番韵味。
一楼原始户型图 1、一进门就被前面的楼梯遮挡,通往客厅的过道感觉很拥堵。 2、餐厅空间比较小。 业主需求 夫妻两人居住,要预留一间小孩房间,一个客房,一个影音室,需要有足够的收纳空间,虽然餐厅比较小也希望有个吧台比较有情调。
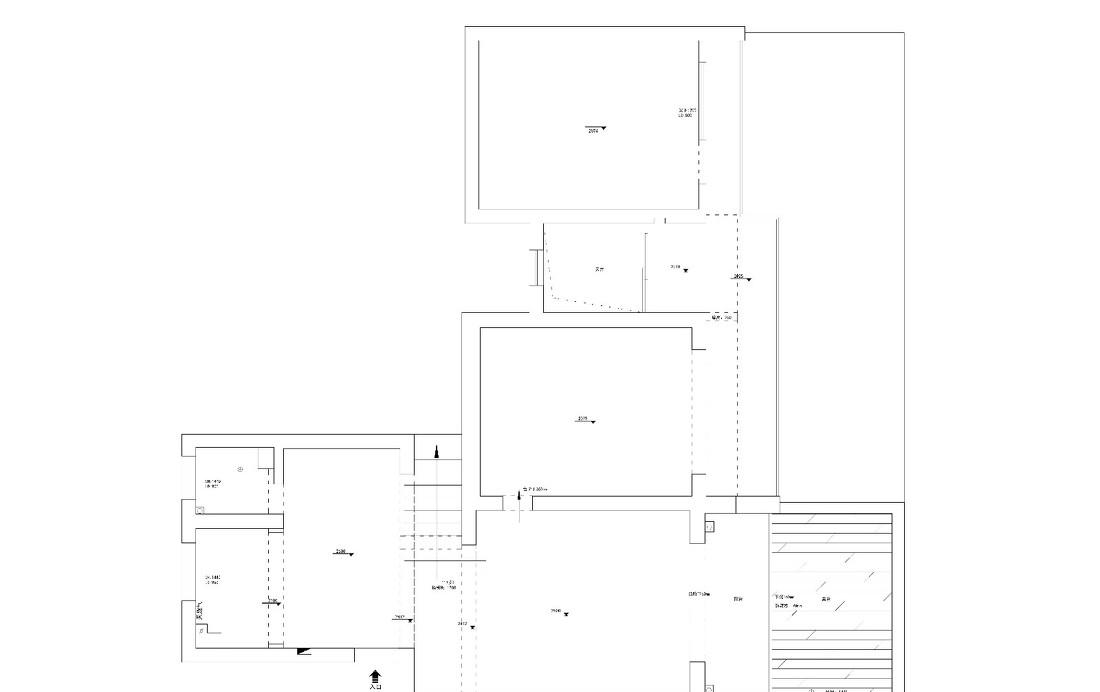
一楼改造后平面布局图 原本房型居住功能只有进门南北一字型的结构,最里面的两间房是车库,后来改成了两个房间。爆改掉了原本处于中间的楼梯,使得原本普通的错层户型真正地成为复式楼中楼。 1、楼梯改造后,餐厅空间扩大,有了中西餐厅,西餐厅靠近厨房吧台设置也可以作为厨房的操作台面,使用起来也比较方便。中餐厅做成卡座形式,也节省空间。 2、楼梯改到和客厅相邻的房间,设计成书房兼影视厅,楼梯上去便是主卧室套间,某种意义上来说,主卧室套间已经涵盖了楼下这间书房。让这套屋子成为楼中楼。
一楼SU效果展示
二楼原始户型图 上楼就是卫生间,两室共用一个卫生间面积也比较小人多使用起来也不方便,业主想要浴缸也容纳不了。
二楼改造后户型图 适当缩小主卧面积,把楼梯改到主卧,原本楼梯空间做成部分卫生间功能,卫生间做成分离式,把原本的走廊同卫生间合二为一,从而省出了好几个平米的面积。这样人多使用也比较方便。
二楼SU效果展示
客服
消息
收藏
下载
最近



























