查看完整案例


收藏

下载
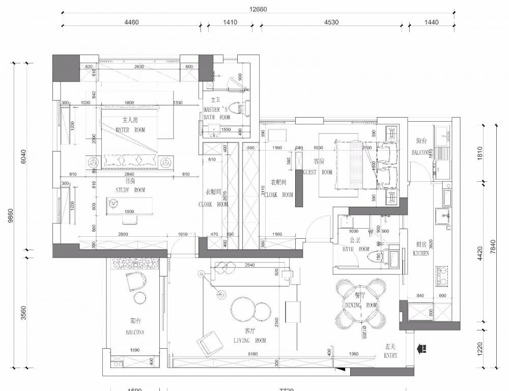
原始结构房子户型还算方正,采光也不错,结构上基本没有太大的Bug
平面优化①入户玄关柜连通电视背景墙,打造隐形超级收纳系统(业主对储物的需求非常非常高)②生活阳台墙体外推,多出的空间纳入厨房,扩大厨房使用面积③主卧过道厚墙改薄墙,偷出主卧收纳柜的空间④顺势利用卧室反梁结构,打造飘窗收纳柜,增强储物功能,同时使反梁被巧妙隐藏
当时还做了一个酒店大套间风格的方案,很有意思,分享给大家哦~
SU立体图立体化感受空间布局、结构工艺、材质搭配和造型装饰,每一个环节都严格把控
客厅
入户看向客厅
客厅原顶吊装,配合轨道灯,增强空间纵深感叠级边不锈钢工艺缝结构,处理柜体与天花接口问题工艺缝内扣不锈钢,使缝更精致明显,线条感更美观
隐形超级收纳电视背景,科技木搭配黑亚光拉丝不锈钢,气质简约高级
电视、投影都需要,插座、接线口统统隐藏
北欧表情休闲椅植物是真的哦~气质好搭~哈哈~
版画是业主的藏品,好优雅
隐形超级收纳系统,这个储物功能真的很强大,分享给大家
客厅看向入户 空间开阔,明亮
灰色系科技木饰面沙发背景墙,不规则纵向分割,打造空间律动感
主卧隐形门,与沙发背景一体设计
北欧表情橄榄灰皮沙发,质感和坐感都一级棒
北欧表情茶几
业主的藏品油画---爱尔兰女歌手 摆在客厅,气氛超好,实力圈粉
业主的藏品铜雕塑,清华美院学生的作品我好喜欢呀,偷偷研究了好半天~哈哈~
过道看向客厅
北欧表情懒人椅,好想躺上去~
玄关
入户长虹玻璃隔断,竖条纹纹路,配合灯光,营造小小窥视感,极富格调
入户鞋柜和电视背景墙,整体打造隐藏超级收纳系统后期将冰箱改在了这个位置,冰箱贴是业主的旅游足迹,每一个都有故事
餐厅
餐厅地面墙面贴灰砖,区分客餐厅空间餐座椅都是北欧表情家的
这个盆子是Zara Home的,超有艺术感,跟榫卯结构的实木餐桌很搭,好想搬回我家,哈哈哈~
卧室
衣帽间看向主卧,纱帘、单椅、油画的氛围好有故事感
主卧也安装了投影设备,业主是电影迷,哈哈~
原装吊顶,无主灯设计,增强整体空间感 床头油画是业主的作品,她说,这不是吹泡泡~ 哈哈哈~
门旁厚墙改薄墙,偷出主卧收纳柜的空间
窗户反梁位保留,隐藏窗帘盒和投影布幕,纱帘的通透感真的很好 北欧表情的单椅和油画好搭。
这面墙也有一个反梁位,结合业主对储物的高需求,我们将这里打造成储物空间,窗户保留同时多出一个飘窗位,这样处理将反梁也巧妙隐藏了,一举三得 这边窗是外窗,施工的时候,墙面做了防水处理,柜子跟窗户交接的地方,做了不锈钢窗套包边,防水性必须保证好 刚开始为了省预算,主卧空调装了原来的挂机,业主后悔ing... 让我把空调P掉,哈哈~ 我P图技术不好,还是先丑着吧~
衣帽间
衣帽间过道看向客厅过道厚墙改薄墙,偷出过道收纳柜的空间
细节图
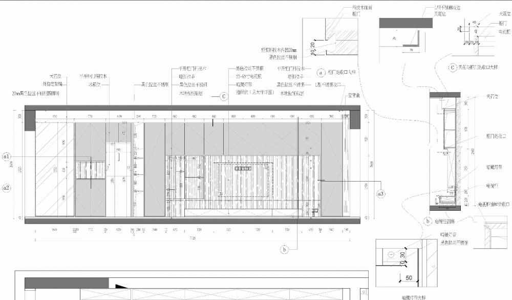
拉手安装要求
衣帽间柜子内部结构按照业主生活特性和需求来做合理分配和规划装饰盒拉篮很实用
衣帽间摆了太多还没整理好的画作,就没有拍照了
柜门拉手安装要求
书房
多功能书房 这面储物柜底下是翻板床
这里堆了业主好多油画
好喜欢这个暗黑风
音响和台灯好有态度
储物柜和翻板床施工图
施工过程
拆砌墙,定水平线,定开关位置
安装中央空调
贴木饰面,压门板
衣帽间隐形推拉门,提前先安装了隐形轨道
柜门合页175°开角,使用更方便
电视机定位安装 插座全部隐藏在电视后面
采购清单
网购五金件
网购五金件
网购灯具
网购灯具
洗衣机烘干机组
客服
消息
收藏
下载
最近






























































