查看完整案例


收藏

下载
我认为设计最大的乐趣来源于它的不确定性:
想象能够得到的东西,对于与我们当下的生活往往没有太强烈的新鲜感:
如果所渴望和所到得到的成正比,便失去了平淡时光里的意外之喜:
我们现在所主导的生活和轨迹,包括审美,就是要多一些不确定性,多一些断层:
而且一定是向上的,优质的。
I think the greatest joy of design comes from its uncertainty:
There is often no strong sense of novelty in our current life when imagining what you can get in reality:
If the desire is proportional to what you get, you will lose the unexpected joy of simple and quiet life:
The life and tracks that we lead now, including aesthetics, are expected to bring more uncertainties and disconnections
And they must be upward with high quality.
本次的案列以黑色与灰色作为主要的色调基础,以当代的形式的营造这个空间:
我们取名为:Ciity Man 我们理解为城市精英,因为这个甲方也是一个精英:
我们想给这座城市的主流群体,以这样一种标签的形式去营造一种属于他们的优质的空间和这种优质的生活姿态,去展现不同的生活格调:
与人与空间更为优雅。
In this case, black and grey are used as the basic tone to create this space in a contemporary form.
We name it: City Man. We think it is a city elite, because this Party A is also an elite.
We want to give the city’s mainstream groups a high-quality space and a high-quality attitude of life in such a label form to show different styles of life:
It’s more elegant with people and space.
格调,是生活美学的开场白。
Style, is the prologue of aesthetics of life
品位是艺术观,是哲学诗,是日积月累的美学修养,是细水流长的生活里的高光时刻。
Taste is an artistic view, a philosophical poem, an accumulated aesthetic accomplishment, and the best moment in the river of live.
有趣的灵魂是永不降温的渴望,比时间走得更快。
An interesting soul has the desire that never cools down, and runs faster than time.
星辰是大地写在天幕上的诗,晓露是晨光赠予夜精灵的梦。
Stars are poems written by the earth on the sky, and dew is a dream given to night elves by the morning light.
从容的姿态和低调的时尚,是都市精英的缺一不可。
Calm postures and low-pitched fashions are indispensable to the urban elite.
项目名称 | City Man
项目地址 | 山东 临沂 天元威特广场
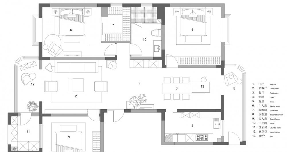
项目面积 | 180 M²
完工时间 | 2019年5月
设计公司 | BEN BAI DESIGN 本白设计
设计主创 | 刘 峰
项目施工 | BEN BAI DESIGN 本白营造
视觉陈设 | BEN BAI DESIGN 本白设计软装
品牌材质 | NUTAZZI . 本杰明摩尔 . 大理石 . 科定板材 . 水磨石
摄影团队 | 百秒荐客 / 钟永钢
Project Name | City Man
Project Address | Tianyuan Weite Plaza, Linyi, Shandong
Project Area | 180 square meters
Completion Time | May, 2019
Design Company | BEN BAI DESIGN
Designer and Leading Creator | Liu Feng
Project Construction Builder | BEN BAI DESIGN
Visual Display | BEN BAI DESIGN
Brand Material | Nutazzi, Benjamin Moore, Marble, KD plate, Terrazzo
Photography Team | 100seconds l / Zhong Yonggang
客服
消息
收藏
下载
最近































