查看完整案例


收藏

下载
■ LJID - 缪茹设计独家专访
好的设计能赋予房子新的灵魂。这是一个已经有 20 多年房龄的旧宅,户型格局虽老却有打破常规的想象空间。同时,业主又是一对对生活浪漫随性的年轻夫妻,追求空间的舒适与自由,烹饪是他们的日常所乐。
老房没有包袱,就让改造来的彻底一点,最终落地的黑白格调会让你发现,原来老房也可以这样酷。呈现了一个光线自然流淌、空间自由贯通的餐厨区域,一字型的中岛吧台让视觉自然向前延伸,空间尺度得到了最大展现。
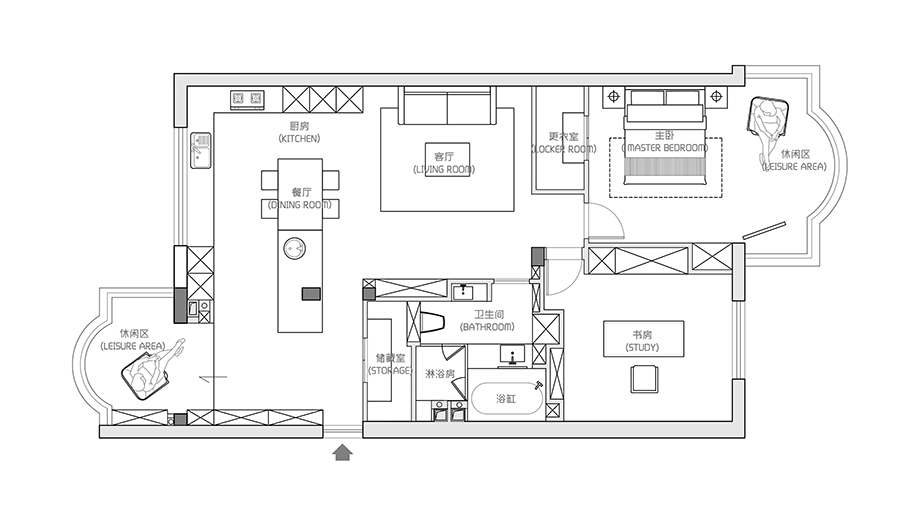
没有刻意隐藏的承重柱和水泥漆横梁,大胆展现老房的原生张力。通过抬高的地台形成了一个入户休闲区,与贯通的餐厨空间融为一体。
满足了女主人烘焙和制作咖啡的喜好,也可以兼容来客的休闲娱乐,让空间具备了包容的社交共享属性。
LIVING ROOM
在色彩斑斓的缤纷世界中,有一种朴素叫做——黑白。客厅呈现了质朴、婉约的气息,色彩的对比与调和恰到好处。
通过斜面的吊顶处理隐藏了一侧的横梁
方便今后改造为次卧使用。一举多得,未来的无限性就此展开。
浴缸巧妙地布置在台面之后,让淋浴—泡澡的动线合理流畅,空间魔法让各个功能区井然有序。
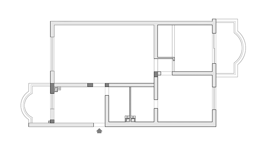
改变原先过于零碎的豆腐块户型,拆除了餐厅、厨房的隔墙,打造了一个阔绰的餐厨一体空间。原户型分内、外两个卫生间,按照业主的生活需求,将其合并为一,通过巧妙布局塞下洗漱、淋浴、泡澡和洗衣四个功能区,并腾出了一个储藏室。将南阳台并入主卧,保证了主卧舒适的尺度,临近的书房则预留了今后改造为次卧的条件。
原始平面图 P. 24
平面方案图 P. 25
R’sYard 缪茹空间设计
R’sYard 缪茹空间设计工作室专注于人居及商业空间设计,注重生活理念的革新传递并创造更多的生活表达。
“每一寸空间,都值得被认真对待”是我们所坚持的设计主张。
不管项目的规模大小和风格切换,坚持做到用人文引导设计,让空间回归人居本质。
在空间、材料、造型中倾注个人的印记和情绪表达,让居者找到熟悉的生活影子,每时每刻感觉到舒适和温度。
LJID 首发|孙招展 • 图森兰博基尼
LJID 首发|本中建筑 • 弃形求意
LJID 首发|本白设计 • 简净的生活温度
LJID 首发|拾异设计 • 隐于市的侘寂生活
LJID 首发|东荷逸品 • 流光慕白 心向温暖
SPECIAL ISSUE
// LJ 看设计 | 设计杭州特辑 //
// LJ 看设计 | 设计广州特辑 //
// LJ 看设计 | 设计南京特辑 //
// LJ 看设计 | 设计佛山特辑 //
// LJ 看设计 | 设计深圳特辑 //
// LJ 看设计 | 中国设计星特辑 //
点击图片进入信频号浏览更多作品
客服
消息
收藏
下载
最近















































