查看完整案例


收藏

下载
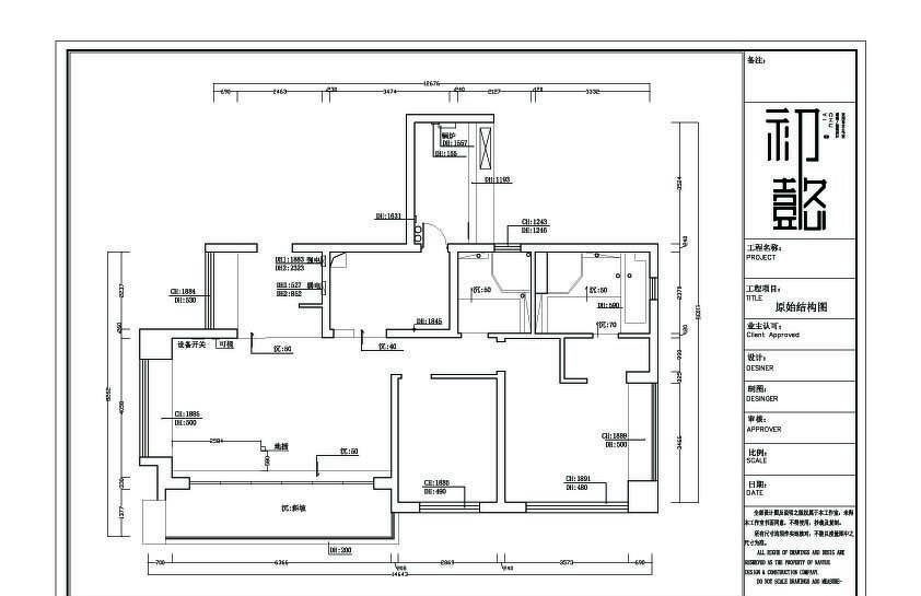
本案算是一个半精装房,地暖,中央空调,吊顶,射灯,卫生间水电改造等都已经全部到位,自然光线是比较好的,但是功能空间不紧张却也不宽裕,公共空间尺寸相对就比较小了一些,厨房动线决定布局,却又因为地暖以及中央空调位置的不变更,墙体结构的改动就也跟着受限;业主想要在公区能阅读,晒太阳,喝茶,烘焙,听音乐,看电影;没有独立书房,担心储物空间不够,喜欢硬朗的黑白灰色调,稳重华丽的咖啡色调以及温馨的木材质感,搭配要考虑长远的视觉和使用感受。
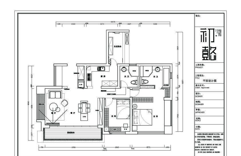
客餐厅的功能进行重新拆分整合,长形客餐厅的关系进行朝向分离,利用飘窗围合客厅区域,既节约了空间又可以将电视视距变长而不影响餐区的多功能使用,餐厅结合中岛共享,既是西式的操作台面,亦可办公用餐,并且与客厅同时共享大阳台,不折断长形空间,公共空间视野开阔不受限;冰箱与入户衣帽鞋柜结合,使用位置的各区域动线也是更方便,厨房也有了更多的使用操作空间,主卧和主卫将墙体进行了精确的改造,卫生间马桶位置内退出书柜的空间,原衣帽间打掉改成通道,将衣柜置于卧室睡眠区与通道之间。
入户打造整面透气的木质百叶窗与大面积衣帽鞋柜形成体量的对比,白色+灰色+木色的交织融合营造干净利落的入户空间。
飘窗闲坐结合主沙发围合客厅功能区,既节约空间又多变,构成弹性的生活场域;功能性沙发是为了完成小夫妻的居家享受;回家的归属感也许就是某一刻你舒适的躺在沙发里,我在你臂弯,一起看着喜欢的电影。
朝向关系分离,以斜铺灰纹木地板引入室内,延伸至墙,打乱本来的秩序感,将重心进行平衡;居家动线的灵活性,家庭围合方式的全新感官,一种对于生活的行为陈述,随着生活方式及成员的变动,可在动线切换过程中创造出更多衍生,中岛为中心连结厨房,餐区,聚会、烘焙、办公都可随心操作;大台面的自由度,有更多可能性
居家的纯粹和简单也可以是坐下来,听听音乐,任音符不慌不忙的从耳边飞逝,在脑中留下并不深刻的印迹,却历久弥新。
生活,只能慢慢来,才能像轻快的音符一样,活出自己真正的味道来,居家毫不客气占据着生活的一部分。
黑色,总是安静从容的,面对变化多端的生活,不因天晦云暗而害怕,也不因万里无云而自喜,始终平淡自如,一如既往。
把灵魂沉静安放其中,自能养就心中一段诗意;笑看庭前花开花落,坐望窗外云卷云舒。
回归生活,放下忙碌,约二三知己,小酌数杯,分享属于在家可感受到的宁静与惬意;中岛的黑色与木色搭配直接碰撞,太多会比较生硬,咖啡色黑板墙的位置以及面积都起到一个中和作用,它不仅承上启下,也包容着硬朗的黑白灰之间撞入一份木色暖意,不凝重却足够有血有肉。
半开放式的厨房,以灰色底砖做为间色,轻柔的过渡到白色橱柜,不张扬对立的意犹未尽;在某一方面来说,白色是缺乏色彩的,从而也是缺乏多样性的表现,它具有的纯洁和虚无气质我们想尽数留给空间主人立体的交流,互动,陪伴来与之亲近,演绎属于他们的故事。
周先生与周太太的环球旅行脚步在很多街头牵手走过,城市街道必然有他们的一些生活缩影。
设计不是完成,也不是仅仅在做好看的设计;人与空间的距离,现在,将来的体验感受,会有什么样的变化,都是我们不断在思考与精进的课题。
小伙伴们亲自手绘的黑板墙画从厨房外墙这头一直延伸到通道那头,撞破小空间的门扇规律,自由更换不同的通道场景,很期待新生命小小周未来在这里天马行空的写写画画搞创作,现在由新晋父母的周先生与周太太暂时经营。
主卧进门右边用干净的纯白免拉手触碰门衣柜分隔出睡眠空间,不到1米的通道宽度,长2.5米,衣柜底部悬空处理将睡眠区好光线借过来一些,左边将与卫生间的共墙内退32公分,改为木色开放书柜长1.5米,满足喜爱阅读的周先生与周太太丰富的藏书;这样的操作,过道不小不闷也不黑,睡眠区域也有了足够的私密性。
功能的布局设计优化了睡眠区的好光线与优质视野,硬装与软装的色调选材,在明度最高的白色里运用暖色和冷色的灰调相互穿插,将睡眠环境舒适度压制到一个适中的度,床品的冷冽质感对应床体边线与形态的包裹,在不同光照下呈现出不同的美感,想要表现的是一种克制且柔和的张力,抛开热烈与放肆,就是本真的居家卧室。
既有储物又有分隔功能的衣柜背面,进行假门板处理,还空间一片纯净;尺寸位置是计算好让出原中央空调回风口,原地暖也没有破坏浪费,衣柜原设计的是整体悬空,种种原因没有落地实现,留下一个小遗憾,提醒着我们在落地把控上要更努力。
透过柔和的睡眠区走近主卫,一片纯净的黑白分明,镜柜定制可推拉面板,满足不同功能下的使用。
黑色成熟,白色纯真,各自极致,极具反差,却总是在一起,周家先生理性,周家太太感性,亦如黑与白,和谐共处,是最简单也最内涵。
黑白无冷暖,柔光爵士白纹理大板砖的气场润滑了整个空间关系,极致中带着一定的含蓄与主卧气质相匹配。
内退的卫生间共墙缩减了马桶区使用距离,经过合理布局,保留了90公分的间距。极具艺术感的石材背墙不会被砖和黑色柜体压制,反而让视觉美感有不一样的层次。
次卫在一片柔和的灰调中寻找平衡,浴室柜和马桶均悬空,肉眼可见,打扫卫生没有死角。
设计初期,考虑的这里就是未来的儿童房,当然,如果入住,前期肯定是周先生与周太太来使用,书桌连接卡座延伸书柜再到衣柜,都将小小房间功能最大化了,孩子大一些后,房间的独立配套也是完善的。
但是谁也没料到,还没搬进去,小宝宝的来临就这样给了大家一个惊喜,也不知道我们工作室是什么体制,就是会不经意间见证新生命和新房的共同绽放,在全屋都没有张扬的彩色下,我们用蓝色中最神秘的一种色值-孔雀蓝,留给这一家子一个未完成的空间去谱写,新晋父母在这里去倾听孩子的倾诉,他小小心里的欢乐与烦恼。
站在新房的客厅阳台,可以望见一颗成长中的小树苗,那是当初一只有爱的鸽子带着这棵新芽来到周先生和周太太身边,于是他们将它栽种在了新房小区里,站在屋内,目光所及;愿这个家庭的新成员如这棵有故事的小树苗一样,在阳光的沐浴、雨露的滋养下茁壮成长!愿我们共同参与的这间新家居室可以承载你们要的简单美好!
客服
消息
收藏
下载
最近






























