查看完整案例


收藏

下载
保留那些过往的青春肆意
带着憧憬迈入新的生活阶段
认真又严肃的过着有趣的日子
这个小家庭有空空+杜哥+小波派,在方案初期仅和杜哥有过少少的几次接触,工作繁忙,温润谦和就是我们对杜哥的全部感官。空空是个如太阳般明媚的女子,操持着整个装修大小事宜,欣赏美好的东西却也注重实效,与我们的设计师Team年少时期不打不相识,是一对10多年互怼互夸的老铁,少年时期的空空喜欢跑喜欢跳,四处撒野,常常让人猝不及防,却又是一个有艺术天赋,自学日语,画动漫,玩coser的女同学;但所有这些年少轻狂并不是生活的全部,还有小波派有杜哥有空空,有属于家的那份眷恋。
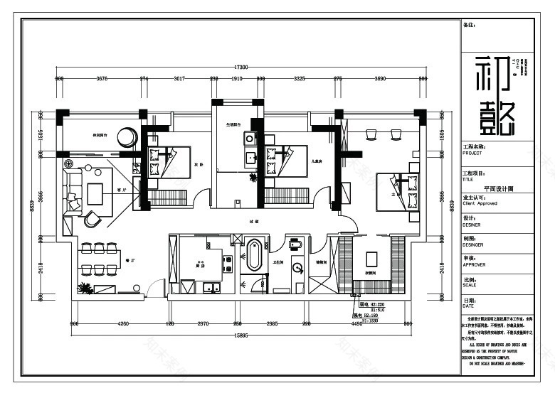
本案由两个基本一致的相邻小户型打通做成一套,墙体打开后暴露出来的横梁与排污管就特别多,影响布局,过道也显得尤其长,空间光线与层高是受影响的,厨房与卫浴空间的格局动线也受下沉位置影响。
墙体打开后,依原排污管位置巧妙划分厨房与卫浴空间,下沉位置决定以蹲便为不可更改位进行浴缸,淋浴,洗漱的设计划分,将原先的生活阳台空间打通成过道,两房外墙之间的挑空区现浇楼板加建成独立生活阳台区域,退让三分之一的面积给过道通透的空气感而不显得冗长。
因为房屋结构横梁压低层高的影响,主照明我们采取明装轨道射灯,吊顶以比例线条交叉拉出细小层次感,沙发背景墙面留白,与顶面白色形成一个延伸面,敦实的主沙发将重心下移,一高一低之间就弱化了小空间层高的限制,色彩与材质上综合考虑灰调布艺主沙发呼应同色系肌理电视墙砖纹,中性色调里包容暖木色系,围合整个空间的精巧感。
红&绿抱枕的互补搭配点缀其中,落地灯既是氛围照明亦是阅读角的局部照明。
席地而坐,摆弄一些关于兴趣的美好。
姿月是空空的偶像「日本歌手,演员,开篇音乐快快听起来」很热情的讲给我们听,又想起整个认识期间,印象最深的就是空空那爽朗的笑声,特别的有感染力。
斗柜代替边几功能的同时,增强区域收纳,同时与沙发拉出高低层次,柜门选择透玻,避免主沙发与单椅围合带来的闷吞感;前后关系,尺度次序都可以有精彩的演绎。
入户顶暗藏灯带,依梁分区,餐厅顶延续客厅的吊顶手法,主照明却选择三头一字型吊灯,用以烘托家庭用餐氛围,细腿长条形餐桌再配上轻巧餐椅,让有限的用餐空间看起来更开阔,视线不受遮挡。
过道回望出来,是客厅单椅仪表堂堂的姿态,那么倨傲;长过道中间有划分一部分透气空间,小花砖+木质百叶+白纱营造出的光与影,空气与空间让过道感官也丰富起来。
过道的尽头是主卧,饱满的绿墙跃然眼前,希望可以让工作繁忙的杜哥与空空消除疲劳情绪。
主卧室的位置是以前右边户型的客厅,所以尺度空间是完全足够的,原餐厅位置我们划分出了主卧衣帽间与独立储物间,让家里看起来很干净很整洁是少不了柜体收纳空间的;颜值与实用都在线的衣架,挂家居服什么的也太方便了。
空空与杜哥的书都还没有带到新屋子来,一大堆是要用抗的。不知最后他俩的书架是怎样的包罗万象。
卧是走的朴素祥和路线,因为大部分会是老人居住,松石绿的背景墙既有冷静情绪也是带聪敏情绪的,所以次卧与儿童房做了相同背景色,考虑了父母也会一起陪伴波派成长。
儿童房主照明松果吊灯,通过漫反射,保证更自然的低亮度,清新有质感的色彩搭配不局限宝宝的年龄。
有趣的局部照明悬挂起来,可当夜灯使用,不开也是漂亮的装饰品。
卫生间布纹砖竖贴是可以有延伸层高的视觉感,小花砖的区域穿插让卫浴空间更具姿态。
保持干净整洁是厨房的常态,毕竟空空父母就住对面小区,目前那里才是她和杜哥以及小波派的人民食堂。
项目地址:四川资阳·茂林大厦
空间性质:三室两厅一厨一卫
空间设计:初懿设计团队
主要用材:圣象木地板,金意陶瓷砖,金牌橱柜,欧派衣柜,恒洁卫浴,华润漆,涵客家居,宜家家居。
客服
消息
收藏
下载
最近


























