查看完整案例


收藏

下载
简洁大方是整个客厅的第一印象,高级灰是主导色,白色作为背景色,整个空间彰显工整肃静的质感,局部搭配小面积的黑色,强调黑白对比,使浅色的空间不觉轻浮,黄色抢眼的配饰,为冷静的空间添一份活力。客厅,餐厅 ,电视背景墙 ,北欧 ,茶几 ,沙发 ,抱枕 ,电视柜
这是从客厅沙发处看电视方向,半高的电视嵌入墙不影响整个客厅的视觉通透感。
沙发区看南阳台 。沙发,茶几 ,抱枕
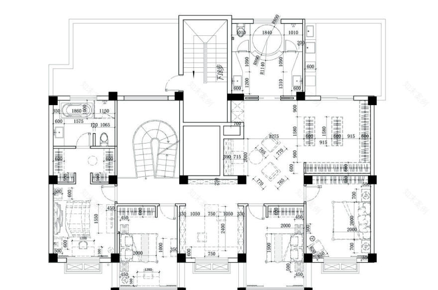
整体户型是框架结构,除了黑色填实部分是承重柱不能拆,其他墙体都可以改造,通过墙体拆除后,两户打通实现了客餐厅连通的宽敞布局,满足了儿童音乐室、娱乐室、客房、保姆房、衣帽间、厨房、便餐区、卫生间、楼梯间等功能要求。被消防楼及电梯成U字户型,对户内楼梯的设置形成障碍,上下楼不能形成优质的挑空空间,只能以功能为重,放弃客、餐厅挑空与二层形成互动的想法,尽量保证单层视觉的通透性来弥补空间缺陷。
远处客房的隐形门关闭时,丝毫不影响会客交谈的心理障碍。这里除了阳光和微风,只有安静的空间美物。电视背景墙,茶几,绿植,插花 ,北欧
梁底到地面高度仅为2.4米,为弥补层高不足产生的压抑感,故借用梁形成弧形吊顶,从客厅一直延伸到餐厅,通过空间的视觉延伸来弥补其层高不足。 客厅 ,餐厅
为了空间更简洁,沙发背后的房门依然采用隐形门设计,整体木饰面背景作底,一副黑色细边框勾勒的艺术画起到画龙点睛的效果。 客厅 ,装饰画 ,沙发,北欧
灰色布艺沙发柔软舒适,花枝、抱枕的黄与装饰画的黄色呼应点缀,会客气氛即可温暖。 装饰画 ,沙发,抱枕,插花,北欧
过道保持简洁手法,利用凹槽做了对称的装饰展架,除此没有其他装饰,展柜的木质色与沙发背景木质板平衡和谐,空间里始终保持黑白灰主体色系,局部黄、蓝提亮点睛。客厅 ,北欧 ,走廊
隐形门开启后客房和儿童音乐室
沙发区看楼梯间。客厅 ,沙发,茶几 ,北欧 ,楼梯
弧形楼梯与客厅吊顶设计手法呼应,材质只有大理石和玻璃,简洁通透有灵气,配以暖白色灯带,简约的未来感旋转而起。
爱好是天生的,成就是后天努力的结果,一楼音乐室是专为爱子打造的音乐王国,爱音乐的孩子都不是坏孩子,因为音乐陶冶着他的情操。千里之行始于足下,不积跬步无以至千里,每一次的比赛都是一种历练,每一份荣誉都是努力的结晶,所以在这个空间里特设一个记录孩子成长与荣誉的展柜,让孩子懂得努力才会有回报。 书架 ,搁板,置物架 ,北欧
餐厅是家庭最重要的空间,这是一家人能聚在一起的纽带,是家庭幸福指数的绝对体现。 餐厅,餐具,餐椅,吊灯 ,北欧
试想一下,全家人坐在舒适的餐椅上,温馨的灯光打在美味佳肴上,父母慈祥的微笑、孩子津津有味的吃着,爱人给老人夹着菜…其乐融融,幸福感爆棚。餐厅,餐桌 ,餐具 ,餐椅,吊灯 ,北欧
餐厅与客厅沙发背后墙体设计手法一致,隐形门是整个空间的特别设计手法。餐厅,装饰画 ,吊灯
餐厅增加一组吧台,这里适合吃个早餐,又是家人好友闲叙对饮的酒吧台。吧台 ,吧椅 ,吊灯
相对一层,整个二层是对内的私密空间,包含主卧、男孩房、学习区、长辈房,确保每个卧室都是朝南,采光极好,有益健康。把卫生间、洗衣房、家庭室(起居室)、公共衣帽间以及楼梯间放置在采光不好的北面方向。
二楼过道学习区:古人云:“腹有诗书气自华”,可见文化知识对于人的气质涵养的重要性。除了爱好还要有文化,这样才能“德才兼备”,言谈举止体现的都是一个人的文化素养,给孩子营造一个舒适的学习空间,能够让孩子更好的学习文化知识,成为一个有涵养的、受人尊敬的人。 书房 ,走廊 ,书架 ,搁板 ,北欧
在设计上采用长型书桌,满足两个孩子同时学习时,不会受到干扰,即便父母辅导孩子也不会感到拥挤。 书房,置物架,北欧 ,书桌
黑铁吊架+木制板,当暖白灯带打开时,氛围特别温和轻盈。 置物架 ,书架
家庭室实用紧凑,没有过分占用周围的空间,这样的尺度特别接地气,氛围舒适恰到好处。 北欧 ,小户型 ,抱枕,沙发
两个男孩房的设计风格相似,简单的基装搭配明显的“男孩色”,空间内并没有过多的“卡通”设计元素,有别于传统的儿童房装修。环境改变人,个性的空间孕育孩子更独立的思考。 卧室 ,儿童房 ,床头 ,床头柜 ,床品 ,北欧
设计感北欧范的床头柜,浅蓝的乳胶漆背景,色彩斑斓的小画,可以忽略的吸顶灯....比起那些“花花绿绿的墙纸、各种流行的卡通形象”颜值很多。 卧室 ,装饰画 ,北欧,儿童房
主卧现代风中略带轻奢感,家具的体型简约,金色纤细的支腿轻盈时尚,繁星吊灯夜晚氛围好好,这里是屋主人的私人领地,空间的配色、饰品无不体现出主人的高审美和细致品味。 卧室 ,床头柜,床头 ,床品,吊灯
绿色+金色的搭配,让金贵中饱含着优雅!
客服
消息
收藏
下载
最近






























