查看完整案例


收藏

下载
门头设计简单明了,运用钢丝网与水泥灰相结合,通过暗藏光源的设计突出氛围;自发光logo字明亮显眼,让人一目了然;落地玻璃视野开阔,能够很好的吸引路过的客人。
进门左边区域在原有地面基础上进行抬高设计,利用裸顶的优势能够制造挑空的感觉,丰富店内空间感;进门位置采用原木板作为造型,右边为异性造型,颇具中西合璧的感觉,让人印象深刻。
用餐区实景图
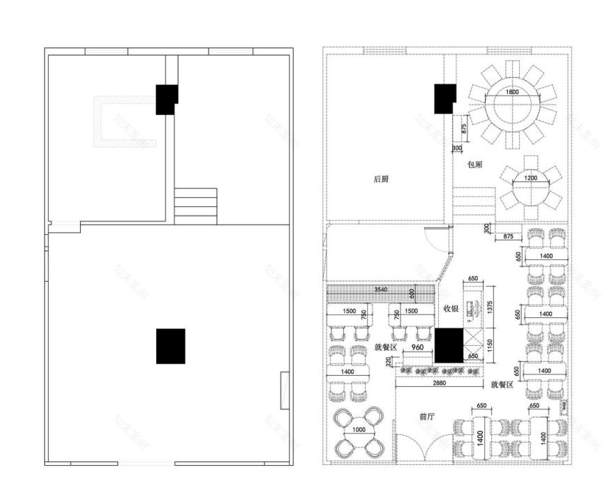
原户型有哪些问题:
1、本案原户型为一家串串店,装修简单,厨房设施简陋;
2、消防系统不明确,遇到特殊情况无法正常工作,每年过审都很麻烦;
3、入门对着柱子,视野不开拓;
4、灯光采光条件差,店里给人空空荡荡的感觉,显得人气差。
客户有哪些需求:
1、对灯光设计要求很高,要求灯光对于菜品的显色性要到理性状态;
2、客户主营地方特色菜,希望店内设计偏现代化,区别于其他土菜馆,有品牌特色和辨识度;
3、希望店内在扩大厨房的基础上多布置餐桌,增加店内收入;
4、设计要与服从投资成本,在保证设计效果的基础上,尽量节约支出。
设计师主要构思亮点:
1、保留原地面瓷砖/保留包厢顶面吊顶/保留大门玻璃,这些装修中的大项目先保留出来,这样可以极大化的节省成本,并对其利用加改造。
2、采用不吊顶的方案,裸露吊顶的优势是利用挑空优势给人开阔感,让人觉得不压抑,同时减少装修的成本。
3、因采用不吊顶方案消防管道的主管与分管都已布置好,只需将喷头改成上喷淋即可,降低消防的支出。
4、在原有厨房的基础上扩大厨房,取消踏步并改成斜坡,这样可以方便货物及垃圾运输,增加后厨工作效率。
靠近窗户的位置设计圆桌,中国人对圆桌有感情,圆桌象征团圆,在店门口设置圆桌能够把团圆的气氛传达给路人,墙上的圆形壁画,也迎合团圆的氛围。
圆形的挂画,方形的餐桌,隐喻古时天圆地方一说。
左侧用餐区效果图
左侧用餐区实景图
通过对比可以看出,竣工后对设计的还原度非常高。
卡座上方背景墙极具地方特色,同和圆形方式组合在一起,也有一种艺术美感。
临窗用餐区改造后实景图
光秃秃的裸顶无法满足店内整体形象,通过设置高低错落的方管造型;让空间零碎有节奏感,采用红色能够勾起人们的食欲,让人浮想翩翩。
吧台和出餐口位于店内中央,传菜有效率同时相对更隐蔽,让更多的空间用于摆餐桌。
右侧用餐区实景图
原木色的座椅,竹编的吊灯,水泥墙面挂上一幅山水画,虽为土菜馆,却也有种写意水墨的意境。
包厢是在原来的基础上进行利用,吊顶原先是平顶,通过手绘泼墨在平顶上做出动感弧形;吊灯选用八爪灯,富有张力和设计感。桌椅选用实木做旧质感,给人以稳重大气的感觉;墙面造型通过设置黑镜和绿植,富有现代感。
客服
消息
收藏
下载
最近


















