查看完整案例


收藏

下载
夹纱玻璃隔屏阻挡入门穿堂煞,隐约的透光设计,形塑通透盈朗的入门空间感。
设计师拉大採光窗框,引入明媚的山景日光,带来休闲写意之感。
清玻隔间的分界,交融两个场域的匯流窗光,延展的景深也放大空间视感。
设计师后推部分墙面扩充厨房机能,另外利用墙侧深度规划视听机柜,让出方整俐落的空间线条。
开放规划的机能场域,可从视野串联每一个独立空间。
无实墙隔间的设计,让日光盈满公共空间每一个角落。
以深色木皮餐桌椅形塑场域主体性的餐厅,设计师利用周匝的樑下深度,规划大容量收纳空间。
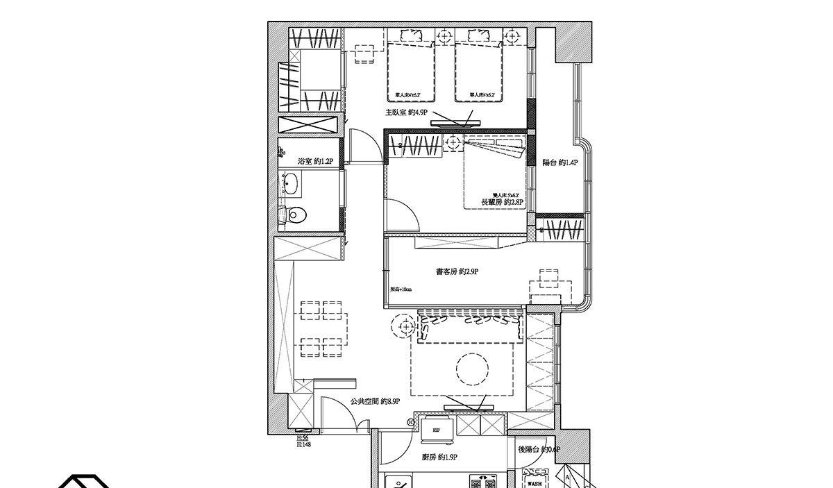
涵盖书客房机能的多元使用空间,设计师贴心配置衣柜收纳,拉下拉帘即可成为完整独立客房。
考量未来长者使用需求,设计师预先拉大入口,并使用不佔空间的拉门规划。
止滑地砖与墙面上的安全扶手设计,打造长者沐浴盥洗的安全环境。
考量需置放两张床的空间需求,将主卫浴改以更衣室规划,床头樑体也透过圆弧线条巧妙修饰。
设计师依照屋主的衣物量,规划妥适收纳空间。
客服
消息
收藏
下载
最近















