查看完整案例


收藏

下载
一个崭新的空间,充满不曾使用过的时间。他们沾着光、伴着风,变成了最好的日子。
空间解构:
这是一栋位于南京城东板块的 450 平米联排别墅,也是意创空间设计在本小区竣工的第六个项目。别墅分地上三层和两层地下室。因为业主只考虑三口之家居住,长辈偶尔过来照顾,因此在空间的规划利用上,尽量以宽绰的居住尺度设计。除了室内设计外,对顶层和庭院也重新做了规划建设。
风格设计上,以业主喜欢的现代轻奢呈现;功能格局上,以楼层为切割,清晰明了:一层主要为待客区以及长辈房;二层为主卧和儿童房;三层为客房;地下室则为休闲活动和办公区。
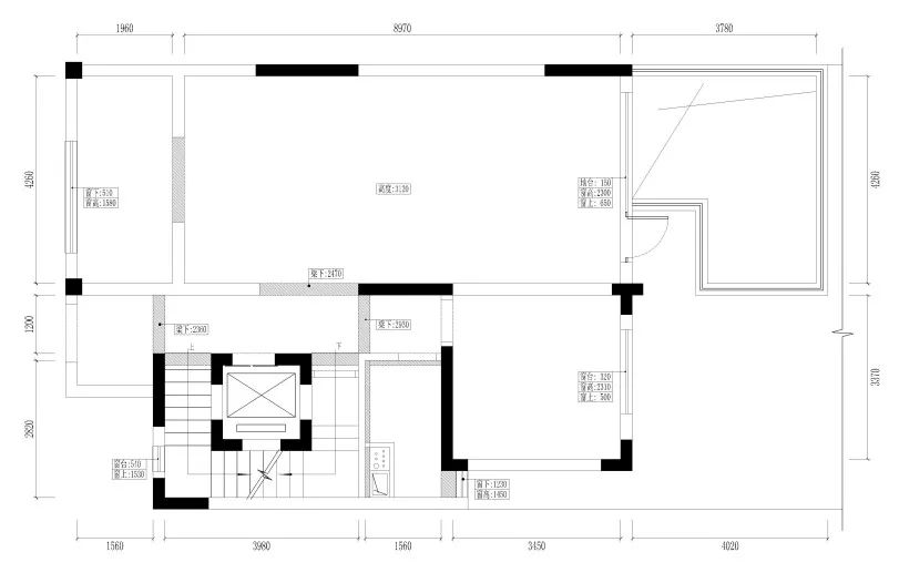
一层空间
The first floor space
一层原始结构图
一层平面布置图
设计亮点:
• 首先利用土建将朝南的立面外延,在保证地下室采光条件不受影响的前提下,拓展一层客厅的实用面积。
• 厨房也外拓 90cm,由原本 2m 宽增至 2.9 米宽,轻松容纳下双开门冰箱,并且在增加了中央岛台,厨房由原来的 U 型布局升级为“回”型布局,动线更舒适合理,储物空间和操作台面也得意增加。
客厅
空间的风格不仅体现在材质的运用,它的内核其实是生活方式和理念的外化。
客厅无主灯的灯光设计、极简的素色暗纹墙布,几乎没有多余的线条修饰。
设计师在简约的笔触下,细节上展示着自由的变化。
背景墙不对称的造型设计、地面灰白两色地砖的拼接。
温润的木质碰上坚硬的不锈钢金属。
铆钉沙发搭配白色大理石板圆几。
令空间变幻出不拘一格的自由风格和家居品质感。
软装搭配色彩上,设计师大面积应用时尚宠儿午夜蓝,谦和而锋利、神秘又富有活力,为空间增添了一丝复古的风情。加上沙发地毯绒面的材质质地,没有过分的张扬,自由而随性,光泽有质感,很容易便成为全场的焦点。背景墙壁画和抱枕也恰到好处地点缀了一点蓝和酒红,在空间上形成了呼应,让色彩更有层次感。
餐厅
餐厅的设计很有中式家庭的氛围。对称的定制餐边柜居中摆放了一组电视柜同款斗柜和挂画。餐厅正中是象征着中国家庭团圆幸福的餐桌。淡雅庄重的群青与客厅神秘谦和的午夜蓝一脉相承。
电梯
本案最主要的交通线是以电梯为中心的洄游型动线。
这条交通线的设计几乎可以以最短的路程到达所有空间。
同时本案中对材质创意拼接设计也体现在了这里。
地面的爵士白大理石地砖一直“生长”到立面,与木饰面的碰撞丰富了设计变化的趣味性。
庭院
纳兰容若有词云:
你我暮年,闲坐庭院。
云卷云舒听雨声,星密星稀赏月影。
花开花落忆江南,你话往时,我画往事。
中式庭院最讲意境。
石脚立竹青扶疏,
几块顽石、零次竹影、镂窗白墙、条食汀步。
暮色四合,灯光婉转流泻,
在这广阔的天地中理解另一种人与空间共生的诗意。
设计师在庭院设计上借鉴了中式园林造境的手法。
将原本石墙打开一个窗口,又仿佛一卷天然的画轴。
将院外的自然景观引入庭院,成为一道特别的景致。
庭院的视野也不仅限于方寸,得以延伸到更远的地方。
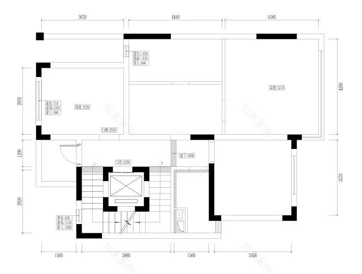
二层空间
二层原始结构图
二层平面布置图
设计亮点:
• 土建阶段将二层主卧卫生间外的室外平台纳入了主卫面积;并且将朝南的次卧室也向外拓,现浇一个景观平台;
• 原本的三房布局被一切为二,除了交通外,东面一半面积被规划为主卧套间,套间内拥有两个衣帽间、过厅、睡眠区和超大主卫;设计师改变了次卧门位置,次卧也成为了一个拥有独立卫生间的套间。
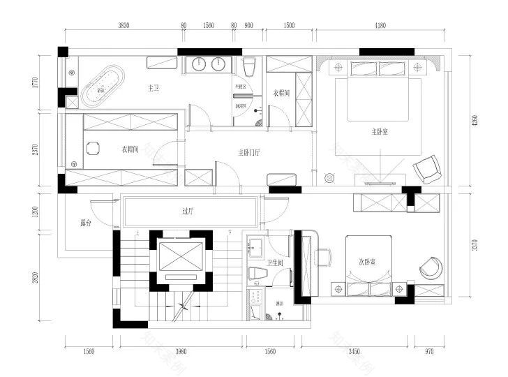
主卧
设计师灵活地运用色彩给予空间温暖的触感,秩序井然又不失温度,展现出流水般不疾不徐的姿态。
主卫
轻奢的生活方式常常体现在一些细节的差异,比如对空间尺度和格调都要求更高的独立式浴缸,让沐浴从此有了全然不同的迷人情调。
次卧
设计师为儿子的套间挑选了一款蓝色床,搭配柔软舒适的蓝色床品,协调大方。连地板也选择了蓝白相间的人字形拼色,像赛车游戏中的赛道纹案,为男孩房增添了趣味感。
次卫
次卫做到了干湿分离的设计
黑色铁艺配件增加了复古的气质
整体简洁大方、经济实用
三层空间
三层原始结构图
三层平面布置图
设计亮点:
• 三层规划了两间客卧以备亲朋好友的临时到访。朝北加上现浇面积设计成可以洗衣晾晒的阳光房;
• 新增一个公用卫生间,位于二层主卫上方,并用下水管线;
• 顶层楼梯挑高部分现浇,成为一个独立储物间,用于收纳家庭的日常杂物。
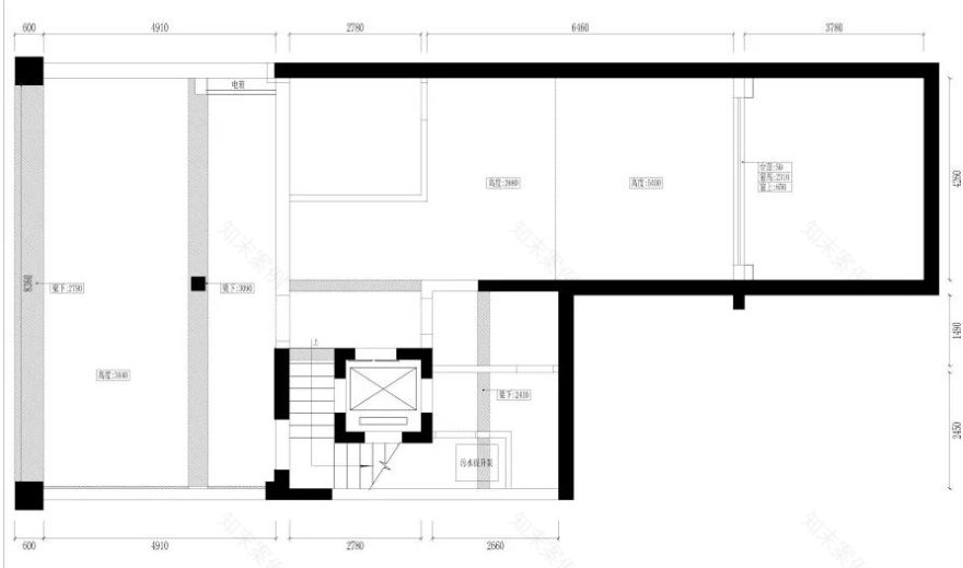
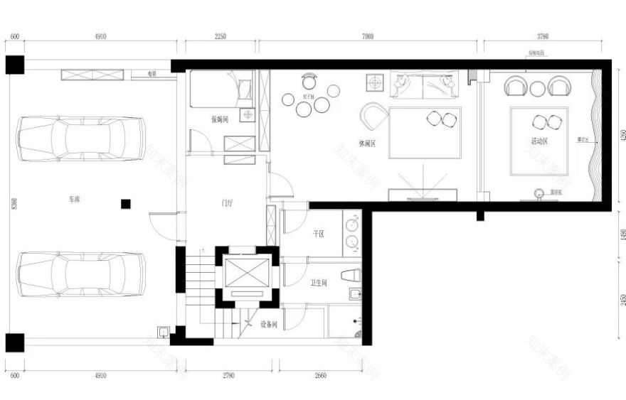
地下室空间
负二层原始结构图
负二层平面布置图
设计亮点:
• 为了避免地下室空间的压抑感,保证地下室最大限度的采光和别墅的空间感,设计师保留了地下室两层挑高设计,设计完成后成为家里的第二会客厅;
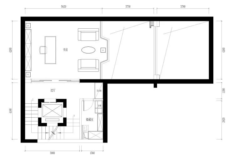
负一层原始结构图
负一层平面布置图
设计亮点:
• 负一层挑高作为主人的独立书房和会客厅使用,既能与负二层有互动也可以保证相对的私密;
• 挑高平台现浇“凸”字造型,改变了空间的对话关系,也增加了空间造型设计的多样性,加上平台扶手和顶部吊顶,完成了自下而上的层次表达;
• 卫生间改造成储物间和茶水台,用于收藏茶具、茶叶等物品,也方便业主办公时随时泡一杯自己喜欢的饮品小憩片刻。
休闲客厅
光线就是最好的设计
即使南京的季节已入初冬
日光依然能透窗而入,到达地下室空间的深处
超高的挑高尺度和巨幅壁画、水晶吊灯,展示了别墅大宅气派的空间感。设计师还贴心地设计了攀岩、架子鼓和篮球框的室内运动区,供家人会客休闲。
书房
独处的空间,是留给自己思考的时间。
一张舒适安逸的沙发椅,一幅意味悠长的远山图。
为偶尔到访畅聊的朋友准备的小沙发。
让我们的思想任意驰骋。身未动,心已远。
由于地下室客厅的进深较长,为了避免给人一种狭长的空间感,设计师利用后退色能拉远视觉距离的原理,用蓝色艺术漆满刷墙面扩大空间的视觉尺度,同时蓝色能给人以宁静、舒缓的感受,应用在休闲会客和书房再合适不过。
门厅
负二层是家庭最主要的入口,家人或朋友到访往往由车库直接入户,因此设计师预留了一个较大空间作为入户门厅。两道门的设计,保证主人在休闲空间活动的私密性。
地址:富力十号·郦墅
面积:450 平米
风格:现代轻奢
设计师:李佩耀
设计助理:曹玲敏
设计单位:意创空间设计
施工单位:广东星艺装饰
合作模式:全案托管
竣工时间:2020·11
文案:遂字
设计师
李佩耀
广东星艺装饰公司任高级设计总监
南京意创空间设计事务所创始人
毕业于南京航空航天大学环境艺术系
2015 年清华美院进修
ICDA 国际建筑装饰室内设计协会高级室内设计师
IIAA 国际信息化认证协会高级室内设计师
亚太国际设计高级室内设计师
亚太国际设计认证会员
中国建筑装饰协会会员
江苏省优秀设计师
设计理念
用多元素的结合来诠释生活,提倡实用美观的设计理念。
设计-生活与艺术的完美结合,品味与层次的表达。
主要作品
公寓:
长江路 9 号、长发中心、万达紫金、良城美景、香缇丽舍、新城市广场、辰龙广场、金基蓝钻、左邻右里、铂领公寓、海德卫城、康桥圣菲、银城东苑、雅居乐、公园里五号、东方天郡、金陵王谢、钟山花园城、卢龙山庄、宋都美域、金陵大公馆、德基紫金南苑、宏图上逸园、宏图上水园、复地新都、名城世家、紫金东郡、藏龙御景等。
别墅:
香山美墅、山水风华、山水华门、东墅山庄、新城尚东区、中国人家、万科红郡、运盛美之国、新世界花园、依云溪谷、罗托鲁拉、玛斯兰德、加州城、山河水等。
工装:
1912 菲比酒吧、新上海大酒店、金陵大公馆茶社、龙蟠路华艺楼(2000 平米餐饮空间)等。
所获奖项
2009 年[爱尚家居]样板房设计二等奖
2011 年[芒果杯]室内设计大赛优秀作品奖
2013 年[简一杯]室内设计大赛一等奖
2014 年中国设计星南京赛区优胜奖
2015 年中国建筑行业协会全国住宅装饰装修行业资深设计师荣誉称号
2015 年国家筑巢奖优秀设计奖
2015 年[星艺杯]全国住宅项目设计工程实景类优秀奖
2016 年[星艺杯]全国公共项目设计工程实景类优秀奖
2017 年[艾舍奖]中国建筑装饰行业(别墅豪宅)金奖
2018 年中国设计年度人物(精英设计师)
2019 年南京十佳杰出新锐设计师
2019 年广州设计周年度优秀住宅公寓设计师
2019 年广州设计周年度最具人气住宅公寓设计师
2019 年上海国际设计周金梁中国设计奖(城际榜)
客服
消息
收藏
下载
最近














































