查看完整案例


收藏

下载
展示设计是一个系统性工程
除了考虑空间大小、合理布局等客观因素之外
任何布置方案都需了解了客户需求后
进行反复规划、多次论证
不仅仅为后期精致呈现
以建筑的视角
打造出一个体验感极強
雅致和厚重的简约空间
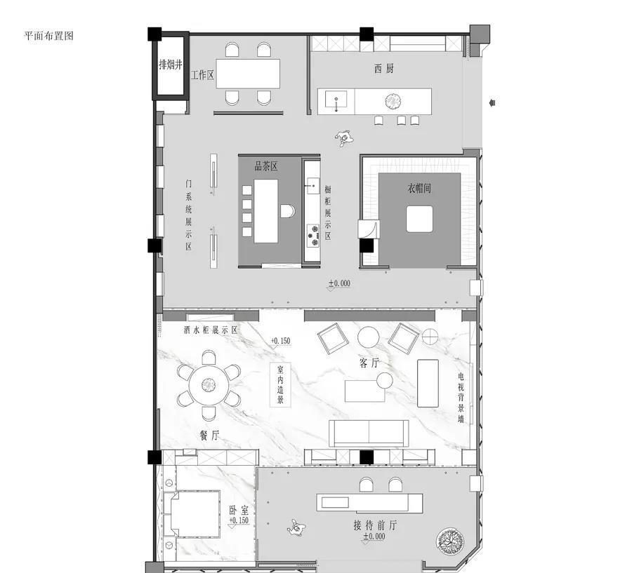
主入口处柔和的中性色调将人引入温馨的氛围,门厅不大却承担着内外连接过渡的重任,排比式的主背景造型给人利落、简洁、秩序感。
去LOGO化理念
空间给人以停下脚步冥想片刻的闲暇
也是
将产品与空间有机结合
强体验
传达出有品质的感受
有意图的抬高地面
让悬浮式客厅、餐厅
同在一处空间
营造舒适自由而温暖的家居真实场景
暖黄色的壁柜灯光与鸡翅木灰色的结合
让时光更为动人
轻盈流畅的线条
用简约延续家的故事
造出本真的空间环境觅一抹舒静安宁的美好
圆形餐桌与形态灵动的餐椅巧妙组合
更为自由开阔
红色果实的点缀带来视觉上的跳跃,简单中饱含特色给人一种亲切舒适之感。
转折的过廊空间
艺术玩偶的加入
低调奢华的橱柜,无主灯设计
利用墙体和材质之间落差
来进一步强调空间的视觉纵深感
层级递进关系分明
细条纹状的长虹玻璃光影映射下,显得晶莹剔透。
开放式厨房的设计
有着畅快的心情表露与品味
优雅的灰色与白色搭配
让大气与放松的气息充满空间
精薄的钢板的设计在提升空间感的同时也给人视觉上的艺术感
不同的理念
同一个方向
LIMBER|林本
始终致力于创造个性和谐的内部空间
将每一个定制服务都赋予更深层次的生活含义
客服
消息
收藏
下载
最近
























