查看完整案例


收藏

下载
推演空间细微的尺度,探索小空间的极致
原始结构
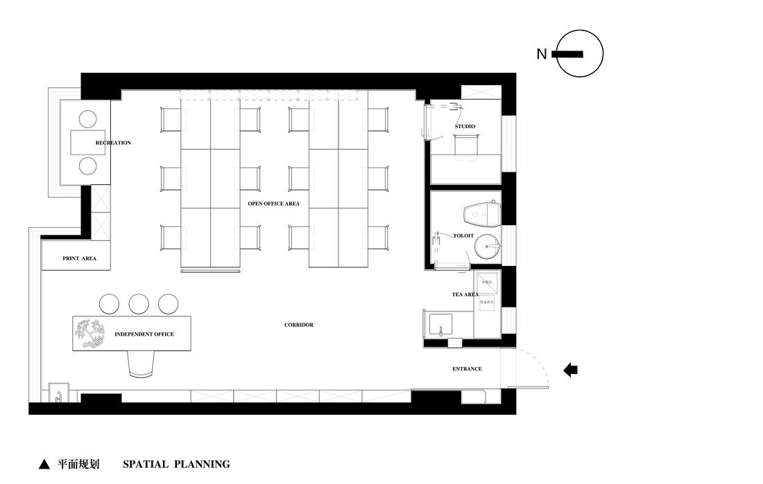
平面规划
功能分布
入口作为办公区域的初步印象,用最直接的设计语言营造了简洁 、干净空间氛围,使空间呈现一种自由的向度。在初进入空间时便感觉到极致的纯粹,也因此有了不同的视觉层面。
入户,一室极静的白,纯净的色调、极致的线条、几缕光线,梳理整个办公空间序列的前奏。这一空间不是被探索的,而是开门见山式的整体呈现,置身其中,安静而又纯粹。
简约空间以黑白调性为主,用最少的元素,配合纯粹的线条,以极致的手法渲染出纯净的空间,给人一种明亮开阔的视觉冲击。
空间划分和造型全部沿用线条这一元素,利用线条的序列感来诠释空间的大气整洁性,层层递进,方寸之地亦显空间之宽。
茶水间,简约极致,一侧设计的立体切面感玻璃墙,带来棱角分明的视觉享受
卫生间呼应整体空间调性,使用有着粗糙本质及纹理的大理石,还原极简本色。
精巧利落的线条划分出开放空间所需要的分区,嵌入式线型灯条拉伸出没有界线的空间延伸感 ,延展了空间的维度。
打印区黑白纯粹的极简模样
舒适的飘窗设计成了休憩区,和收纳柜相结合,丰富了空间的节奏感。冬日午后暖阳洒进室内,一杯咖啡,一个靠枕,轻松的氛围营造出惬意的休闲时光。
于纯粹色调中的一抹绿意,为空间增添生机,也为工作繁忙之余提供慵懒与闲适。温润的原木、空旷的白、冷峻的黑,挂画中海洋般沉静的蓝,添增了空间情韵,让空间更加空灵纯净。
利落的线条在空间中营造出数学的秩序之美,构成块面的错落、穿插与排列,让整个空间看起来灵活多变,在实现极致的同时,赋予空间丰富的层次感。
空间中玻璃隔断如神来之笔,或阻隔、或反射倒映,呈现出理性线、面元素,对空间边界进行模糊与过渡,以构造及引导空间尺度的流畅律动。
活捉一只小可爱
客服
消息
收藏
下载
最近





























