查看完整案例


收藏

下载
艺梵的业主找到我们,希望我们能给她带来一个充满着生活气息的普拉提馆。并提出了一个严格的装修预算,在极其有限的空间内需要容纳进各种功能,满足场馆的日常运作。
新的普拉提馆采用大量老馆拆卸下来的木板,进行了材料的二次利用。为场馆装修节省了大量的开支,如何利用好这些废旧的材料,成为了我们需要思考的重点。
In order to build the new Pilates gym, we choose a lot of wooddispatched from the old one for the secondary utilization of material. Theemphasis what we should think about is how to utilizescrap material, for thesake of reducing expenditure of the decoration of gym.
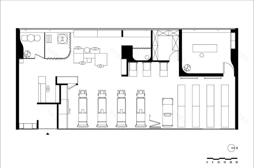
我们按照人活动的规律,将各个功能区安放在动线之间,满足普拉提运动者的各项需求。为了节省空间,将两个教室合并成一个整体,用可推拉的移门将其分隔。理疗区采用中度活跃的玫瑰色,让人能沉静冥想。
In compliance with the law of human activity, we place eachfunctional area among the generatrix to meet all requirements of the Pilatesactivist.We integrate two classrooms into one and separate them by push-pullsliding door. As to physiotherapy area, there is full ofmoderately activerosecolor which is able to allow person to meditate silently.
业主饲养了两只猫咪,需要专门安排一个猫舍,方便它们的起居和日常活动。猫舍用透明的亚克力板搭建而成,期间穿插楼梯和小屋方便猫咪在内部空间的生活,普拉提学员在运动之后,可以和猫咪有直接的互动,缓解运动之后带来的疲惫之感。
There need be a particular cattery for twocats raised by the owners to facilitate their daily living and activities. Weadopt transparent acrylic plates to set up the cattery,alternatedwith stairsand cabins to befor the convenience of kitties’ living. Besides,this design enables Pilates students to interactwith cute kitty directly to relievetheir feelings of fatigue.
项目名称:艺梵普拉提馆
空间设计:上宅良营空间设计
主持设计:汪春林
项目地址:杭州、太合商业中心7幢802室
建筑面积:150m²
空间摄影:张家宁
施工监理:徐金有
项目客户:杭州艺梵健康管理有限公司
主要材料:不锈钢、瓷砖、木地板、乳胶漆
完成年份:2020.07.12
Project Name:Yi FanPilates Gym
Space Design:ELEGENT DESIGN
Chair Designer:Wang Chunlin
Project Address:Office No. 802, 7 Building Tai He Business Centre, Hangzhou
Building Area:150m²
Space Photographer:Zhang Jianing
Construction Supervisor:XU Jinyou
Project Client:Hangzhou Yi Fan Health Management Co. LTD
Main Material:StainlessSteel、Ceramic Tile、TimberFloor、Latex Paint
Completion Date:2020.07.12
客服
消息
收藏
下载
最近


















