查看完整案例


收藏

下载
项目位于西安大华1935工业园区,商场是由原长安大华纺织厂新布场厂房改造而成,承袭了珍贵的近代工业文明遗存,集合现代社会城市的综合功能,定位为涵盖大华博物馆、小剧场集群、文化艺术中心、精品酒店、特色餐饮、购物街区等城市生活多种功能、多样文化、多元消费的文化商业mall。
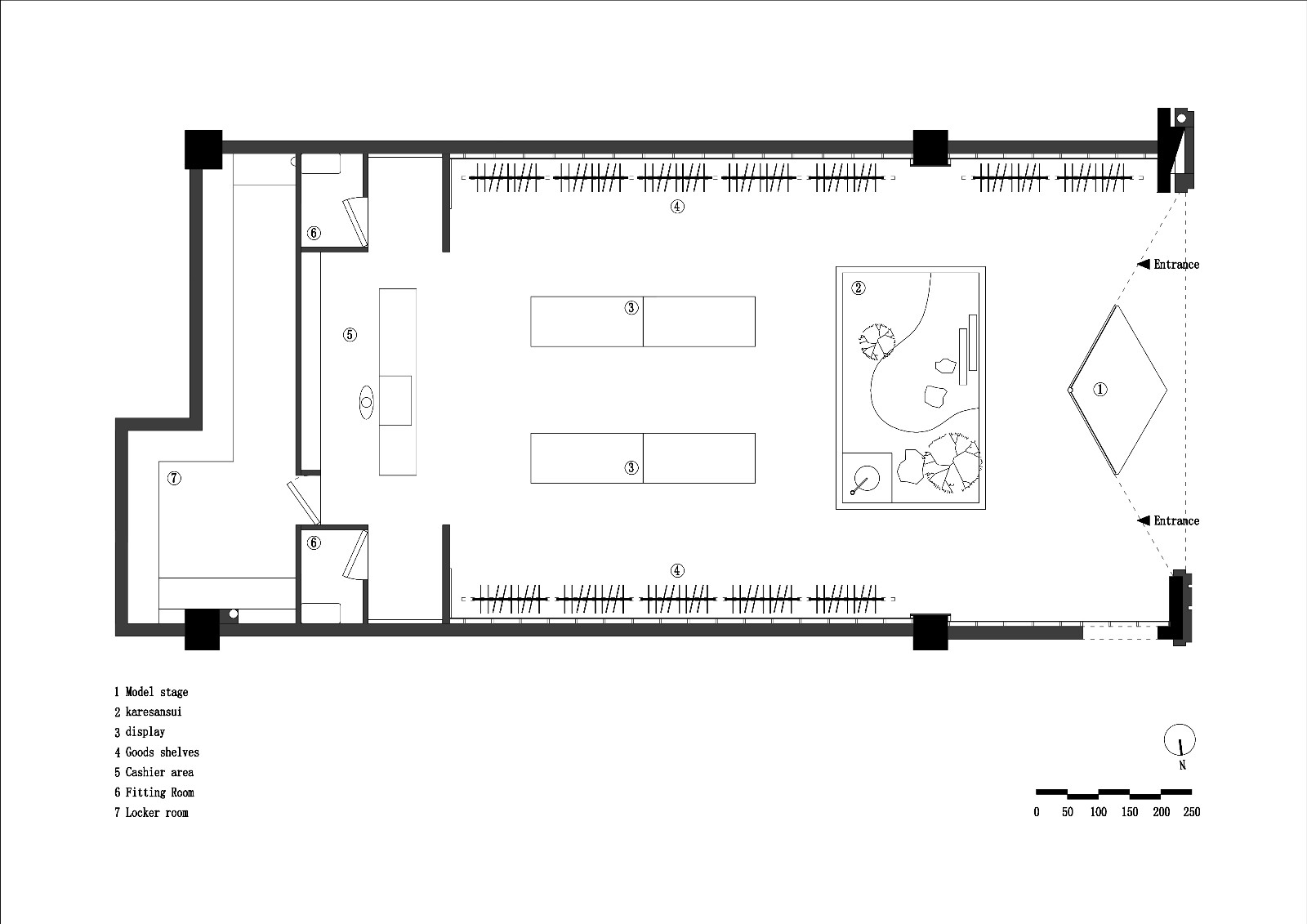
店铺有100平方米的展示空间,如何巧妙的陈列服装,充分表现seibmaca品牌的时尚精神,是设计时我们主要思考的问题。
大华1935保留了原有的混泥土主体建筑结构,商场环境透露出浓重的工业风格,西安是中国的文化之都,处处彰显着古都的风韵。
seibmaca店面采用极简主义理念,使用不锈钢和铁板等简洁大方的现代材料打造时尚的优雅形象。使新和旧达到一个完美的平衡。
白色的粗糙墙壁、简单的不锈钢货架、顶部的人造天光,我们摈弃了多余的空间装饰和软装搭配,使服装和空间在这里相互补充,散发出朴素的光辉,营造出静谧安详的氛围,让喧嚣和沉静达到一个平衡。
在这个纯白的空间内,我们为中庭植入了一块枯山水。以山、石、树木、水为自然元素,在喧闹的城市里,为顾客呈现一种舒适与宁静的感觉,让心灵得到放松和释放,远离日常生活的急躁。
项目名称:SeibmacA西安大华店
空间设计:上宅良营空间设计
项目地址:中国.西安.大华1935
施工单位:上海君蓝装饰
项目客户:香港潮艺基金管理有限公司
主要材料:铁板、不锈钢、石材、乳胶漆
完成年份:2019.11.01
现代 轻工业风 购物空间 高级灰
客服
消息
收藏
下载
最近

































