查看完整案例


收藏

下载
空间插图
进入集团办公大楼的流线和原本各功能的布置也算干净利落,所有的员工都在早已安排紧凑的环境内按部就班得忙碌着。改造区域的场地无论视野和自然采光都是整层的最佳位置,如此也让这座办公大楼里的阅读空间能和室外的细微变化发生紧密的联系。
场地原貌
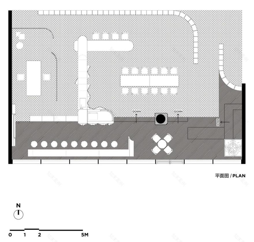
在考虑整体改造策略时,“边界”的概念尤为重要,无论实际的应用以及消防的硬性要求限制,一种模糊化的空间处理让这次更新变得轻盈可控。两组书架在前期设定的边界位置既充当与工作区的虚隔断作用,又承载主要的书籍展示功能。材料的配比上用双层阳光板和自然纹理的松木板组合使用,呈现质朴的张力。
设计初期就有个明确的寄望,想用一组温暖的灰绿色体块嵌入空间内,南侧的阳光和浅黄色木纹的肌理也穿插其中,生机盎然。因为保留了空间原有的方格吊顶,在包裹结构柱体以及组合柜时,通过一个新加的圆角顶面结构来连接竖向木格栅内的小书房。同样,各个功能之间也未设置明确的边界,进一步增加空间的开放程度。延落地玻璃窗的抬高部分延伸至书架区域,形成可落座的台阶。另一侧的长吧桌放置于最为明亮的区域,可安静得享受充裕阳光。春风习习杂志阅读区同样出现在阳光的末端,在墙体的书架中为喜欢新颖独立刊物的人们准备着定期更新的惊喜。
前文提到的综合功能,考虑书架的设置和水吧紧密结合,我们设计了可移动的吧桌以及方便组合的长桌分隔交通流线,方便在不同功能场景下供使用者安排。所有的空间组织最终是为了营造新的秩序,一种从大空间进入小空间,小空间回到大空间,以及它们之间相互作用时带来适度的轻松节奏。灯光的配比和各个家具的视觉构成,也谨慎考虑到圆形或者弧线在此节奏中的重要作用。
当然,一个空间对人行为所带来的影响是有诸多未知的,原本格子间的场地如此置换一新后,期待在这里工作的人们能尽可能消解掉一些冗长的约束,在这个边界感变得模糊的阅读休憩角落有所发现,有所知。
项目地点:北京市 东城区
项目规模:150平米
完成时间:2019年 10月
委 托 方:天街集团
设计团队:未来以北工作室
施工团队:北京世纪鑫星装饰工程有限公司
摄 影:未来以北工作室
空间插图
客服
消息
收藏
下载
最近






























