查看完整案例


收藏

下载
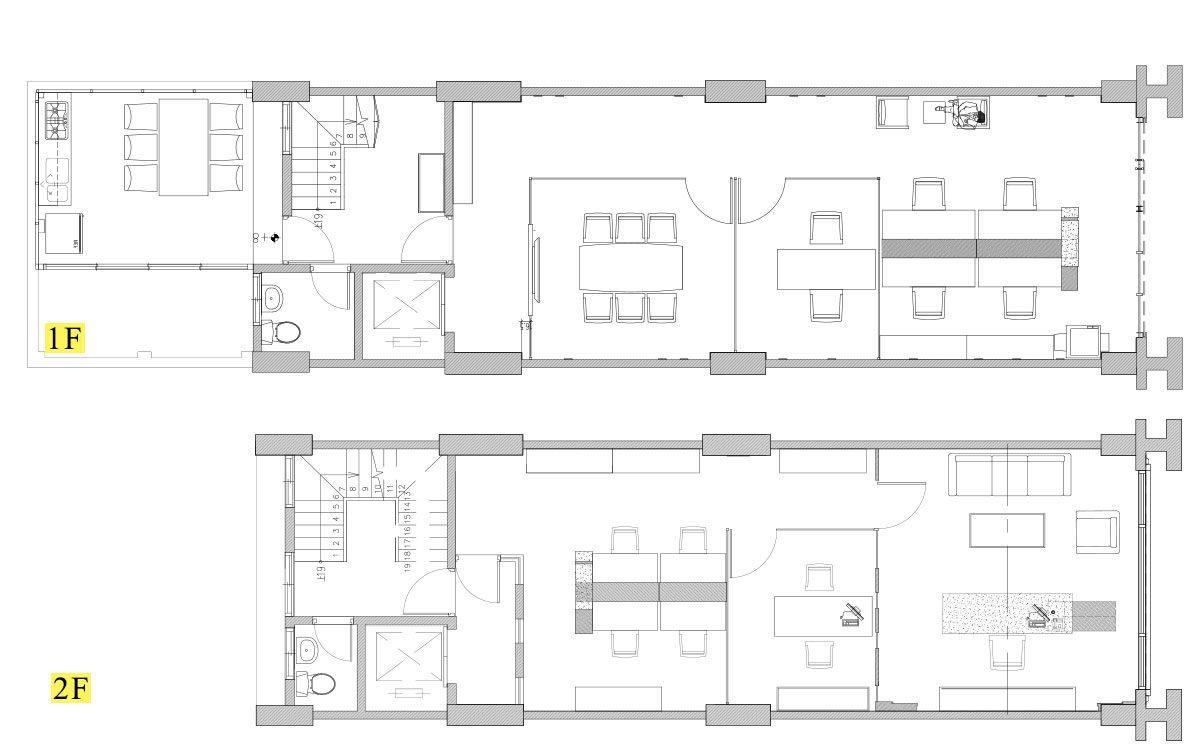
设计者利用通透的隔间规划,使採光得以到达空间最深处。
天花的木质框架中,铁件灯具的线性造型,创造空间纵向的向量张力。
木质、石材与铁制办公桌的结合,不只梳理线路,更摆脱了冰冷的制式形象。
法律藏书多样缤纷的色调成为吸睛端景,同时堆砌专业形象。
空间中大量镜面、玻璃的运用,使狭长空间拥有加倍的视觉气度。
廊道望向洽谈区与主管室,灰镜以长短错落的造型,于空间中营造律动都市感。
酒红色的烤漆玻璃为视觉主景,洽谈、会议室以拉帘保有隐私弹性。
会议室的电视墙巧妙将通往2楼的动线,独立于公共段落之外。
延续1F相同的石材与木质造型,为进入2楼的视觉端景。
天花光带与主管室的虚实隔间错置,在隐私与串连间保留光线的延续感。
长形的石材桌、木质与暗金色的壁纸,堆叠业主办公区的低调大器。
天花带入些许的古典框线元素,与窗外的圆拱的古典造型唿应。
客服
消息
收藏
下载
最近















