查看完整案例


收藏

下载
座落于台中闹区,白色亮眼的外型,妆点着可爱的蜂巢和瓢虫图案,吸引着众人目光。
夜幕低垂,建筑物俨然成为发光体,伴随虚实的蜂巢造型,别有一番风情。
气派瓢虫的红色圆点,为进入空间作了完美诠释和破题。
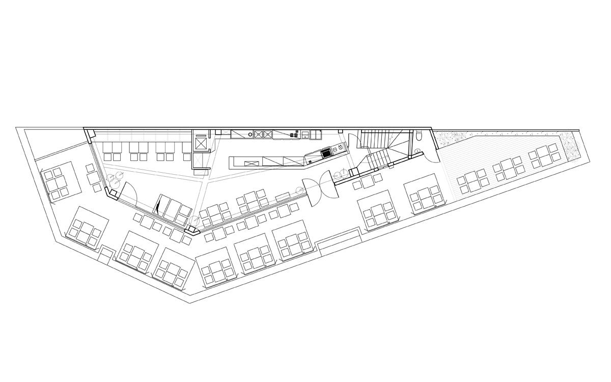
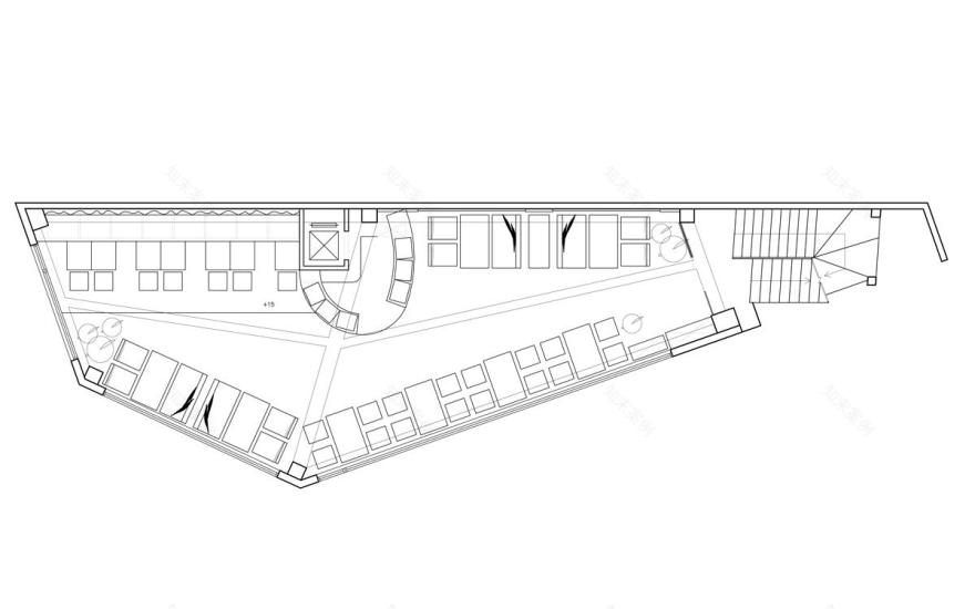
大片落地玻璃窗,里内皆是白色蜂巢概念的延展。
以梧桐木钢刷粗犷的纹路,彰显厚实立体感,黑色铁件作为吊杯架酷又有型。
用杉木喷白作出蜂巢天花造型,鲜黄压克力壁面飞满俏皮的蜜蜂,在灯光的衬托下,让人不禁会心一笑。
纳入盎然的绿意和明亮的天光,在此用餐真是一大享受。
将侧柏木切块拼贴于主墙面,刻意不上漆面,让自然的木头香味飘散在空气中,彷佛沈浸在大自然中。
动线顺畅的餐内格局分佈,用黑、白、黄三色直接且鲜艳的印象让人强烈。
使用沖孔贴板将餐厅LOGO装饰其中,壁面以亮橘色作跳色处理,型塑出独立的用餐区块。
中继端菜的工作区,以黑色和黄色大小不一的圆型手工拼构而成,穿透性高,像个装置艺术般抢眼。
烤漆玻璃上用可爱的图样区分男女,既是造型又兼顾功能,小细节让人眼睛为之一亮。
客服
消息
收藏
下载
最近
















