查看完整案例


收藏

下载
UNStudio’s design for the new Transfer Terminal and Air Traffic Control Tower for Kutaisi Airport was officially presented yesterday by the President of Georgia, Mikheil Saakashvili. Georgian President Mikhail Saakashvili, who personally demolished one of the walls of the old
airport yesterday announced, “”We will build an international airport here, which will take aircraft from Munich, Rome, Baku and other cities as of next year.”
UNStudio has designed the new Kutaisi Airport which will serve domestic and international flights for use by international diplomats, national politicians and for tourism. Georgia, a young state in the Caucasus which has undergone considerable development in recent years, is moving its Parliament from the capital Tbilisi to the city of Kutaisi. A new parliament building is currently under construction in Kutaisi and in 2012 the first parliamentary meeting will take place.
In recent years growing numbers of tourists have been discovering Georgia, a country with an ancient and engaging history. As a result there is increasing demand from airlines to fly to Georgia. By virtue of its geographical advantages and the nearby location of two of Georgia’s most important Unesco monuments, Kutaisi was selected as the destination for a new airport. The new Kutaisi airport will in addition provide an economic impulse to Georgia’s second city and its new seat of Parliament.
Ben van Berkel: “The design for the new terminal in Kutaisi focuses first and foremost on the experience of the traveller by creating an inviting, safe, transparent and user-friendly airport. The desire to provide for and communicate equally with both international visitors and the local community is paramount. ”
UNStudio’s design for the new Kutaisi Airport incorporates both Georgia’s historic landscape and its architecture. In Georgia public buildings and private houses employ their entrance lobbies as showcases for their individual identities. In the design for the new airport UNStudio embraces this architectural concept in order to manifest Georgia’s young and dynamic democracy, along with its rapid development as a main crossing point in the region. Georgia is located on a crossroads of rich cultures, with a history of travellers passing through the Caucasus or arriving from the Black Sea.
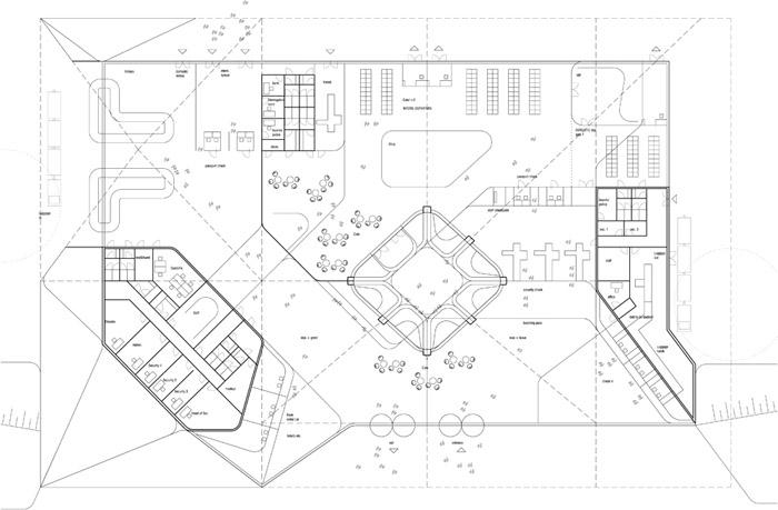
Ben van Berkel: “It was particularly exciting for me to be able to design an airport which is not only linked to the new seat of parliament in Kutaisi, but which also creates an entrance condition which functions as a port for the international community. The airport presents a symbolic infrastructural gateway to Georgia and, from there, to the rest of the world.” The 4,000 m2 terminal building will house a central arrivals hall, a check-in area with lounge, cafe and car rental facilities, three gates for departure with retail, cafes, a CIP lounge area and exterior garden, an arrival area with customs and offices for the border police and an administration area with staff rooms and press conference facilities.
The architecture of the terminal refers to a pavilion; a gateway, in which a clear structural layout creates an all encompassing and protective volume. The volume is structured around a central exterior space which is used for departing passengers. The transparent space around this
central point is designed to ensure that flows of passengers are smooth and that departure and arrival flows do not coincide. These axes incorporate views from the plaza to the apron and to the Caucasus on the horizon. The design organises the logistical processes, provides optimal security and ensures that the traveler has sufficient space to circulate comfortably. Serving as a lobby to Georgia, the terminal could in addition operate as an art gallery, displaying works by Georgian artists and thereby presenting a further identifier of contemporary Georgian culture.
The 55m high, 300 m2 Air Traffic Control Tower is designed to compliment the design of the terminal. The traffic control cabin on the top level forms the focal point of the tower, with a spacious and comfortable interior ensuring a workspace of optimal concentration. 1,500 m2 of supporting office spaces are housed in a nearby building. The exterior of the tower is clad with a transparent skin with the potential to change color whenever there is a fluctuation in traffic. The Air Traffic Control Tower will function as a light beacon to the sky for the international airport, but also from the road to and from Georgia’s new parliamentary city Kutaisi.
Ben van Berkel: “The design for the new airport embraces the traveller by embodying the circumstance of the site. Moments of both leaving and returning are celebrated by the large span, open spaces and high ceiling of the terminal structure – reflecting the ways in which such
gestures were employed in the great railway stations of the past.” The design for the new airport aims to incorporate local and international sustainable elements. An onsite underground source of natural water provides the basis for the reduction of energy consumption through concrete core activation. The floors of both the Terminal and the ATCT will utilise this water for maintaining a regulated temperature in the two volumes. In the Terminal building cantilevered roofs provide sun shading on south and southwest zones. A hybrid low pressure ventilation system will be integrated into the terminal’s main structure and there will be a grey water collection system in the floor underneath the terminal building. To further lower energy consumption there is the possibility to implement large areas of PV-cells on the roof surface. Kustaisi airport will be Georgia’s first airport to incorporate a strict segregation of waste. The aim is to establish a recycling system which could be further implemented into new and existing projects in Georgia.
Construction on the new Kutaisi Airport will begin in December 2011. The airport is scheduled to be operational in September 2012.
格鲁吉亚总统在昨日宣布UNStudio中标格鲁吉亚机场中转站和控制塔。这个国际机场将在明年承担慕尼黑以及罗马的航运任务。
格鲁吉亚是最近几年快速发展的高加索区域年轻国家,也有越来越多的游客被这里的古老历史吸引,因此迫切的需要一个新机场。
Ben van Berkel认为这个机场应该透明,友好,安全,为当地和国际游客创造出一个国际化的门面形象。同时新机场的设计包含了当地的历史元素,在格鲁吉亚,公共建筑和私人建筑都有一个展示性入口大堂,因此这个设计里面包含了一个体现格鲁利亚民主,年轻,活力的的大堂。格鲁吉亚位于高加索,黑海文化交汇之处,文化丰富。Ben van Berkel表示他不仅仅非常兴奋能够设计这个重要的机场,同时还创造了一个象征格鲁吉亚与世界相联系的国际门户。
4000平米的大楼包含中央大厅,关卡,休息室,咖啡厅,汽车租赁处,3个零售店,CIP休息室以及海关办事处,新闻发布室,和工作人员区域。尽端的关卡满足流量和防护量,建筑围绕一个在中心的外庭布置流线,到达流线清晰不重合。同时在建筑中视野良好。建筑具有足够的安全性和让游客舒适的空间。建筑一角是一个画廊,展出了格鲁吉亚艺术家的作品,展现着这个国家文化的兴兴向荣。
机场终端有一个55米高,300平米的航空交通控制塔。顶层的控制室最为主要,这里宽敞,舒适,具有良好的工作空间。1500米的配套设施安置在附近。塔的透明表面可以倒映飞机起飞降落,色彩也变化多端。这个控制塔也是一个机场,城市,道路的灯塔。Ben van Berkel提到起飞和降落都是经历了时间和空间的大跨度,所以机场使用了开放的空间和高挑的结构迎送游客,这种空间也常常在过去的大火车站里用到。
新机场力求纳入国际与本地元素,采用多项可持续性调节措施。利用地热调节水温,建筑南部和西南部用悬挑进行遮阳。低压通风设备被整合入主体结构之中,屋顶覆盖太阳能光伏电池板。该机场有望成为格鲁吉亚第一个节能机场,并成为未来建设的榜样。
新机场12月动工,2012年9月将投入使用。
Kutaisi Airport, Georgia, 2011 – 2012
Client Terminal: United Airports of Georgia LLC
Client Air Traffic Control Tower and Offices: SAKAERONAVIGATSIA Ltd.
Location: Kutaisi, Georgia
Building surface: Terminal 4.000m2, Control Tower and Offices 1.750m2
Height Air Traffic Control Tower: 55m.
Building site: 11.000 m2
Programme: International Airport Terminal, Air Traffic Control Tower and Offices for Navigation
Status: Concept Design 2011, Construction 2012
Credits
UNStudio: Ben van Berkel, Gerard Loozekoot with Frans van Vuure and Filippo Lodi, Tina Kortmann, Roman Kristesiashvili, Gustav Fagerström, Wendy van der Knijff, Machiel Wafelbakker, Deepak Jawahar
客服
消息
收藏
下载
最近








