查看完整案例


收藏

下载
现代城市生活节奏快速,推动着每个人不停向前,每个为生活奔波的打工人在闲暇时刻都希望停一停,放空思绪,和朋友爱人享受当下。酒吧是一个绝佳的使人放松的场所,在微醺中短暂逃离繁琐,在轻松和惬意的时间里同爱人友人享受一份纯粹的愉悦,这便是Sodoi品牌创立的初衷,希望给城市打工人一个逃离都市的有趣空间。我们也将空间尽力做的有趣和充满惊喜。
Modern urban life, with its rapid pace, pushes everyone to endlessly move forward. Every employee bustling around yearns for a moment of relaxation, a moment to relieve the mind and enjoy themselves with friends and soulmate. Bar is a superlative spot for people to relax themselves, to temporarily run away from the tedious work for a moment in a slightly drunken state, and enjoy pure joy with soulmate and friends in a leisurely and delightful atmosphere. Sodoi, originally motivated by such an aspiration, is devoted to providing an interesting space for urban employees to escape from the city. We also exert our effort to create space with great appeal and full of surprise.
▼酒吧外观 external view of the bar ©或者设计
一楼,我们将城市公园和街头元素融入空间,年轻人可以在这样一个“放松”的场景中更加自由的社交与释放。入口处墙面阵列的摄像头装置和计时器反映着当下每个人都身处于一个无时无刻被监控的时代,但同时Z世代的年轻人们又都渴望通过“摄像头”分享自己的生活有趣和个性,并被更多人看到自己的”独特”。空间正中的客座区环绕一颗繁茂的绿植排布,在低暗的氛围光中这颗绿植仿佛赛博废土中生出的希望。
▼一楼分析图,analysis of the first floor©或者设计
For the first floor, we integrate urban park and street elements into the space, which prompts young people to engage themselves in social interactions and free themselves in such a “relaxing” atmosphere. The array of camera devices and timers on the wall at the entrance are suggestive of an era when everyone is under constant surveillance, while young people of Generation Z are eager to share their interesting and individual life through “cameras”, and to present their own “peculiarity” to others. The guest area, located in the middle of the space, surrounds a lush green plant, which symbolizes hope hatched from the wasteland of cyberspace in the dim light.
▼室内空间一楼概览,first floor overall view of the interior space ©或者设计
▼空间中部设有绿植 vegetation in the center of the space ©或者设计
▼出餐口,outlet ©或者设计
▼卡座区,seating area ©或者设计
▼吧台细部,details of the bar ©或者设计
▼入口装置,installation at the entrance ©或者设计
▼ 交通锥形桶做成的灯具,lamps made of traffic cones ©或者设计
▼灯箱,light box ©或者设计
▼顶部反光镜,reflector ©或者设计
▼细部,details ©或者设计
穿过像隧道一样的楼梯间,二楼我们将户外街头的主题融入空间做了一个完全“颠倒的世界“,我们希望创造一个超现实的赛博朋克空间。置身于空间中,人们熟悉的步行道被置于了空间顶部,两个人形雕塑在逆世界里行走。颠倒的世界,室内与室外的置换,灯光与动态视频的相互影映,为顾客创造了奇妙的置身感。让整个二楼成了一个超现实的赛博朋克空间。
A tunnel-like staircase leads to the second floor, where we integrate the theme of outdoor street into the space, and create a completely “upside-down world”. We intend to create a surreal cyberpunk space. In the space, the common walkway is placed at the top of the space, in which two humanoid sculptures stroll in the reverse world. With the upside-down world, the indoor-outdoor displacement, and the mutual reflection of lighting and dynamic video, customers can wonderfully immerse themselves within the space. In that sense, the entire second floor is transformed into a surreal cyberpunk space.
▼室内空间二楼概览,second floor overall view of the interior space ©或者设计
▼颠倒世界,upside down world ©或者设计
▼ 播放中的装置,device in play ©或者设计
▼装置细部,details of the installation ©或者设计
▼就餐区,dining area ©或者设计
▼直播间 live room ©或者设计
▼客座区 guest area ©或者设计
▼空间细节,details ©或者设计
科技早已重塑我们对世界的认知,随着元宇宙概念的出现,相信很快人们将有机会穿梭于虚拟与现实之间,希望这个“颠倒的世界”可以提前让人们置身其中。
Our perception of the world has already been reshaped by technology. The advent of meta-universe may possibly allow people to shuttle back and forth virtuality and the reality. Hopefully, this “upside-down world” can immerse people in it in advance.
▼一楼平面,first floor plan ©或者设计
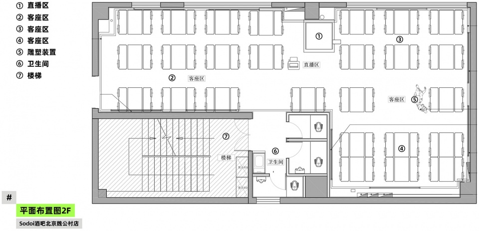
▼二楼平面,second floor plan ©或者设计
项目名称:Sodoi酒吧
项目地点: 北京市海淀区魏公村
主持设计师:巫国源
设计团队:奕豪、BOBO、小鱼、小鸣、张浩、吕哥
项目业主:Sodoi
主要材料:不锈钢、金属烤漆、地坪漆、
室内面积:303m2完工时间:2022.01
摄影:或者设计
Project name: Sodoi Bar
Project location: Weigong Village, Haidian District, Beijing
Director: Guoyuan Wu
Project team: Yihao, BoBo, Xiaoyu,Xiaoming,Zhanghao,Lvge,
Client: Sodoi
Main materials: Stainless steel, metal paint, floor paint,
Indoor area: 303 square meters
Completion date: Jan.2022
Photography: OR Design
客服
消息
收藏
下载
最近






























