查看完整案例


收藏

下载
“波光潋滟三千顷,莽莽群山抱古城。”项目位于云南昆明,由美时美客主持设计。在满足业主常规需求之后,以简约设计手法重塑空间内核,将空间场域、艺术美学、人文诉求传递至空间的每一处细节,展现一种自然舒适、简约纯粹的当代生活方式。
01Artistic aesthetics
艺术美学
当代住宅空间不只是简单的栖身之所,更是一种生活方式。
多重元素在组合、交融的布局连接下,展露出强烈的序列感,与曲线的造型、现代科技感相融,营造出丰富的视觉层次。
艺术美学和谐地融入生活场景,精心挑选的绘画作品、自然绿植、摆件作品,陈列在空间各处,赋予空间鲜明的艺术格调。
明亮通透的落地窗,阳光透过白色纱帘涌入室内,温柔而细腻的氛围感充盈其间。随着时间的流逝,光影悄然变幻,为静谧之地增添几分活跃。
02Simple style
简约格调
纯粹的用材与配色,奠定干练简约的面貌。硬朗质感的餐椅,与艺术氛围相得益彰,更透出与家人共进餐的温馨和谐。
精巧的灯饰、别致的摆件和绿植……空间中的每个单品,无论是质感还是色彩,都蕴含精致而时尚的美学内涵,为居住之人营造充满艺术气息的生活体验。
艺术是表达世界的一种载体,其对生活的滋养常落笔于点滴之处。设计师以“美学”为创作精神,不造作、不浮夸、追求唯美和谐的设计感。
每个人的家都属于自己的独特印记,这里亦是收藏及爱好的展场。立柜的摆件是生活态度的另一种表达,诠释了主人鲜活的生活方向。
03Return to essence
回归本质
当结束一天的忙碌,卧室带来沉静、自由、放松的气息。无论外界如何喧嚣嘈杂,只愿在这方寸之间回归生活本身。
剔除生活中的“繁复”,让真正的自我清晰起来。温润质感的饰面铺垫出细腻的感受,给予内心深处一份平静与安宁。
每一处细微的考量,都是设计的匠心落笔。精致的装饰物与空间场域完美融洽。多样化的艺术肌理,通过床品、画作、灯具等元素的协调搭配,让空间变得更有气韵。
简洁静雅的室内空间布置,舒缓的视觉底色下,深浅色阶巧妙过渡,营造出独特的惬意之情和舒适的高级简约感。
生活,无非是加法与减法的平衡。纯粹的设计语言,在简单中亦能创造丰富的体验。
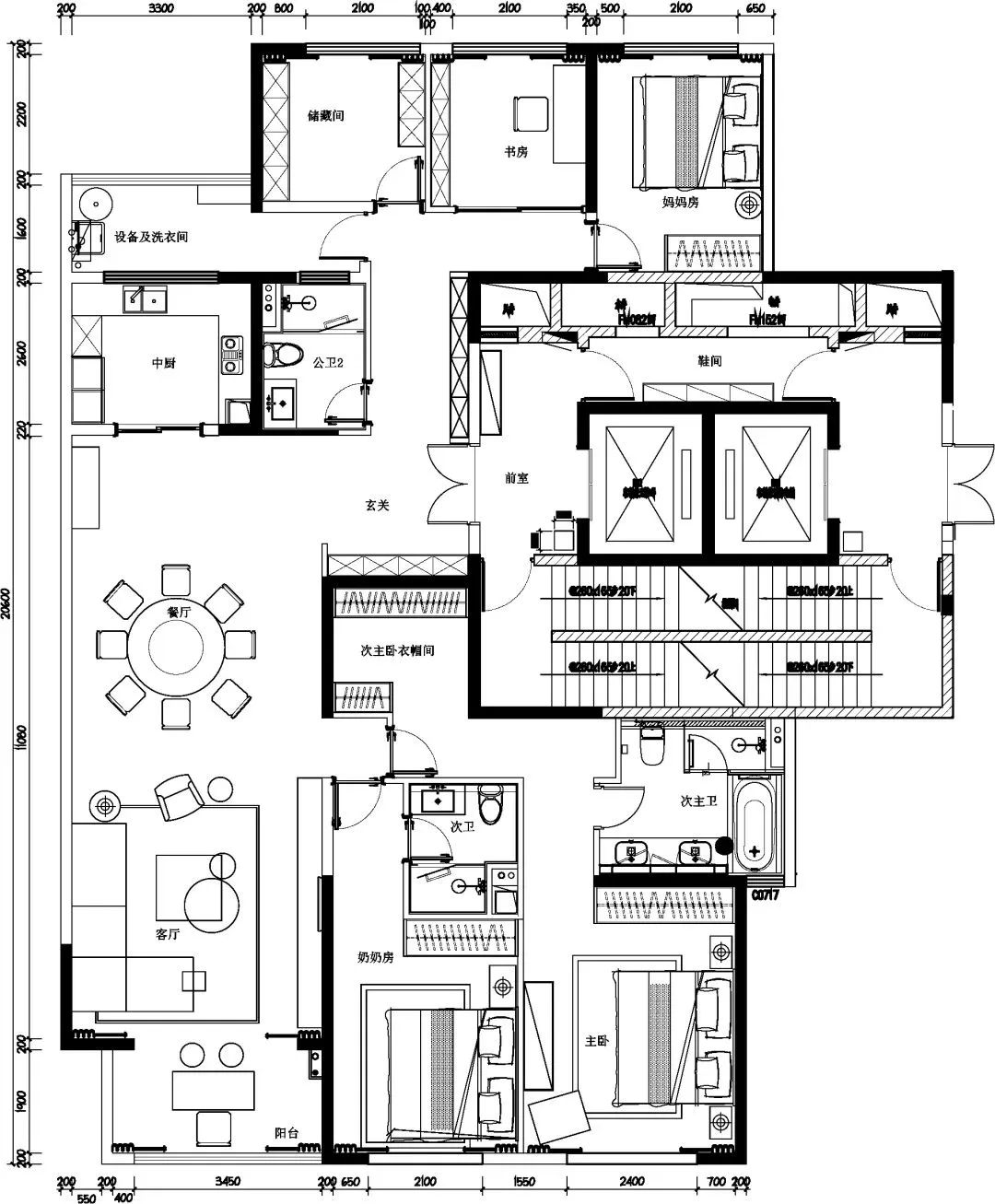
平面图
DESIGN PLAN
项目信息
ABOUT THE PROJECT
项目名称:逸天峰 8 栋 1 单元 1902
项目地点:云南.昆明
设计面积:242 平米
项目面积:242 平米
空间改造设计:MICMAX 美时美客
总设计师:何小龙
主案设计师:朱晓玲
软装设计总监:陈艳敏
软装设计师:朱晓玲 李婷
设计主材:MICMAX 美时美客家居、MULI 木里木外木质及硬包、NATUZZI 意大利进口家具、Poliform 意大利进口家具、巴夏家具、华意空间家具、进口施华洛世奇水晶吊灯、FLOS 意大利进口台灯、软装配饰
设计风格:现代风格
关于设计公司
ABOUT THE DESIGN COMPANY
MICMAX
美时美客是中国为数不多的可提供 360 度全方位设计服务的专业设计公司之一。自成立以来,成功为客户提供室内设计、物料设计、照明设计到软装设计等 360 度全方位设计服务。与国际创意设计理念同步,拥有杰出的国际合作伙伴,与不同的国际创意团队,实现无国界,跨行业,跨领域的战略合作,充分共享国际创意资源和丰富的项目经验,为客户提供 360 度全方位高端的专家级综合解决方案,提升产品价值。
客服
消息
收藏
下载
最近






























