查看完整案例


收藏

下载

翻译
Yun Lake Courtyard Resort is located in Yixing City, Jiangsu Province, on a hillside adjacent to the bank of Yun Lake. The building was originally a spare enclosed office building. Due to its unique location adjacent to the scenic spot, the owners wanted to transform it into a boutique resort hotel, to promote the local tourism industry. Studio DOTCOF accepted the commission, carried out this renovation design.
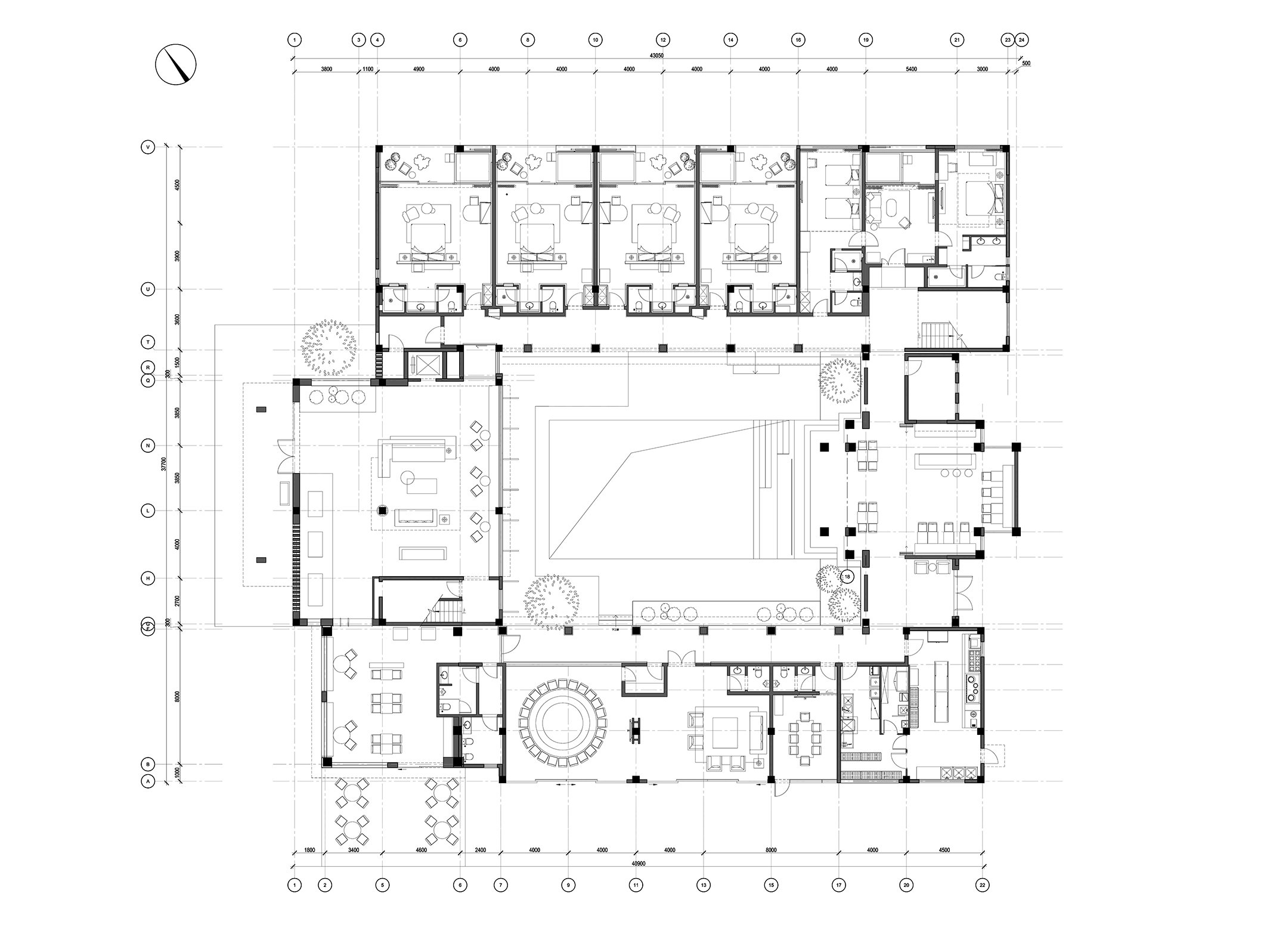
During site survey, the design team found that there are very beautiful natural conditions around the building, not only lake scenery and mountain views in the distance, but also lush trees and plants nearby. However, the space of the original building is relatively closed, which is not well combined with the outdoor landscape.
In order to allow guests to experience more nature and landscape, and get a more relaxed physical and mental experience, the designer has made special spatial treatment at the interface between the interior space and the outdoor landscape.
First of all, the design opens up part of the corridor area into a semi-outdoor corridor, allowing people to freely enter the inner courtyard; Then, according to the landscape and site characteristics, makes the openings of the external wall into various forms, such as long transverse windows, square windows, hollow holes, etc., so that the landscape and sunlight can enter the building in different ways; At the same time, give each room a balcony, which wide enough for guests to take a bath, drink tea, and feel the trees, sunlight and air up close.
The selection of materials also tends to be natural and real. Solid wood, sandstone, brick and rattan mat etc. are used in different areas of the space, allowing people to relax and be healed in the embrace of nature.
Project: Yun Lake Courtyard Resort
Customer: Yixing Meixiu Hotel Management Co. LTD
Design company: Studio DOTCOF
Design team: Chen Xi, Li Rong, Zhuang Haolai, Lan Lan, Yao Guangguo, Shi Tao, Chen Zhihao, Wang Qin, Sun Danqing
Structual Design: Pan Chao, Mu Chunlong,
FF&E Design: BHF Studio
Construction company: Yixing Urban Construction Group Co., LTD
Area: 2048m2
Completed: 2022-01
Photographer: Mono Photo Center, Zhuang Haolai, LEIDU, Li Rong
客服
消息
收藏
下载
最近



































































