查看完整案例


收藏

下载
弯弯绕绕,又高低起伏的路线被谦逊地设置,串联起不同的展示区域和展台。参观者在行进参观中,会经历从观望,到攀登,行走,转弯,下行,居停,回望等动作。这样一个类似微缩版的山城的空间游览体验,让人在不经意中完成了“观-游-居”的行为学的有趣体验。
山城展厅项目是多棵设计为老客户延锋汽车饰件系统公司设计的位于山城重庆的展厅。这是多棵设计为其设计的第五个展厅。在设计之初,甲方跟设计师提出了要求,希望这次在重庆这个展厅中体现一点当地的特色。
设计师联想到一些画面,这个山城的街道和建筑,立体而魔幻,空间高高低低,体验丰富而惊奇。设计师联想到另一些画面,其中有一些氤氲,潮湿,闷热的街边摊,在高大的黄桷树树荫下,热烈而喧嚣。重庆位于四川盆地东部,这里云层依然很厚,这里有全中国最少的日照时间;长江及嘉陵江也带来大量水汽;码头文化和始于湖广填四川的移民文化让这里有了一些独特的粗粝和江湖义气。
▲重庆“地域特征”印象 ©多棵设计
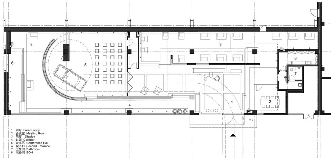
多棵设计带着这些对于重庆“地域特征”的印象,开始了他们的设计。设计师在前厅留出了一个较为开阔的空间,用于接待参观者,同时也是为了满足展车能开进来的宽度要求。刚好在这个空间,参观者可以在先整体预览到空间的概貌。
东侧和北侧空间的地面被抬高,参观者拾级而上,遇到的是一个玻璃的会议室,这里可做短暂停留;顺着展览流线继续绕到展厅的北侧,这里是展厅的暗区,用于展示客户一些带有灯光效果的产品。参观者会在这里遇到一面高高低低的开孔墙体,高的墙体挡住人的视线使其聚焦于展品,低的墙体和墙上的开洞则让人可以俯瞰到南面的门厅,那里是进入时走过的路径;
▲流线分析 ©多棵设计
▲东侧和北侧空间的地面被抬高 ©磊杜
▲会议室前走道 ©磊杜
结束了这里的参观后,又需要拾级而下,回到大厅的地面高度,在这里人的体验被整顿,视线既可以看到西侧抬高的通道,又可以回望前厅;再从西侧的台阶走上通道,去往接下来的展区和发布厅。
▲由西侧抬高的通道回望前厅 ©磊杜
▲通道通往接下来的展区和发布厅 ©磊杜
路线在这里被分为两股,可以下两个台阶达到半圆形的发布厅,也可以顺着圆形的外围,绕道发布厅的北侧进入。发布厅主要用于展车发布,讲座等,设计师用半圆形来延展空间的宽度,在顶面布置了发光灯膜,在有限的室内空间中营造“开阔”的意向。这些弯弯绕绕,又高低起伏的路线被谦逊地设置,串联起不同的展示区域和展台。参观者在行进参观中,会经历从观望,到攀登,行走,转弯,下行,居停,回望等动作。这样一个类似微缩版的山城的空间游览体验,让人在不经意中完成了“观-游-居”的行为学的有趣体验。
▲半圆形的发布厅 ©磊杜
▲矮墙与半透明织物营造出“开阔”的意向 ©磊杜
整个顶面设计师留出了裸顶,局部区域制作了一些钢制棚架,用于固定灯具,移门,金属帘等, 金属棚架隐喻了黄桷树,二者都在其下方为人们提供了舒适,有安定感的就坐体验;材质上设计师也仅使用了水磨石,手工拼砖,实木板,金属等少量几种材料,这是因为希望传递出一种这样的属于重庆的空间气质:简单直接,质朴,冲撞。
项目名称:山城展厅
客户:延锋
设计公司:多棵设计
设计团队:陈曦,李蓉,庄皓涞
项目设计师:李蓉
机电设计:李目,邓鹏
施工单位:重庆美的家装饰工程有限公司
面积:520m2
完成时间:2022年06月
项目地址:重庆市渝北区礼环北路16号
摄影师:磊杜
客服
消息
收藏
下载
最近


















