查看完整案例


收藏

下载
KAAN Architecten 是一家总部位于鹿特丹、在圣保罗和巴黎设有分部的建筑事务所,他们的项目遍布全球,融合了建筑、城市主义和环境等研究领域的实践和知识。
Kees Kaan、Vincent Panhuysen 和 Dikkie Scipio
工作室由 Kees Kaan、Vincent Panhuysen 和 Dikkie Scipio 三位创始人领导,这是一个由建筑师、景观设计师、城市规划师、工程师和平面设计师组成的国际团队。
KAAN 建筑事务所的项目超越了传统的规模和类型概念,从家具和室内到城市发展,从零售和办公室到博物馆和健康以及教育建筑。
能触动灵魂的伟大建筑一直都是罕见的。在任何情况下,它们都是独一无二的、诗意的、心灵的产物。
Geo and Environmental Centre
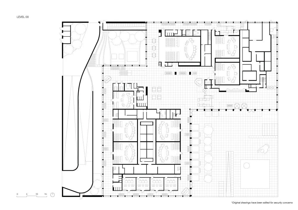
KAAN Architecten 发布了他们在德国的首个建成项目,地质与环境中心。作为国际竞赛的获胜方案,项目被视作以跨学科研究解决环境问题的一个先进设施,尤其是关于水、土壤和大气问题的解决方案。凭借其突出的地理位置,建筑与校园的城市布局相得益彰,继而强调了该中心的科学重要性。
图宾根大学的摩根斯特尔校区位于一座可俯瞰图宾根城和山谷的小丘之上。该校区最初设计于 1960 年代,依据 Harris Kurrle Architekten 设计的最新规划概念,其将以环绕中心广场建设四栋新建筑的方式进行扩张。
本项目,即地质与环境中心,就是本次规划向南扩张的其中一部分,将先前分散的地球科学学院和地下水研究所部门聚集在一起。这一聚合意在刺激大楼内各部门以及中心所在区域内的其他自然科学机构间的信息流通与交换。
该建筑部分嵌入场地的斜坡之中,是一个低矮的细长结构,共计六层。在其 100 米 x 50 米的占地面积内,建筑围合了两个位于不同高度的庭院,以应对场地的倾斜地形。
建筑南侧面向图宾根城开放,有如摩根斯特尔校区的门面;而其北侧立面则与园区广场建立了清晰的空间边界,标明了地质与环境中心的入口。
地质与环境中心以专业的研究与工作空间将公共教学与学习区域完美融合。经由校园广场,来访者便可轻松抵达建筑北部的礼堂和研讨室等便利公共设施。实验室和工作空间面朝东侧,办公区则沿着西侧和南侧进行排列。
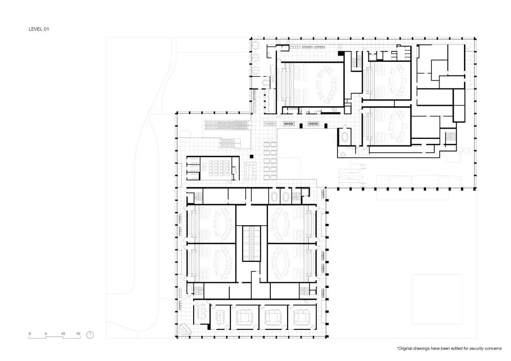
来访者从广场通过开放的北立面,其视线就会被直接引入一个相当大的双层接待大厅。相同且延续的坚固材料还加强了建筑与周围环境的联系,并与温暖的深色胡桃木细节形成鲜明对比。
入口接待大厅作为大楼的会面与互动中心,布满了学生工作区,还可通过玻璃内墙看到教学区的样貌。连接上下层的自支撑独立雕塑楼梯将来访者的视线向上带去,开放式的画廊空间提供了深入建筑物内部的潜在路线。
大厅的一个隐藏特征是当地艺术家 Martin Bruno Schmid 不安分的建筑艺术作品,通过拆分支撑柱的方式,挑战建筑的静止性。一条穿过七米半高柱子的垂直缝隙不光揭示了柱子的内部状态,更挑战了结构承载能力的极限。
实验室和工作空间的设计以平面布局的高效性及其未来灵活度为导向,被置于建筑东侧的两个紧凑区块中。建筑师依据“从粗到细”的原则将其分布于建筑的六个楼层,从最底层的岩石制备车间,直至顶部的洁净室。
从远处望向建筑,地质与环境中心有如一块带着深脊的石头,并露出一个玻璃体。倘若仔细观察,还会发现其立面被包裹在与现有校园建筑特征相匹配的水平环之中。
建筑表面这些看似实心的带子,实则是空心结构,其高度和深度均为 2 米,由预制混凝土元件和格栅所覆盖,以便于通风和维护。这些带子还可提供遮阳与灯光控制的需求,继而使外部遮阳帘变得多余。
这样一来,该中心的专业活动也就被更加清晰地展示而出,于校园内留下了明显的印记,尤其是当中心在夜间亮起时。同时,因建筑外立面带是由连续的无竖框玻璃分割的剪力墙支撑而起,通长且连续不断的观景视野因此也就成为可能。这些混凝土翅片承担了外部承重支撑的功用,从而使内部布局更为灵活。
位于北、西和南侧的办公室和会议室通过内部走廊相连,同时也围合出了两个内部庭院。凭借其细致的石砌外墙与整齐窗户,庭院特征使人想起以前旧办公室所在的图宾根历史中心。这样一来,内部办公室充满熟悉感的空间环境还可在一定程度上弥补缺少外立面的景观视野。
庭院间的垂直轴线将实验室区块与办公室串联,并容纳了日常运营所需的所有功能区域。位于整栋建筑的核心部位,其给地质与环境中心的工作人员提供了一个社交空间,也是天井庭院之间的重要空间定位点。
通过一个僻静且私密的南部庭院可直接看到周围的草坡;而北部庭院则可以俯瞰校园广场的入口大厅,并与开放的公共空间相连通。KAAN Architecten 的联合创始人 Dikkie Scipio 教授这样总结道:“虽然其嵌于地形之间,但地质与环境中心是一座易于访问、可见且以交流为基础的人性化建筑,为人而设计。”
Loenen Pavilion
KAAN Architecten 事务所受荷兰战争坟墓基金会(Oorlogsgravenstichting)委托,在阿珀尔多恩附近的 Loenen 设计一座多功能建筑,以纪念二战期间以及最近的国际冲突中的荷兰受害者。这座建筑与周围的森林和谐地融合在一起,是现存的 Loenen 国家战争公墓和新的国家退伍军人公墓之间的一个层次分明的连接点。
Loenen 国家战争墓地是位于荷兰领土上的两个墓地之一,由景观设计师 Daniel Haspels(1894-1954)在二战后不久设计,反映了该地区的景观。它的枝叶丛生的树木尊重了和平的环境,给失去亲人的人带来了安慰。
KAAN Architecten 选择将树木和建筑结合在一起,让树木决定结构的形式,以实现建筑和景观自然的融合。
展馆长 52 x 19 米,沿着作为场地基础的五轴之一延伸,在纤细的白桦树和松树之间形成。从上往下看,它坐落在两片树林之间形成一条水平的白色线条,两侧是由景观设计师 Karres en Brands 设计的两个森林房间。
为了在两个开放空间之间保留最大数量的树木,展馆尽量保持狭窄,其水平部分采用 Haspels 的哲学,避免了垂直元素的干扰,破坏了自然宁静的氛围。
通过敏感的建筑动作,营造出一种亲切而开放的建筑,宁静的氛围和缺乏突兀感,被树干遮蔽,但视野清晰。从地面延伸到天花板的天然石材覆盖墙的巧妙放置,突出了开放和封闭之间的交替。
一些墙壁上有与墙壁相同的天然石材突出的长凳,面向森林,为游客提供休息和沉思的地方。屋顶位于墙的顶部,不仅仅是一个盒子的覆盖物,而是一个水平的穿孔墙,暴露了树梢和开放的天空。KAAN 筑师娴熟地将视线向内、向外,保持着国家战争公墓中早已弥漫的那种隐约的光和宁静。
展馆内的一切都与纪念和纪念有关。为了使展馆能够保持狭窄,同时各馆之间的功能也能合理地衔接起来,人们尽量避免了这些障碍。
附近的国家退伍军人公墓有一个礼堂,专门用于集会和葬礼服务,通向一个多功能厅,用作展览和信息空间,最后是哀悼区。大型活动和大型典礼,礼堂和展览空间可以合并为一个单一的大空间。
项目旨在取代阿姆斯特丹既有的老法院建筑。这栋引人瞩目且功能实用的法院大楼是在中央政府房地产局的委托下所完成的。新落成的法院内包含了 50 个不同的法庭,有包括 200 名法官在内的 1000 多名职能人员在此工作,预计每年将受理超过 14 万起案件。
新建的阿姆斯特丹法院也是荷兰 11 个法院建筑中最大的一个。该项目是在一个名为“新阿姆斯特丹法院”(NACH)组织的支持下完成的。该组织包括了 Macquarie Capital, ABT, DVP, KAAN Architecten 以及 Heijmans and Facilicom。整个组织跟政府间保持了一种名为政府和社会资本合作(PPP)的管理运营模式。
KAAN Architecten 作为 NACH 组织的原始成员之一,负责了该项目的建筑设计与建造。建筑师希望将法治理念和法律条规通过设计的手法,使其融入到人们的日常生活中。因此,这栋 50 米高的法院大楼采用了朴素且开放的空间语言。
巨大的临街开窗使得内部的场景可以被街道上的行人所看到。而法院周围的前厅空间则给来访者的滞留提供了空间基础,这个新建的法院大楼大约可以在一天内接待 800 到 1000 的客流量。法院的中庭是内部交通流线所需的扶梯空间。
该中庭还靠近内部庭院,从而享受了较好的采光和通风。建筑师希望通过合理的平面设计排布实现一个舒适且实用的建筑设计。
建筑师依据案件审理常见的工作流程,将相应的功能空间整合在了一起,并将这些空间集合与毫无关联的剩余空间独立开来,以实现高效合理的空间组织关系。同时,建筑师在该项目过程中还与建造顾问、防火安全顾问、承包商以及供货商间保持了高度的交流合作关系,以建造一个环境友好且高效节能的法院大楼。
建筑师希望能营造一个安全、舒适且激发灵感的室内空间,并让这些建造材料可以充分体现各自的价值与美感。建筑师还为该项目设计了一个朝南的市民广场,以实现建筑到都市空间的合理过渡。
建筑师选择了与法院内部相同的亮灰色铺装及坐具设计。位于入口处的优雅顶棚还向内延伸,将法院的内外空间串联在了一起。同时,建筑师还采用了低坡道的广场设计语言,以最大程度地减少都市空间、市民广场和法院内部环境间的割裂感。
广场一侧的植被种植,更是给法院的工作人员和来访市民提供了一处休憩之所,并让法院所处街区的其他市民也可以感受到一年四季的气候变换。
在广场巨大水池一旁的是由艺术家 Nicole Eisenman 所制作的名为“爱或慷慨”(Love or Generosity)的室外雕塑。该雕塑高约 5 米,展现了一个穿着登山靴的“门卫”形象,同时,雕塑手中还刻有象征智慧、力量、耐心、进步和勇气的图案符号。此外,该广场上还立有象征社会韧性的小猫头鹰、箭头和橡子等雕塑。
比利时安特卫普皇家美术博物馆
美术馆不仅是安特卫普最后一栋大胆的新古典主义建筑,其艺术品收藏更是横跨七个世纪,从早期尼德兰绘画一直延续到表现主义,囊括手稿、绘画和雕塑等各个艺术门类。政府的文化部门在本次修缮更新和扩建上共计投入约 1 亿欧元。
该美术馆最初由建筑师 Jacob Winders 和 Frans van Dyck 设计建造于 19 世纪,选址在一个 16 世纪的城堡废墟之上,和周边的都市肌理形成了一个交织融合的紧密关系。安特卫普皇家美术博物馆最早作为一家日间美术馆开放于 1890 年,意在给参观者提供一个被艺术品所环绕的内部景观。到了 20 世纪,博物馆在自身的展陈设计和艺术品收藏上又进行了大幅的提升,并对原有的空间流线进行了一定的调整。
等到 2000 年初 KAAN 建筑事务所接手该美术博物馆的改造升级委托时,安特卫普南部地区开始了大规模的公共投资和都市更新项目。建筑师试图将博物馆的增建部分完全地隐藏在既有结构内,以维持博物馆的外观原貌,来彰显该美术博物院的建筑艺术价值。
增建部分与既有结构保持了良好的对话关系,并未对美术博物馆的原有特征产生任何负面影响。建筑师在博物馆的后侧新设计了三个功能空间,包括一个公共入口、中心展览空间、以及行政办公室。
建筑师在 Leopold de Wael 广场一侧,设计一个巨大的博物馆入口楼梯。拾级而上,通过修复后的大型橡木门,呈现在参观者眼前的是多个博物馆设施空间:交互信息区、咖啡厅、中庭、带有咖啡角的书店和一个通往街道层的螺旋楼梯。博物馆的街道层容纳了图书馆、衣帽间和一个二级入口。
通过入口大厅,来访者会到达一个名为 majestic de Keyserzaal 的过渡空间。在此,来访者可以有两条截然不同的参访路径:一条是沿着楼梯直抵修缮后 19 世纪美术博物馆空间的核心层,而另一条则会将来访者径直引向扩建的 21 世纪美术博物馆空间。
修缮后历史空间的展览室围墙以深粉红色、绿色和红色为基调,搭配橡木门、高大立柱和石膏装饰的天花板,共同营造出一种古老而又宏伟的环境氛围。建筑师在空间修缮时仔细研究并参考了美术博物馆最初的用色方案。博物馆一层的巨大开窗,在保证内部采光的同时,还给来访者提供了一个绝佳的室内观景空间。该美术博物馆核心层配备的是宽大的玻璃顶棚,空间内还设有供人休息的舒适沙发。
建筑师还对美术博物馆的藏品仓库进行了重新的位置选择,将其搬迁到了两个主要展厅的下侧。这样一来,一些尺寸过大的艺术作品就可以通过特制的细长垂直轨道被安全而又轻松地迁移到所需的展厅中。
KAAN 建筑事务所旨在给来访者提供一个特殊的美术博物馆参观体验,以从中感受两个时代的空间对话。丰富的流线选择更是保证了参观者内心的惊喜感,使得他们可以淌游在珍奇的艺术品之间。
比利时图书馆和表演艺术学院
该项目的设计灵感来自于托马斯·莫尔 (Thomas More) 广受赞誉的名著“乌托邦”,这本书是由阿尔斯特著名印刷商德克·马滕斯 (Dirk Martens) 首次印刷出版。新建筑已经融入到了城市结构组织中,突出了城市中心不规则的街道和私密的空间,并形成了与它们互动的关系,同时在沿着 Esplanadestraat、Graanmarkt 和 Peperstraat 旁边又新建了三个广场。
这是一栋原来被称为 Pupillenschool 的建筑,建于 1880 年,以前是一所学校,士兵的孩子们在 16 岁前可以在这里接受教育。它现在已经被嵌入到了 KAAN Architecten 建筑事务所的设计方案中,成为了新建筑的基石。无论是室外还是室内,它那富含历史韵味的外观与宽敞的空间完美地融合在了一起,形成了砖砌墙与浅灰色混凝土元素之间的对话。
乌托邦,和这座城市以及它的居民形成了一种密不可分的联系,通过宽大的开口他们可以相互间对望。大楼的入口处位于阅读咖啡馆和礼堂之间的一个小广场上。穿过宽敞的大厅,是一个开放式的,从地面延伸到天花板的室内景观空间,中间的几层厚厚的混凝土楼层就像是悬浮在空中一样。它们的高度不同,每一层都摆放了书架和阅读桌,同时那里还可以看到中庭和原有建筑的砖墙立面。此外,还有一个延伸到天花板的 11.50 米高的书柜,里面摆满了每个奥尔斯特居民捐赠的图书。
混凝土结构似乎是用书架支撑的。实际上书架是通过靠在混凝土盘面上被抬高的,这样地板就可以在没有额外支撑的情况下悬空。像踏板一样,楼梯呈锯齿状向上延伸,在宽大的中庭里给人以雕塑般的感觉。天花板小的几乎已经看不见了。所有的技术设备系统都隐藏在一个金属色网格后面,这个网格还可以柔化强烈的日光,并营造出一种愉快的氛围。
除了底层礼堂外,表演艺术学院位于前两层,在中庭阅览室的两侧。在新建筑内,芭蕾舞厅、排练厅和教学空间都有和房间一样高和宽的落地窗,在这里可以欣赏到城市的景色,并且从城市里也可以瞥见大楼内的一角,同时也可以看到立面的构图。在设计上还使用了和原来同样的表现风格,原来 Pupillenschool 的窗户栏杆被拆掉了,主楼层的窗台明显的降低了。
音响效果设计是 KAAN Architecten 建筑事务所的一个基本设计工具:在图书馆阅读不应被音乐课程和排练所打扰。悬浮的混凝土楼板替换掉了原来的木质地板,门被改造成为了隔音门,双层玻璃窗也能挡住每一个钢琴音符。
这栋建筑大部分的外墙都是新的砖砌结构。在研究了佛兰德城市的主要颜色后,建筑师们选择了一种叫做“阿尔斯特红”的深色砖。为了突出“乌托邦”的双重特性,这些长扁平的砖块(50 x 10 x 4 厘米)以水平方式摆放,以平衡垂直方向的旧学校立面。
“乌托邦”大楼既具有开放性同时也表现出了可持续性。该建筑获得了 BREEAM 的卓越等级评定:所有材料和劳动力都来自当地,施工中使用了低能耗机器设备,安装了太阳能电池板,地热能系统和 LED 照明系统都被整合了到设计中,另外还有雨水回收和再利用系统,从旧建筑中拆下来的 23 万块砖头在其他地方重复使用。
KAAN Architecten 建筑事务所与城市组织结构互动的愿望已经达成:“乌托邦”已经成为了阿尔斯特城市中心的一个坐标点,市民们都希望在他们的日常生活中享受这个新的地标。
客服
消息
收藏
下载
最近



















































































































































































































