查看完整案例


收藏

下载
Empalot 区 MG3 地块 Empalot lot MG3
在图卢兹南部的 Empalot 区,90 个待售住房单元和 20 个社会住房单元安插在两个体量中,形成一栋垂直的“眺望楼”和一栋水平的“草原楼”,两个体量互相交错,浅色的外立面由遮阳构件和宽敞的阳台共同组成。
In the south of Toulouse, in the Empalot district, 90 housing units for sale and 20 social housing units are located in two volumes, a vertical one: «the belvedere», and a horizontal one: «the prairie building», sliding against each other and showing light facades with sun protections and generous balconies.
▼项目概览,overview© Cédric Colin
城市入口 City entrance
项目坐落于加龙河畔,距离图卢兹市中心仅几个地铁站。Empalot 是一个正在更新中的地区,主要由 1950 年代的住宅区组成,拥有宽敞的公共空间。这里靠近市中心,是城市的门户之一。
A few metro stations from the heart of Toulouse, along the Garonne, Empalot is a district of the city being renewed, close to the city center, mainly composed of housing complexes of the 1950s, with generous public spaces. It is one of the city’s gateways.
▼从河对岸看建筑,view over the river© Cédric Colin
▼街道视角,view from the street© Cédric Colin
阳台与阴影 Balconies and shades
MG3 地块位于河流和足球场之间,环境开阔,是城市系统的重要组成部分,赋予项目真正的大都市背景。这栋“景观大楼”由相互交错的垂直体量和水平体量组成,包含 90 个待售住房单元和 20 个社会住房单元,呼应了周边肌理。
With a plot located between the river and a football field, in a wide-open environment, the MG3 lot of Empalot district acts as a leader in the urban composition system and offers a real metropolitan dimension to the project. Composed of a vertical and a horizontal volume sliding against each other and recalling the surrounding volumetrics, this «landscape building» hosts 90 housing units for sale and 20 social housing units.
▼从足球场看建筑,view of the building from the football field© Cédric Colin
▼“晀望楼”,the belvedere © Cédric Colin
▼主立面局部,view of the main facade© Cédric Colin
住宅单元从一室到五室不等,占据了垂直建筑中的十二层和水平建筑中的五层。一层是一个俱乐部会所,内部含有更衣室、一个连接着足球场的公共休息室以及两个专为残疾儿童设置的服务机构。两层的地下室设置了一个私人停车场,入口位于建筑物的背面。
The dwellings, ranging from one-room to five-room, are arranged on 12 floors in the vertical building, and on 5 floors in the horizontal one. On the ground floor are a club house containing the changing rooms and a common room accessible from the football field, and two premises for the “Resilience Occitanie” association dedicated to children with disabilities. Two basement levels also host a private parking reachable from the back side of the building.
▼停车场入口,entrance of the parking © Cédric Colin
▼从停车场看建筑侧立面,view of the facade from the parking lot© Cédric Colin
两栋建筑的交错布局创造出两个大型绿色室外空间,一个是由大型景观廊道遮蔽的主入口大厅,另一个则是位于建筑物后方的楼梯空间。
The sliding layout of the two buildings generates two large green outdoor spaces, one hosting the main entrance hall of the building protected by a large landscaped porch, and the other giving access to the stairwells at the back of the building.
▼室外露台,the terrace© Cédric Colin
▼景观通道,landscaped path© Cédric Colin
朝南的主立面与足球场衔接,因此必须着重考虑如何保证所有公寓的夏季舒适度。建筑在外表皮设置了一个双重系统,使大型金属遮阳构件和沿南立面及西立面展开的 2 米宽的长阳台融为一体,创造出真正的室外空间。
With a south-facing main facade bordering a football field, it was essential to think about how to guarantee summer comfort to all apartments. That is why a double device has been set up, combining large metal sun protections, extending 2 meters wide long balconies all along the South and West facades, and creating real outdoor rooms in addition.
▼建筑入口,the entrance© Cédric Colin
▼入口庭院,courtyard at the entrance© Cédric Colin
▼首层结构,columns at the ground floor© Cédric Colin
最后几层,覆盖整个阳台宽度的遮阳板像凉棚一样保护着居民。设计模拟了树叶的柔和色调,带来阳光明媚的午后被树荫遮蔽的体验。
At the last levels, only a shade covering the entire width of the balconies protects the inhabitants like a pergola. Acting as foliage, these shades have been thought and designed to provide a similar comfort to that offered by the cover of a tree on a sunny afternoon.
▼遮阳系统,sun protection device© Cédric Colin
在北侧,简洁的阳台由顶部遮阳板保护,为最小的住房类型也提供了户外空间。
On the North side, simple balconies, protected by a shade on the last level, also offer an outdoor space to the smallest typologies of housing.
▼北侧立面,the north facade© Cédric Colin
住房 Housing
建筑内部,不同类型住房的观景台组成了一条长阳台,满足了南侧和西侧的防晒需求。“草原楼”的五层采用相同的房屋布局,单元均为交叉或南北朝向,并都与长阳台相接。
Inside, the belvedere hosts large typologies of housing which all benefit from long balconies, and sun protections to the South and West. The prairie building hosts the same layout of housing on its 5 floors, all crossing or double-oriented, and always accompanied by long balconies.
▼阳台上的视角,view on the balconies© Cédric Colin
▼阳台上的隔断,partition wall on the long balcony© Cédric Colin
▼金属遮阳构件保护阳台,large metal sun protections over the balcony© Cédric Colin
▼金属遮阳构件细部,details© Cédric Colin
在顶层,一个巨大的景观和种植露台沿建筑物的整个长边拓展。它面向所有住户开放,提供了一个铺设木制甲板的大型户外空间、日光浴室和一个供儿童使用的浅水池。
On the last level, a huge landscaped and planted terrace takes place along the entire length of the building. Accessible to all the inhabitants of the building, it offers a large outdoor space covered with a wooden deck, with a solarium and a wading pool for children.
▼灯光效果,lighting view© Cédric Colin
▼总平面,site plan© COBE
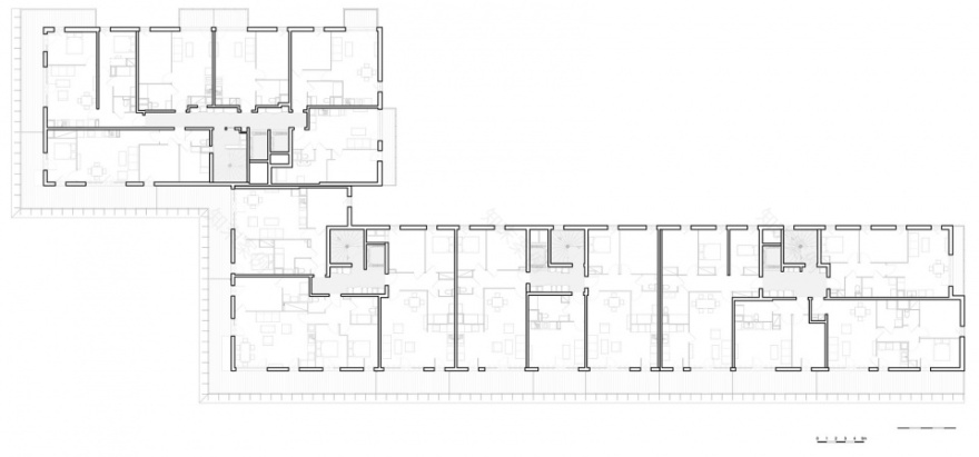
▼3 层平面,Plan R+3
© COBE
▼6 层平面,Plan R+6
© COBE
▼立面图,elevation
© COBE
Client : Bouygues Immobilier Toulouse
Design team : CoBe Architecture et Paysage (architecte mandataire), Girus GE Toulouse (BET fluides), PING (BET VRD), Bureau Veritas (Bureau de Contrôle – SPS), SCBA (Maîtrise d’œuvre d’exécution), 3J Technologies (BET structure), Pier énergie (BET thermique) Polymétrie (Métrés – CCTP), Duo Créativ (décoration, aménagement intérieur)
Program : Construction de 90 logements libres, 20 logements sociaux (Toulouse Habitat), un club house (vestiaires de football et salle commune), 2 locaux pour l’association Résilience Occitanie (association d’aide aux enfants en situation de handicap)
Mission : Maîtrise d’œuvre architecturale
Surface : 7624 m2 SDP, 5396 m2 SHAB
Completion : Mars 2022
Photography credits : Cédric Colin
客服
消息
收藏
下载
最近



























