查看完整案例


收藏

下载
Artem Babayants是来自俄罗斯的年轻设计团队,他们致力于通过现代的设计手法,传递一种舒适,时尚的生活方式。他们的设计更多的关注居住的实质,以及人与空间的互动。
这是他们落地完成的项目,只有69平米的小型公寓,为年轻小两口打造。这是Artem Babayants团队新的尝试,特别是材质与用色方面,在克制与理性的基础上,增加撞色元素,材质方面也尝试皮革与绒质材料,希望营造时尚且具有活力的家。
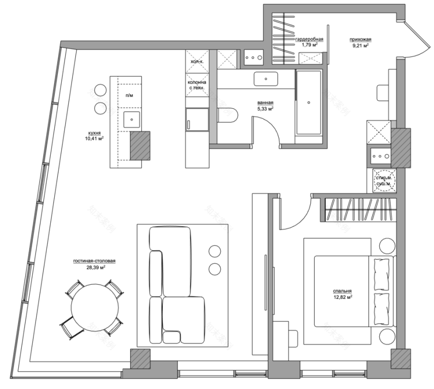
△平面布置图
由于男女主人都喜欢宅在家,喜欢烹饪,设计师将更多的空间,更好的外景给了大厅,并采用客餐厨一体化设计,位于整栋楼的西南角,两面采光是本案天然优势,将自然光毫无保留的带到室内,尽情享受宅在家的乐趣,是设计的初衷。
客 厅
整个家的格调依然为灰色系,雅致而高级,模块式沙发是整个空间的亮点,跳跃的橙色减少灰色带来的沉闷与肃穆感,黑白高低组合的茶几,让起居室更丰富有趣。坐在沙发上,既可以与厨房和餐厅互动,还可以俯瞰整个城市的美景。
灰白搭配的视听柜,错落有致,玻璃推拉门将电视收藏于柜体内部,也保持整个设计的完整性。
用餐区位于整个家的拐角处,坐拥外景,在这里用餐,一定很惬意,心情舒畅。
顶部为白色蜂窝状造型吊顶,地面与餐桌椅为黑色,灯具特意选用黑白相间造型,将顶面与地面做一个视觉的连接和过渡。
厨 房
厨房有一个承重柱,设计师结合柱子设计吧台,深色木纹与白色柜体呼应了客厅的色彩,整个厨房简洁,大气,将收纳设计于无形。
临窗吧台给这个家带来一份情趣与浪漫。在月光皎洁的夜晚,两位年轻人,品着红酒,回忆起恋爱时的点点滴滴,憧憬着美好的未来,这个家的画面感仪式感已展露无遗。
卧 室
深邃而雅致,是这个卧室给人的感受,简洁的设计语言,恰到好处的软装搭配,造型独特的灯饰,都在彰显着屋主人的品位。
卫生间
卫生间不大,白色基调和充分的灯光设计,让空间明亮而宽敞。
方案效果图
客服
消息
收藏
下载
最近















































