查看完整案例


收藏

下载
过去、现在、未来,全都融合成为一个无缝连续体,没有开始也没有结束。在这样的空间相遇,时间静止。
室内面积 /500㎡
空间性质 / 双层大平层
项目进展 / 待开工
合作模式/全案设计、全程托管
项目设计 / 观享际 SKH 室内设计
01.
Hallway
GuanXiangJi SKH Design
玄关
内敛的色彩语言,简约的装饰手法。空间纯粹、安静、不张扬,具有微妙的视觉感知力,体现繁华中回归宁静的意味。
02. Team Room GuanXiangJi SKH Design 会客厅&茶室(画幅偏长请横向观看)
03. Dining Room GuanXiangJi SKH Design 餐厅▽西餐厅
▽中餐厅
(画幅偏长请横向观看)
04.
Leisure Area
GuanXiangJi SKH Design
休闲区
▽棋牌室&茶室
(画幅偏长请横向观看)
05. Hallway GuanXiangJi SKH Design 玄关
06.
Multi-purpose Room
GuanXiangJi SKH Design
多功能室
(画幅偏长请横向观看)
探讨当代行业精英的生活方式
向内居住 与向外社交的平衡
家 承载的多重功能与个人情感的平衡
07.
Master Room
GuanXiangJi SKH Design
主卧套房
(画幅偏长请横向观看)
▽卫生间
08. Guest Room
GuanXiangJi SKH Design
次卧套房
09. Guest Room GuanXiangJi SKH Design 次卧套房▽次卧一
▽次卧二
10. Meeting Room GuanXiangJi SKH Design 会议室
办公、会客、私人会所……高档住宅的多重属性,决定空间的叙事性。有秩序的表达、清晰的逻辑梳理,将有限的空间得到无限拓展。
11.Outdoor Landscape
GuanXiangJi SKH Design
户外景观
感受微风,感受太阳不断升起光线的移动。我们可以坐在这里几小时,很多时候不说一句话。这就是在设计之初,想要展现的人、灵与自然的平衡感。
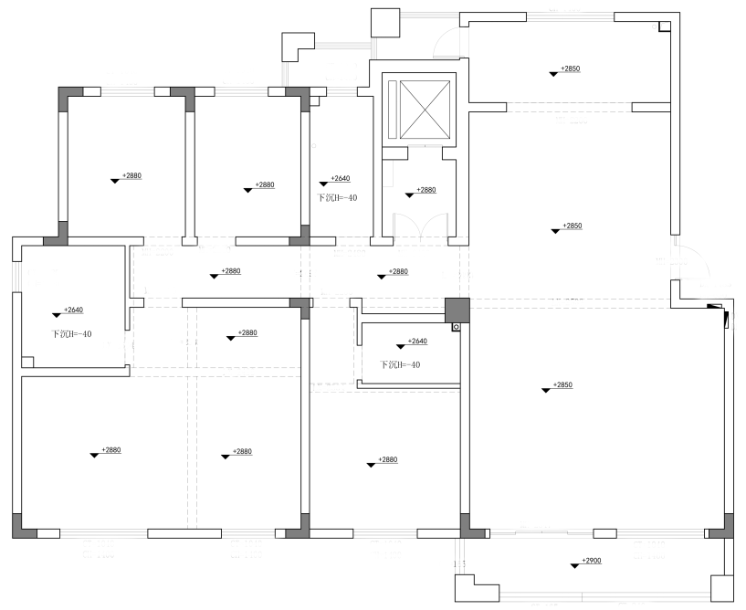
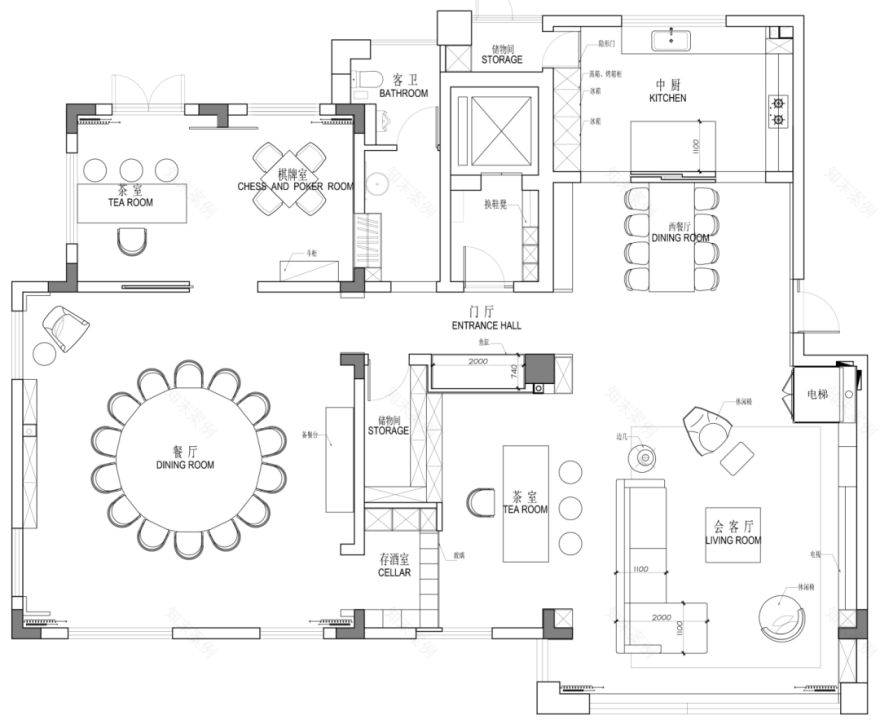
12.Design chart
GuanXiangJi SKH Design
设计图
▽ 原始结构图
一、二层原始结构图
▽ 平面方案图
一层平面图
二层平面图
客服
消息
收藏
下载
最近



























































