查看完整案例


收藏

下载
【项目名称】:龍泰餐厅 Dragon Sawasdee
【项目地址】:中国·南京
【项目面积】:280㎡
【设计机构】:GID国际设计
【创意总监】:Gary 曾建龙
【空间设计】:于贞贞
【深化团队】:王克创、姜万金、邓丽周
【完成时间】:2021.11
【项目摄影】:赵易宏、陈荣坤
【项目视频】:IVY·蔓视觉影像
【创意阐述】
对高端生活方式有追求的人士,必然也怀揣着对美好生活空间的向往。“东方与西方并存、传统与现代共生、时尚与复古俱在”,设计师意在打造个性鲜明的国际化泰餐厅,创造味觉艺术和视觉艺术的双重极致享受。
设计师从泰国的风土人情与殖民文化中汲取灵感,将宫殿、花海、吊床、英伦形态等符号元素,以魔法师的手法巧妙而自然地融合到餐厅空间里,营造出别具一格泰式意境。
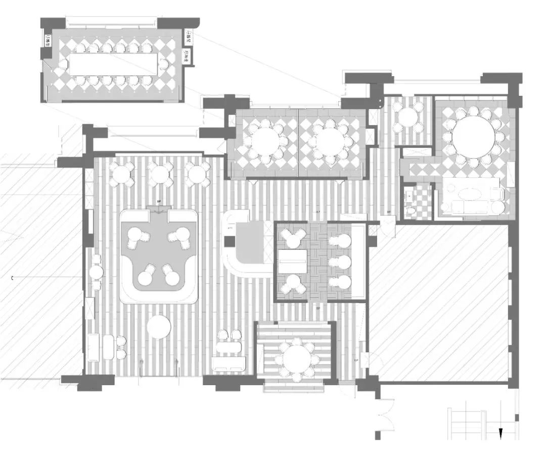
【设计图纸】
平面图
【空间简述】
设计师从泰国的风土人情与殖民文化中汲取灵感,将宫殿、花海、吊床、英伦形态等符号元素,以魔法师的手法巧妙而自然地融合到餐厅空间里,营造出别具一格泰式意境。
龍泰餐厅的整体设计,主要以黑白为空间底色,再将典型的泰式风格色彩淋漓尽致地表现出来。
浓烈的红、黄、绿、蓝,与简约的黑白色相碰撞,形成强烈的视觉冲击力和空间层次感。
曼谷大皇宫汇聚了建筑、绘画、雕刻和装潢艺术的精粹,被称为“泰国艺术大全”。
巍峨的佛塔,红顶的寺院,泰式的屋顶充满了神秘的东方色彩。
设计师将大皇宫的建筑形态高度凝练,从宫殿顶部的线条提取出一个纯粹的符号,化作泰国餐厅的标志性元素。
中岛
设计师鬼斧神工般的创意,在于如何化腐朽为神奇。在这散台区域,原先一个四面围墙的孤岛、没有呼吸的空间,但是设计师使其绝地逢生。
通过顶部不锈钢镜面、墙面黑白线条、生机盎然的绿色座椅以及泰国吊床元素的巧妙使用,这个空间拥有了一种时空转动的立体感,更加氤氲、梦幻、私密,可谓“柳暗花明又一村”。
对高端生活方式有追求的人士,必然也怀揣着对美好生活空间的向往。“东方与西方并存、传统与现代共生、时尚与复古俱在”,设计师意在打造个性鲜明的国际化泰餐厅,创造味觉艺术和视觉艺术的双重极致享受。
泰国菜以酸、甜、香、咸、辣五味的平衡为特点。在这个餐厅里,丰富的味蕾刺激被具象为视觉冲击,空间的浓郁色彩在另一个维度上与鲜活的泰餐食材相互呼应,创造出一种极致的美食空间沉浸式体验。
每个空间在讲述着各自不同的故事。无论是名扬天下的“巴厘”,还是遗世独立的“长滩”,抑或是绿色珍珠“普吉”、原始纯净的“苏梅”,又或者是东南亚最繁华的都市“曼谷”,在这里都能找到它们的位置。
炽热而爽朗的曼谷包厢,如同曼谷这座城市一般包容。
墙面的镜面装饰,如同万花筒一般折射着世间百味。
曼谷街头的川流不息,泰式料理的酸、甜、香、咸、辣,在进入包厢的那一刻都被激发了出来。
在这里走进东南亚异域风情,领略泰国皇宫美学。
对高端生活方式的一贯态度,和对美好生活空间的不懈追求,成就了顶级家具商场里的创意泰餐——龍泰。
时
系删除
点阅读原文→到首页→搜索框→输入关键字→浏览更多优质案例
:
看更多餐饮空间资讯!
---------------------------------
在变好
看
客服
消息
收藏
下载
最近




















































