查看完整案例


收藏

下载
夜景鸟瞰 © 朱润资
园宅邱宅原始平面里客厅与主体分离,内部墙体隔绝,庭院被推挤成狭长绿地,室内外都缺少爽朗通透的感觉。
改造前后平面对比
家宅如园林
如果把家宅设想为园林的扩大,园林是家宅的外延,那么建筑内部的空间格局会呈现出与园林同质的倾向。要达成这样的状态就需摧毁房子原有的空间格局,重铸新的生活场景。
我们把原有功能规整推往两边,留出一片内部“花园”。这个“花园”中,遗留结构柱和加固柱围合形成虚空的中心,它就在原先天井位置,像是一个“光亭”。
二层轴测
夜色下的光之书房 © 朱润资
业主是三口之家,男主人有自己公司,考虑到家庭氛围的营造和他在家庭中的支柱地位,我们决定把它做成一个光之书房,成为家庭在精神意义上的中心。
从光之书房内部感受不同的界面关系 © 朱润资
光之书房看入户门 © 朱润资
光之书房与客厅之间的视觉陪伴 © 朱润资
居游苏州园林里路径和视线常有分离的现象,我们在绕行过程中视线借着墙体和窗洞的交互体验到了丰富的场景和空间层次。
玄关与户内通过小庭院视线互通 © 朱润资
玄关内望的视线穿越了书房 © 朱润资
入户门与窥视孔 © 朱润资
在邱宅里我们也希望能营造出有层次的场景。
光之书房界定出环廊空间 © 朱润资
楼梯,景窗与走道之间的视线联系 © 朱润资
光之书房位于入户水平轴线上,为了保持“亭子”式虚空,书房的西东南三面都做成可开启窗格,当打开时视线就可穿透到花园另一侧,视线路径上呈现出丰富的生活内容和空间层级。当它关闭又会成为不受干扰的阅读空间。
光之书房开启与闭合之间的不同体验 © 朱润资。为了更好的光线品质和层次,在这个入户视线通廊上我们做了精心布局,呈现出明暗交替的节奏,因为窗格启闭变化和材料,光线有了更多的层次。
光之书房与客厅和花园的关系变化 © 朱润资
光之书房的存在,使整个户内“花园”呈现出漫游式的路径,这种体验也经由上下交通联系和房间的分离布局得到了提升。
光之书房与客厅的交流 © 朱润资
光之书房在夜间© 朱润资
空间情绪
通过布局的重新梳理,主要的生活空间都有了南向的采光,呈现出明亮温暖的气质。
小孩房中加入了三原色活跃元素,床靠背处为推拉窗格设计©朱润资
厨房朝西,下午也有温暖的阳光 © 朱润资
通往露台的走道沐浴在阳光中 © 朱润资。
材料的搭配和质感趋于文人传统,服务空间深灰色面砖,房间白色涂料作为空间底色,深沉的胡桃木作为地板和家具的主材。
主卧 © 朱润资
主卧长沙发 © 朱润资
改造后朝南的主卧卫生间明亮温暖 © 朱润资。长虹玻璃的肌理和半透性表达出家庭生活的距离感,塑造出了含蓄氛围。
长虹玻璃过滤了北面花园的绿意,隔绝了邻居的窥视 © 朱润资
实木材质通过楼梯往上延伸 © 朱润资
客厅与书房共享家庭娱乐 © 朱润资
影音室家具 © 朱润资
总图
一层平面(原始)
二层平面(原始)
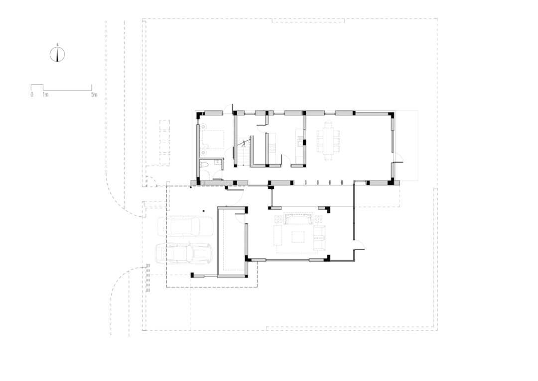
一层平面(改造后)
一层平面(改造后结构示意)
二层平面(改造后)
屋顶阁楼平面
一层轴测
A-A 剖透视
B-B 剖透视
立面 1
立面 2
立面 3
大样-书房书柜旋转窗
大样-卫生间洗手池
大样-踢脚线及窗台
改造前后空间格局的变化,居游状态的形成
二层原有格局被摧毁 © Chaos
一层空间架构(前期设计模型) © Chaos
项目信息
项目名称:园宅
建筑设计:MONOARCHI 度向建筑
项目完成年份:2022
建筑面积:335.7 平方米
项目地址:青浦区沪青平公路 1517 弄, 上海市
主创建筑师:宋小超,王克明
设计团队:兰馨,卢笑,周沁怡,方媞媞
委托方:邱先生
结构设计:上海唯乙建筑设计有限公司
景观设计:陆雨婷
施工方:铭严建筑设计(上海)有限公司
合作方:
门窗:上海日朗门窗有限公司
外墙保温:上海墅恩建筑装饰工程有限公司
暖通设备:上海匡迪机电系统集成有限公司
厨房橱柜:德国柏丽橱柜
木家具:湖州久凯智能家居有限公司
面砖:意大利 IMOLA 陶瓷
摄影师:朱润资、Chaos
客服
消息
收藏
下载
最近















































