查看完整案例


收藏

下载
吴鉴泉
全新的东安市场在经过了百年时间洗礼之后,设计师从形塑到幻聚再到云艺,穿梭在艺术的视角下,连接精神界面与社会理想,推演城市商业与艺术共生的全新愿景。
感谢 All Design Studio
2021 年末,北京王府井大街整体升级,其中「东安市场」作为重要的一部分也迎来了 23 年以来最大规模的设计改造。
整个项目的建筑面积达 1.1 万平方米,楼内集合了 600 多个国际一线的奢侈品牌、独立设计师品牌和高街潮牌。融合中式建筑元素、场景与现代时装,创作出一番穿越时空的感官对话,尝试把传统中式建筑和现代的制作工艺融合,把东安市场百年历史与现在、未来都串联起来,从而「重叠出全新的空间」。
©花生工作室
视频
▲改造后的空间概览
©吴鉴泉
▲历史、现在与未来的重叠
©吴鉴泉
All Design Studio(上海好典空间设计有限公司)成立于 2016 年,主创团队具有建筑,室内,时尚,艺术等背景,坚持“设计不是艺术,它是服务于人的一门学科”的核心价值观。重视原创性充分发挥设计自由度,懂得并擅长为不同的品牌进行定制化的服务,创造叙事的、富有品牌 DNA 的空间形象,严格把控每一道细节至项目落地。
坐落于北京这座历史自然赋予的文化都市,当地文化的设计元素被纳入设计语言思考中,照射出对多样性和人文性的召唤。他们利用了时尚鲜明的色彩和材质来代表「现代」,同时采用了古代建筑般的结构线条来代表「历史」,将二者完善地融合在一起,呈现出如梦幻影般的「老北京形象」。
▲设计分析
©All Design Studio
改造过后的空间分布主题更加清晰,用融合了艺术感和科技感的场景设计加持了空间布局。重新建立出三个主题,每层主题同时达成了某种默契与共生,重塑后的空间结构使得整个商场内的动线更加清晰明确。
▲三层不同主题的空间
©吴鉴泉
1F 形塑东安
「形塑东安」为一层空间主题,这里是设计重点——「中式建筑结构」的首次变幻。团队借鉴了传统中国建筑中天花板和柱子的结构,创造出如青山掩映的诗意钢铁庭院一般。呼之欲出的轻盈质感让古典与现代美学的碰撞出新的诠释写照。整体的色彩取自富含宋代美学的优雅中性色调,与有机材质相结合——比如玻璃材质的运用,都呈现出一种永恒的经典美感。一层的品牌主要以鞋包集合区、眼镜饰品、国际潮奢品牌为主,激发出创造时尚的乐趣与力量。
▲一层空间概览
©吴鉴泉
▲不同的展示空间
©吴鉴泉
▲休息区
©吴鉴泉
2F 幻聚东安
二层主题延续了「中式建筑结构」,在天花上产生的全新的设计语言,几何图型的变换融入更多现代元素,带着工业风的简约,打造新中式视觉感。「幻聚东安」集合了一众潮流品牌店铺,容纳了更多国际年轻设计师品牌,与年经活力的氛围相得益彰。
二层空间
©吴鉴泉
▲卫生间,变化的几何图形
©吴鉴泉
3F 云艺东安
三层好比云端,延续变化了二楼集合形体天花成导角的异形体,仿佛如云朵飘在天花板上。以云的各种形态为线索,打造富有现代艺术气质的空间氛围,低饱和度的宋朝浅蓝色使得置身其中的感受添上了一抹柔和的气韵,极大的包容性艺术感将成为人们触碰艺术与文化的空间。
▲三层空间概览
©吴鉴泉
浅蓝色与柔和的几何形状©吴鉴泉概念化方式探索中国传统文化里的美意与雅致。充满变化性的几何图形设计贯穿整个东安市场,三层空间是几何形态的最后转变,从锋利清晰的方形流转至圆润顺滑的圆弧造型。作为空间设计的主线,中国元素延伸至这层“艺术馆”中,未来与历史的层层叠叠,无界融合在极具吸引力的空间中。
中国元素与圆弧造型的天花©吴鉴泉。站在扶手电梯上,抬头可见轻盈如云艺般的明亮灯光洒落而下。带着现代建筑的简约,金属呈现出材质的自然本色,凹凸的轮廓结合光线,增加了阴影与反射,削弱的了金属质感,以轻巧感带出强烈的体积感,既增加了空间的视觉律动,亦更显通透,仿佛漂浮在空中一般。
▲从扶梯仰望空间
©吴鉴泉
机能性与自然植被元素的出现,象征着全新篇章在零售店铺空间中张力开来,All Design Studio 构建起充满科技感与未来感的区域——潮鞋区与羽绒区、国潮区。
▲仿佛漂浮在空中的空间
©吴鉴泉
承载百年历史,共赴一曲时空交错的协奏。
此次东安市场的改造,All Design Studio 通过多层次的空间、色彩与结构的层层递进,让过去、现在以及未来三者同时出现在同个空间当中。在新的空间美学当中与全新现代审美无界融入、在地文化以及古典情怀,不仅让东安市场成为了一个可塑性极强的艺术空间,更是营造出传统零售空间一种全新的有机运作方式。
▲细部
©吴鉴泉
全新的东安市场在经过了百年时间洗礼之后,设计师从形塑到幻聚再到云艺,穿梭在艺术的视角下,连接精神界面与社会理想,推演城市商业与艺术共生的全新愿景。
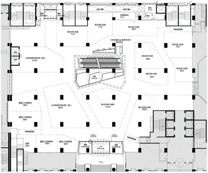
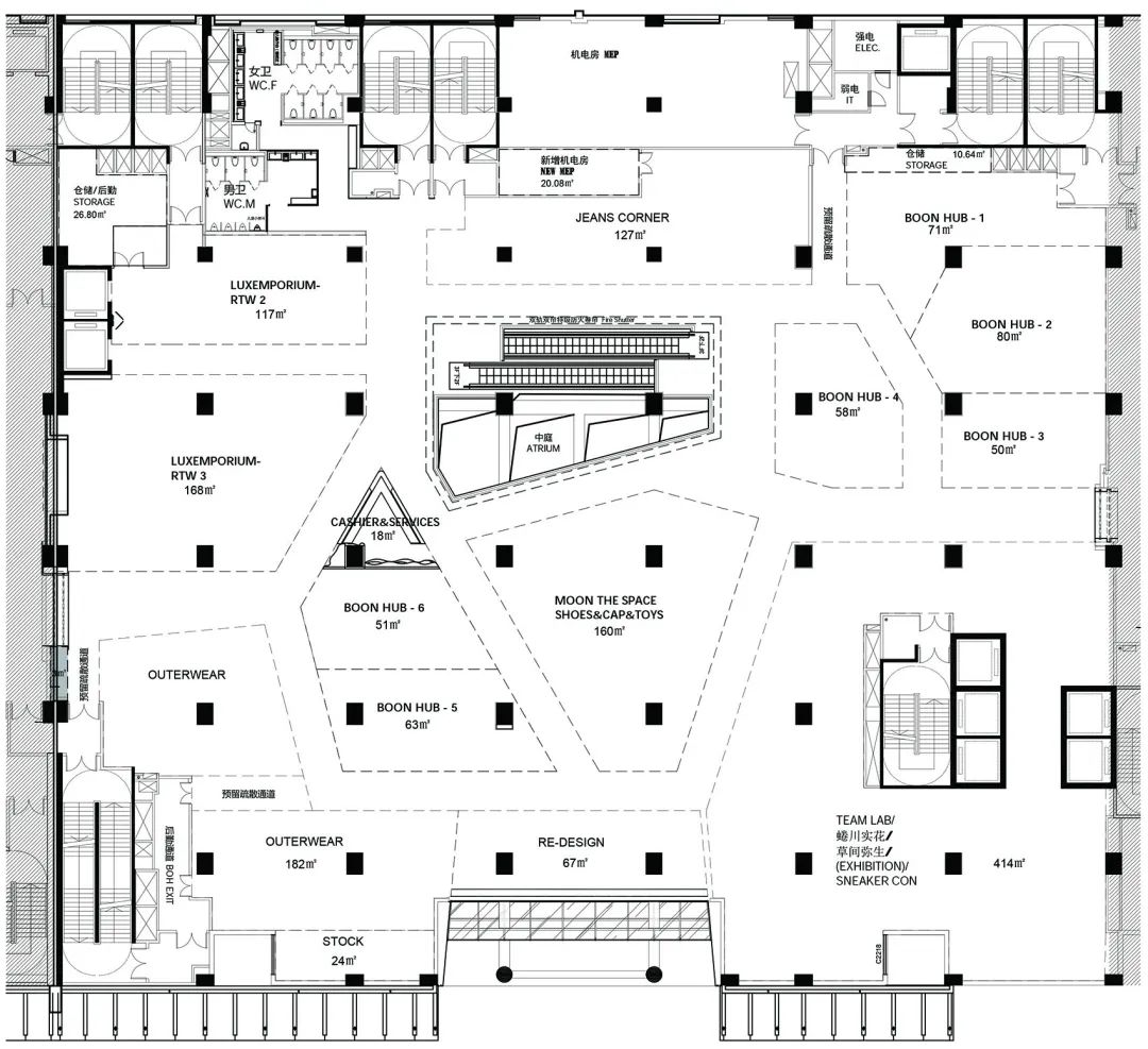
项目图纸
▲一层平面图
©All Design Studio
▲二层平面图
©All Design Studio
▲三层平面图
©All Design Studio
项目名称:东安睿锦
业主:北京王府井百货(集团)股份有限公司东安市场睿锦尚品国际贸易(上海)有限公司
完成年份:2021 年 11 月
建筑面积:9872㎡
项目地址:北京市王府井大街 138 号
设计主创:梁春亮 Gnial Liang,李亢骋 Fred Li,陈宏威 Wei Chen
设计师:张毅毅,周钊吉,段静,李涛,单灏,孙倩荣,黄子越
效果图:Visual Wang Studio
公共区域摄影师: 吴鉴泉
店铺摄影师:Chao fan Photography|康超凡,Studio Ten|谭啸
视频:花生工作室
施工方:上海普宏建设工程有限公司
客服
消息
收藏
下载
最近




























