查看完整案例


收藏

下载
DFDS 全新的创新总部位于哥本哈根北港的码头旁,由 PLH Arkitekter 事务所设计建造,并以高效的绿色节能策略获得了 DGNB 黄金认证。业主是全球著名的航运巨头,新总部的落成不仅为 DFDS 的日常工作与企业活动提供了支持,同时也因其新建的咖啡厅激活了当地社区。
Employees have now boarded DFDS’ new, innovative headquarters in Copenhagen’s Northern Harbor. Placed alongside the quay, PLH Arkitekter has customized a DGNB Gold-certified building loaded with green solutions. The shipping giant’s new base supports activity-focused work and provides the area with a new café.
▼项目与周边环境夜景概览,night view of the project and surrounding environment
笼罩在清晨的薄雾中,DFDS 总部的轮廓仿佛与 DFDS 标志性的奥斯陆渡轮如出一撤。然而,随着光线的变化,一幢细长而颇具特色的建筑逐渐出现在渡轮附近的码头旁。细长的体量、起伏的动态外观,以及大面积的玻璃使总部从周围的环境中脱颖而出,不仅彰显出强大的凝聚力,同时也以谦虚的姿态回应了海洋环境。
Based on the foggy morning silhouettes, it might look as though DFDS’ iconic Oslo ferry has been twinned. But as the sun’s rays emerge, a slender and characteristic building appears alongside the ferry’s neighboring quay. With its elongated shape, undulating movements and large glass sections, DFDS’ new headquarters stand out in respectful cohesion with its maritime surroundings.
▼夜景鸟瞰,aerial night view
从建筑到室内,设计的每一个环节都展现出雄心勃勃的绿色目标,这使得项目成功获得了丹麦绿色建筑委员会颁发的 DGNB 黄金认证。丹麦 DGNB 是欧洲公认的认证系统之一,该系统适用于丹麦的条件,为量化建筑的可持续性提供了可靠的衡量标准,可以说是欧洲最先进的可持续发展评价标准之一。
In both design as well as interior, every measure has been taken to achieve ambitious green goals, which have resulted in a gold DGNB certification from Green Building Council Denmark. DGNB Denmark is a European certification system, adapted for Danish conditions, to make sustainability in buildings measurable. It is the most advanced sustainable evaluation standard in Europe.
▼建筑如同停泊在码头的巨轮,the buildingis like a ship at anchor
纤细的混凝土结构与轻盈的立面外观是建筑最为引人注目的特征,这种建筑结构不仅有助于减少二氧化碳排放,同时能够降低建筑的总体能耗。室内地板和地毯也经过了特别挑选,以便可以循环利用。
Among the building’s defining aspects are the slim concrete construction and light-weight facade, which have helped reduce CO2 emissions. Energy consumption has also been reduced, and floors and carpets have also been specially selected so as to allow for recycling.
▼细长通透的建筑体量,slender and transparent building volume
坚实的海上根基 With firm maritime roots 对于 PLH Arkitekter 来说,总部高达 15500 平方米建筑面积的设计核心在于针对性地满足 DFDS 的需求。Søren Mølbak 解释说:“可以说,我们抛弃了传统的办公建筑模式,并基于 DFDS 的海事标识设计了一座专属于该公司的总部建筑。设计灵感来自于轮船的结构,停车场位于底部,其上为一系列办公楼层,公共区域,如食堂、礼堂和会议室等则位于建筑的最顶部。因此,从下往上穿越该建筑的过程堪比一段不断通向新的、令人兴奋的目的地的愉快旅程。”▼剖面示意图,section diagram
It has been crucial for PLH Arkitekter to design the headquarters’ approximately 15,500 square meters so that it specifically meets DFDS’ wants and needs, Søren Mølbak explains: “We have, so to speak, thrown the traditional approach to office construction overboard and designed a building based on DFDS’ maritime identity. With inspiration taken from a ship’s structure, we have placed parking at the bottom, followed by offices on succeeding floors, and finally common areas such as the canteen, auditorium and meeting rooms at the top. Thus, the journey up through the building constantly leads to new, exciting destinations.”
▼日景,day view
▼由街道看建筑,viewing the building from the street
公共区域和办公空间都经过精心的设计,旨在最大限度地利用周边的独特环境。透过巨大的隔音窗,员工和游客可以眺望到港口里进进出出的 DFDS 奥斯陆轮渡,而在两处屋顶露台上,人们则可以直接地感受到新鲜的海洋气息,并欣赏到 Øresund 的壮丽海景。
Common areas and office spaces are all carefully located to get the most out of the unique surroundings. Through large soundproof windows, employees and visitors can watch DFDS’ Oslo ferry as it sails in and out, while Øresund’s fresh ocean air and breathtaking views can be enjoyed from the two roof terraces.
▼露台,terrace
定义未来工作环境 Sets the course for the working environment of the future
建筑设计,空间规划,外观与整体氛围的设计全部都由 PLH Arkitekter 事务所完成,设计理念旨在为 DFDS 的员工们提供积极且具有高度适应性的工作环境。指定办公地点和分配的办公桌已经成为过去式。相反,在本项目中,人们看到的将是一个围绕着自由工位与不同功能区域组织起来的动态工作环境,员工们能够根据工作内容与自身需求灵活选择。
Architecture, space planning, look & feel – everything has been done by PLH Arkitekter to support DFDS’ vision of an active and adaptable work environment. Designated areas with allocated desks is a thing of the past. Instead, a dynamic work environment has been built up around free seating and differently furnished zones that can be selected and deselected depending on the work tasks.
▼接待大厅,reception hall
▼中庭,atrium
▼楼梯,staircase
▼中庭周围的走廊与休闲空间,hallway and recreational space around the atrium
▼公共休闲区/非正式洽谈区,public leisure area/informal negotiation area
对功能性和灵活性的关注也体现在建筑中最大的房间之一——礼堂中。“我们没有采用带有一排排座椅的传统礼堂模式,而是以该场所应该给用户带来的体验作为起点,并围绕这一点展开布局。灵活开放的空间规划为礼堂赋予了多种用途,例如在上午用于举办各种私人活动,而在下午则变身为员工们的瑜伽或羽毛球馆。通过这种方式,新总部为企业、客户和员工都创造了附加价值。”PLH Arkitekter 创意总监 Bine Soelberg 说道。
The general focus on functionality and flexibility is also reflected in one of the building’s largest rooms: “Instead of a classic auditorium with rows of chairs, we have used the experiences that the place should give the users as a starting point and developed it around this. The open and flexible areas make it possible to host various guest events in the morning, while the room can be used by the staff for yoga or badminton in the afternoon. In this way, added value is created for both the business, the customers and the employees,” says Bine Soelberg, Creative Director at PLH Arkitekter.
▼办公楼层,office floor
▼灵活开放的办公区,open and flexible working area
▼办公配套休闲区,office supporting leisure area
从“船头”到“船尾”,PLH 的室内设计团队以高品质的设计确保了总部能够彰显出 DFDS 航运巨头的身份。这一点是通过清晰且极具代表性的 CVI(企业视觉标识)色彩实现的,建筑元素也同样呼应了这种色彩主题,从地毯和咖啡区域就可见一斑。色彩精致的瓷砖如同海浪一般反射着日光,这些瓷砖在不同区域与不同纹理的木材结合在一起,为自然材料中加入了一丝轻盈的斯堪的纳维亚色调。
From bow to stern, PLH’s interior design team has also made sure that the HQ reflects the DFDS identity. This has been done by working with the colors from the company’s CVI (Corporate Visual Identity) and transferring them to the building’s basic components such as carpets and café areas. Tiles in delicate hues reflect daylight just like ocean waves and natural materials are added in light, Scandinavian tones. In some places these are combined with patterns and different types of wood.
▼会议室,meeting room
开放友好的整体氛围
Guests are welcome on board
受益于新总部大楼的远不仅仅是 DFDS 的员工。对于航运公司来说,新总部能够为社区做出积极贡献是十分重要的。建筑外观上大面积的玻璃幕墙因此而来,通透的立面将建筑向周围环境开放,同时,底层的咖啡馆则以热情的姿态邀请着往来的游客进入 DFDS 总部。此外,新的社区公共空间有助于创造和谐的生活环境,并通过丰富的海洋植物增加当地生物多样性。
It is not only DFDS’ employees who benefit from the new building. It has been important for the shipping company that the headquarters serve as a positive contribution to the neighborhood. This is why PLH has given the facade large glass sections that open up onto the surrounding area and invites outsiders inside the building with a café on the ground floor that is open to locals and tourists alike. Furthermore, a new public space helps to create a living environment with maritime plants that increase local bio-diversity.
▼公共咖啡厅,public cafe
▼大面积的玻璃带来广阔景观视野,large areas of glazing provide expansive views of the landscape
▼靠窗座位,seating area along the facade
▼底层平面图,ground floor plan
▼一层停车场平面图,deck p1 plan
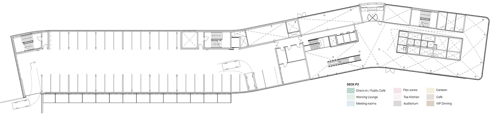
▼二层停车场平面图,deck p2 plan
▼三层平面图,deck 03 plan
▼四层平面图,deck 04 plan
▼五层平面图,deck 05 plan
▼六层平面图,deck 06 plan
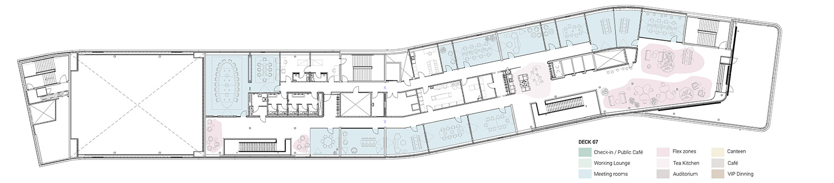
▼七层平面图,deck 07 plan
Building design: Søren Mølbak
CEO and Partner, Architect MAA
sm@plh.dk
T: +45 2720 0591
Interior design: Bine Soelberg
Creative Director – Interiors, Associate, Spatial Designer
bso@plh.dk
T: +45 2620 8183
The new HQ has been realized in collaboration with:
Owner: PensionDanmark
Tenant: DFDS
Turnkey contractor: NCC Denmark
Client advisor: Sweco
Advisor to tenant: NIRAS
Selection of loose furniture and graphics: RITA arch
客服
消息
收藏
下载
最近


































