查看完整案例


收藏

下载

翻译
Architects:Ashley Halliday
Area :6600 m²
Year :2018
Photographs :Sam Noonan
Acoustic Engineering :Resonate
Builders :Kennett Builders
Landscape :Aspect Studios
Services Engineering :Lucid Consulting
Project Team : Ashley Halliday, Jane DuBois, Rupert Lindon, Todd Oliver, Kate Colligan
Structural And Civil Engineering : PT Design
City : Roseworthy
Country : Australia
The Australian Grain Technologies (AGT) Southern Crop Breeding Centre is a specialist primary industry research facility. It is one of the largest, most advanced, and well-equipped crop breeding centers in the world. A hotbed of technology, talent innovation, and scientific breakthroughs AGT's dedicated team use new mechanical solutions, robotics, computer science, GPS, tissue culture, and the latest biological theory on a daily basis. Excited by the process of seeing scientific concepts transformed into real solutions, the AGT Centre is more than a landmark, image, or icon, it is the product of dialogue between scientists, farmers, business people, and the regional community.
The Architectural response is something different, innovative, and unexpected. Likened to a merger between a cellar door, rural head office, and research laboratory. The company’s unique teamwork model, its rural workplace culture, and the desire for a relaxed yet professional work environment created opportunities for architectural moments of discovery, surprise, joy, and tranquility - creating an attractive workplace and a memorable place for staff and clients to conduct their business.
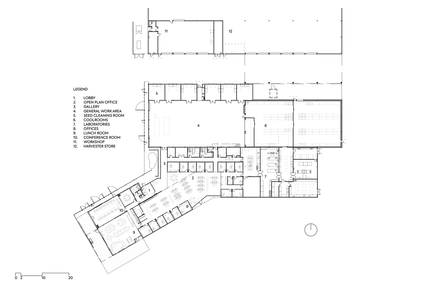
The architectural significance of the project is defined by the resolution and reduction of the highly complicated spatial program into a simple composition of form, space, and order that maintains a high level of integrity. The complicated spatial program includes 6600m2 of co-joined administrative and specialized work facilities including a dough rheology laboratory, temperature-controlled robotic seed storage carousel towers, cool storage facilities, workshop, harvester shedding, greenhouses, and a controlled environment research facility.
Single-level facilities are clustered around a central core containing a reception point, general work, and administrative and tea room spaces, creating a practical and highly efficient functional layout and circulation pattern. Cranking the main building form around the center’s key circulation node defines a highly legible and welcoming public reception and gallery (education) space. A patterned copper-colored perforated operable screen wall (inspired by the pattern of harvesters in wheat fields) veils the north and north-western aspects of the main building from harsh solar conditions, significantly improving the building's energy performance as well as preserving sightlines and vistas through the interior to the sites rural setting.
The form, scale, and materiality of each building were influenced in equal measures by the opportunity to make natural light and ventilation ubiquitous and by the requirement to make each space as practical and efficient as possible. Open space flows freely through the interior spaces following well-defined circulation patterns. A practical, efficient and professional ambiance is created through an open plan layout, legible wayfinding, an abundance of natural lighting and ventilation, and an uncomplicated materials palette.
▼项目更多图片
客服
消息
收藏
下载
最近

































