查看完整案例


收藏

下载
金华之光文化广场位于金华核心区城市发展轴线的重要区域—多湖片区内。整体建筑组群包括城市展示馆,市民活动中心,青少年活动中心和主题科技馆等四大文化场馆及一系列相关的辅助城市功能。项目建成后将成为金华市民的会客厅、文化娱乐的目的地以及这座城市的新地标。
Jinhua Science and Culture Complex is situated in Duohu CBD, which is the important area on the central axis line of the development in Jinhua City. The complex consists of the City Exhibition Hall, the Citizens Activity Centre, Youth Activity Centre and Science and Technology Museum as the main four functional zones, with other auxiliary functional zones for the city. It will be the new landmark for Jinhua City, as well as a reception room and entertainment destination for the citizens.
▼鸟瞰燕尾洲与三江交汇处,An aerial view of the site where three rivers meet with Yanweizhou
▼鸟瞰建筑整体形态,Aerial view of the overall shape of the building
整体建筑方案设计以环境和城市为理性的起点,通过对现有城市设计及“智慧之树”理念的尊重和延续,运用理性的柱网和方正的轮廓去构建高效通用的建筑组群体块——“智慧果实”。体块的转动、变形和错动更好地实现了建筑与城市的相互渗透和空间共享,增加了体块间的互动,并呈现张力。
▼设计过程,Design process
The schematic design started rationally with the city and environment. With the respect to the existing urban design structure, grids and blocks are used to construct an outline to continue the branches of the “Tree of Wisdom” efficiently. The blocks sit along the tree are like “fruits from wisdom”. The rotation, distortion and misalign immerse the buildings into the city space, and also create interaction and tension between the blocks.
▼建筑体块之间的互动和张力,
Interaction and tension between the building blocks
建筑组群与现有的婺剧院形成和谐统一的整体。建筑形态强化了婺剧院的入口轴线,也与基地内部树状的交通体系呼应融合。
The shape of the buildings fits comfortably with the tree-structured traffic network on the site, also highlights the entrance axis of the neighboring Wu-Opera Theater.
▼从城市界面看向建筑,View from the urban interface to the building
▼建筑南立面,South facade
设计赋予建筑一个“城市甲板”,以成为联系“多馆合一”的公共功能基座,并包裹住一条内部车行通道以应对多湖大道的交通压力。通过台阶和坡道使甲板成为广场空间的延续,在鼓励人们活动的同时,也承载各种展览,室外活动,独立入口等无限主题活动的可能,就像一座巨大的城市会客厅。
▼“城市甲板”分析,Analysis of the “Urban Deck”
A platform (as “city deck”) integrates the four blocks and form a shared functional base for the main zones. It also contains a public traffic lane within to mitigate the heavy traffic in Duohu CBD. The stairs and ramps around the deck is an extension of the plaza and the park. The deck connects the individual entrances of buildings. It doesn’t only encourage people to walk up, but also take the responsibility to hold exhibitions and various outdoor activities. Therefore, the “Urban Deck” is a huge reception space for the city.
▼建筑与甲板下的车行通道
Buildings and the public traffic lane under the platform
▼城市展示馆,City Exhibition Hall
▼城市展示馆的“城市甲板”,“Urban Deck” of the City Exhibition Hall
▼从北侧甲板上回望场馆,体块扭转交错,View of the buildings from the north deck, the building blocks are twisted and interlaced
设计以地域文化和人文情怀为脉络,在金华传统文化中寻找“建筑文化之光”,四座场馆的外立面截取以东阳为代表的金华竹编工艺作为立面表皮设计元素,依据各馆的不同功能属性,通过竹编的变化和统一,打造顺应每一个空间采光、通风及空间需求的不同虚实、疏密的立面表皮,编织出一组“高度融合,合而不同”,富有标志性的文化建筑表情。
▼以竹编的变化与统一为起点,依据各馆的功能属性,打造出不同的表皮,Starting with the variation and unity of bamboo weaving, different skins are created according to the functional properties of each building
▼金华山水,Jinhua landscape
In the belief of vernacular spirit, inspiration is searched among the traditional culture in Jinhua. The traditional bamboo weaving technique from Dongyang was reinterpreted and used as a design motif to create façades that are alike but distinct for four boxes. The density of the “weaving” was adjusted according to the lighting, ventilation needs of different programs in different boxes. With different density and repetition of the pattern, it makes the complex a unified whole with each facade recognizable.
▼高度融合,合而不同的建筑立面,A unified whole with each facade recognizable
▼不同虚实、疏密的立面表皮,Facade skins with different density and repetition of the pattern
▼主题科技馆立面,Science and Technology Museum facade
▼市民活动中心,Citizen Activity Center facade
内部空间设计延续金华竹编,浦江剪纸的理念,参数化处理使界面丰富多变,色彩鲜活,与光影交织融合。
建筑室内空间被赋予“艺术之树”的理念,经由室外的“智慧之树”的蔓延,串接起室内的诸多公共空间,从而成为一个立体化的室内艺术主题空间。
▼合理的表皮与良好的室内空间处理,Reasonable skin with good interior space treatment
▼浦江剪纸,Pujiang paper-cut
The interior space is a combination of traditional design motifs and modern parameterization method, creating a colorful interface that dances with the light.
The interior space is given the idea of “Tree of Art”. Growing from the exterior “Tree of Wisdom”, it connects the public spaces. As a result, a multi-story art interior is formed.
▼甲板包裹之下的团队入口,Group visitors entrance lobby under deck package
▼科技馆大厅,Science and Technology Museum Lobby
▼市民活动中心大厅-墙面参数化处理体现金华山水“水通南国三千里,气压江城十四州”的气势,Citizen Activity Center Lobby –The parameterized treatment of the wall is a contemporary creation to celebrate the vastness and magnificence of the landscape of Jinhua
▼青少年活动中心室内,Interior of Youth Activity Centre
▼金华竹编理念的室内外呼应,The indoor and outdoor echo of the weaving technique of bamboo concept
▼洋溢剪纸趣味的多功能厅,The multifunctional hall was created with a paper-cutting motif
相信金华科技文化中心作为一个充满活力的生命体,将以她活泼、睿智、丰富多元的文化氛围吸引人们、感染人们、打动人们,成为金华市精彩的城市文化灯塔。
As an organic system, Jinhua Science and Culture Complex would attract, infect and touch people with the vigor, wisdom and richness in its cultural atmosphere, becoming the cultural icon of Jinhua City.
▼夜幕下的建筑群,The complex at night
▼夜色下的市民活动中心,Citizen Activity Center at Night
▼夜色下的青少年活动中心,Youth Activity Centre at Night
▼轴测图,Axonometric drawing
▼总平面,Site plan
▼一层平面,1F plan
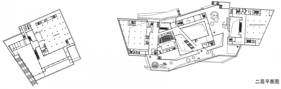
▼二层平面,2F plan
▼三层平面,3F plan
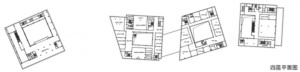
▼四层平面,4F plan
▼五层平面,5F plan
▼屋顶层平面,Roof plan
▼立面图,Elevations
▼剖面图 1,Section 1
▼剖面图 2,Section 2
项目名称:金华之光文化广场
设计方:上海秉仁建筑师事务所(普通合伙)+浙江省建筑设计研究院
公司网站:
项目设计 & 完成年份:2015-2020 年
顾问总建筑师:项秉仁
主创建筑师:马庆禕
建筑方案及初步设计(建筑)团队—上海秉仁:颜莺、肖俊瑰、杨远、赵建霞、黄立妙、章墨、韩瑨玚
初步设计及施工图设计团队—浙江省院:沈米钢、祝文畏、邵磊、黄山农、熊红、宁建洪、胡泓波、申屠剑君、岳燕玲、方成杰、刘勇、任晓虎、胡晓琼、魏金辉、周宇、吴军、欧年进
室内方案团队—上海秉仁:滕露莹、黄立妙、黄紫璇、邵帅、徐荣耀、李江、赵波
室内设计团队—浙江亚厦:苏建鑫、马少红、张函、谢霞芳、徐宇娟、宋晔、吴国玄、唐倩倩
项目地址:浙江省金华市燕尾洲路与宾虹东路交叉路口
建筑面积:81,480 平方米
摄影版权:建筑译者姚力、存在建筑
景观设计:浙江农林大学园林设计院有限公司
泛光设计:浙江永麒照明工程有限公司
幕墙设计:浙江大学建筑设计研究院有限公司-幕墙分院
室内设计:浙江亚厦装饰有限公司
室内照明设计:尤尼可照明设计(北京)有限公司
声学设计:南京曼式声学
客户:金华市多湖中央商务区建设投资有限公司
Project name: Jinhua Light Cultural Plaza
Design: DDB Architects Shanghai+Zhejiang Province Institute of Architectural Design and Research”
Website:,,
Design year & Completion Year: 2015-2020
Consultant Chief Architect: Bingren Xiang
Leader Designer: Qingyi Ma
Schematic Design and Design Development (Architecture) Team – DDB: Ying Yan, Jungui Xiao, Yuan Yang, Jianxia Zhao, Limiao Huang, Mo Zhang, Jinyang Han
Design Development and Construction Design Team – ZIAD:Migang Shen, Wenwei Zhu, Lei Shao, Shannong Huang, Hong Xiong, Jianhong Ning, Hongbo Hu, Jianjun Shentu, Yanling Yue, Chengjie Fang, Yong Liu, Xiaohu Ren, Xiaoqiong Hu, Jinhui Wei, Yu Zhou, Jun Wu, Nianjin Ou
Interior Schematic Design Team – DDB: Luying Teng, Limiao Huang, Zixuan Huang, Shuai Shao, Rongyao Xu, Jiang Li, Bo Zhao
Interior Design Development Team – Yasha: Jianxin Su, Shaohong Ma, Han Zhang, Xiafang Xie, Yujuan Xu, Ye Song, Guoxuan Wu, Qianqian Tang
Project location: Intersection of Yanweizhou Road and Binhong East Road, Jinhua, Zhejiang
Gross Built Area: 81,480㎡
Photo credits: Li Yao, Arch-Exist
Curtain Wall Design: THE ARCHITECTURAL DESIGN & RESEARCH INSTITUTE OF ZHEJIANG UNIVERSITY Co., Ltd. (Curtain Wall Construction)
Landscape Design: THE ARCHITECTURAL DESIGN & RESEARCH INSTITUTE OF ZHEJIANG A&F UNIVERSITY Co., Ltd.
Floodlight Design: ZHEJIANG YOKELIGHT Co., Ltd.
Interior Design: ZHEJIANG YASHA DECORATION Co., Ltd.
Interior Lighting Design: BEIJING YOUNIKE LIGHTING DESIGN Co., Ltd.
Acoustic Design: NANJING MANSE ACOUSTIC DEISIGN Co., Ltd.
Clients: Duohu Commercial Area Administration
客服
消息
收藏
下载
最近











































