查看完整案例


收藏

下载
O’Sullivan Skoufoglou Architects是一家总部位于伦敦的建筑设计事务所,由Jody O’sullivan和Amalia Skoufoglou于2016年成立,他们都有着15年的丰富设计经验。
该工作室喜欢各种有挑战性的项目,不受限项目的规模、建筑类型以及地理位置。工作室深入理解客户的需求和意图通过丰富的想象力去解决这些建筑方案。这样的工作方法是团队写作的结果,需要与同事密切配合、与施工团队研讨更好的解决方案,包括建筑的选材和施工工艺做法。
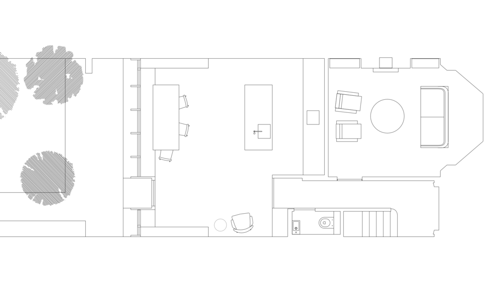
Kensington Place
这座建于19世纪中叶的维多利亚式的错层住宅,其改造的目标,是制定一个系统、可行的的修复方案。通过将现有的玻璃采光房和空间较低的厨房空间整合到开放的居住空间中,是整个建筑有机斜街起来使得内部的功能整合起来,使建筑后方的庭院得以利用。
这个家庭自 1970 年代以来一直住在这里,现在有子女已经长大,为了满足现在的使用需求,他们决定开展这项改造工程,以满足他们日益变化的需求。
新的建筑后墙预留一个大的孔洞,最大限度的让自然光线进入空间,并加强与亲密花园的对话。建筑外观的材料使用红色斑岩和定制的iroko移动木门,建筑师经过仔细的考量和对其建筑周边环境的平衡,最后结合室内织物的色调选定这样的材质,旨在统一建筑的内外关系。
厨房区域的金属铰链做的开启窗户,可以在烹饪过程中快速循环室内的空气。
新预留的天窗保证了室内足够的采光,同时随着光影的变化,通过天窗折射到室内的光可以渗透到空间的其他区域,增加空间内部的光影变化。
顺着楼梯到达建筑的上层区域,这个建筑的上层被设定为卧室和盥洗区域,周围的环境一览无余,同时保证了私密性。
这个带露台的建筑位于伦敦南部,是一座建于1980年的三层红砖住宅,它将车库空间融入到整体规划中,新厨房位于建筑中心位置,生活起居空间面向花园,餐厅面向街道。
客户的希望在新建的楼层建立一个不间断的连接的空间,这样的话起居空间将作为建筑前方绿色景观和建筑后面的自然花园之间的枢纽。按照客户的需求,建筑师扩大窗户的窗台,增加厨房与室外环境的互动性,同时也引入更多的自然光。
一层空间的的连接是由建筑结构的解决方案决定的,暴露的灰桁梁贯穿整个空间,较短的垂直梁在关键位置与其相交。
虽然这个梁演变的地台是支撑上面楼层的木结构框架,但是室内装饰的布局也使它也成为日常生活的关键,提示空间之间的入口、活动的隔断、以及室内家具的摆放位置。
新的砖砌露台与现有的砖砌建筑相匹配,既是房屋的基础,也是花园内部和地面之间的过渡。
斯坦福RÖ Skin 皮肤护理中心
这家皮肤护理中心坐落在历史悠久的斯坦福德镇,年轻的管理团队希望这个改造的空间能够和周围古老的建筑相融,让改造的建筑空间不至于那么格格不入。
建筑师将内部空间被划分为2个区域,面向街道为商品展示区,私密的护理室位于古老中世纪街区的深处,整个外观的巨大的橱窗展示了内部对称的布局。
产品单元格组成的展示架形成空间的屏风。同时为中央的水池提供背景,这个概念源于传统的药剂师工作习惯的场景。
展示柜、隔断选用编制材质的藤网,既保持了家具、隔断的透光度。光线的变化是这些家具生产视觉上的变化。这样的理念也呼应了中世纪生产的著名斯坦福德羊毛网布Haberget。
Dewsbury Road
Dollis Hill住宅后方的扩建部分为厨房和餐厅,改造后的空间更加统一,而且有机的与室外的花园连接起来。
改造后的空间大落地窗户前面一条长长的橡木长桌,扩展了窗前的视眼,同时建筑两侧的砖墙又增加房子主人的隐私。
所有的木材元素都是在工厂加工,现场组装的。特殊的加工工艺,在工厂加工成各种部件,现场组装保证精确度。
Balcorne Street
这个房屋基础通过改造使其降低,便于新建一个面对花园的厨房和用餐区。建筑一侧的天窗有助于自然光线照射进入空间内部,随着光影变化室内呈现不同的感官。
为了在视觉上统一和扩展新建空间,同样颜色的混凝土块被用于建造新增的后墙和厨房和露台区域的地板。建筑预留的门套和窗户下方的砖砌长凳使得这个建筑看起来赋有变化。
Woodfall Street
该住宅位于切尔西保护区内的一个紧凑的城市区域。对于建筑现状面临的问题:卧室和后面的功能区域过于密集紧凑,建筑师的解决方案是扩大和简化一层的外部庭院,使用开放的布局,使用和视觉上都感觉比较放松和开放。
滑轨玻璃门可以完全打开,目的是让建筑外部空气进入房子的中心。
该项目与Michael Tite建筑师事务所合作完成。
Harrow Road
通过一系列的系统设计,这座位于伦敦北部的四层住宅的现有结构被改造,底层区域为新工作室,一层和二层空间主要为生活起居,阁楼上设置比较私密的新卧室。
为了让自然光线进入一层,建筑师提出了一个中央天井的概念,它使得建筑的有了新的生命力。建筑师在改造的新的工作室上方设计了一个明亮的屋顶露台,代替了之前高墙围绕的花园空间。这样的建筑条件为增设厨房和餐厅提供了很好的建筑条件。
为了保证私密性,露台由一系列木隔断围合,中间安装单反光的玻璃材质,室内可以看到室外的景色。
建筑师增设的隔离是儿童的卧室,这个空间材质十分整体,天花、地面、墙面全部为原木色的木材,整个空间只预留了一个超大飘窗,极具很好的视眼。这个项目也是与cathy Curran合作一起完成的。
客服
消息
收藏
下载
最近





























































































