查看完整案例


收藏

下载
最先进的植物研究设施
State-of-the-Art Plant Research Facility
加州大学河滨分校前身为1907年成立的加州大学柑橘实验站,自此加州大学河滨分校便与农业和自然科学结下了深厚渊源。这一历史体现在大学校园的空间和教学中,主校园拥有一整个街区规模的温室,距离大学购物中心只有几个街区。这些温室建于20世纪60年代,形成了一个独特的植物研究园区。
The University of California, Riverside (UCR), is a campus deeply and historically linked with the agricultural and natural sciences, since 1907 when the Citrus Experiment Station of the University of California was founded in the city of Riverside. This heritage is academically and physically represented in the University with a district of greenhouses on the main campus, just blocks from the central University mall. These greenhouses, built in the 1960s, create a unique plant research campus district.
▼项目概览,overview
这个最先进的植物研究设施延续了该校园的传统,在现有的温室区建立了新的温室和研究建筑。该项目受到传统温室中实用主义理念的启发,将外立面、规划和景观组成模块,并由模块驱动设计。
This state-of-the-art plant research facility continues this campus tradition with a new greenhouse and research building sited in the existing greenhouse district. The design is driven by the planning and organizational module of the greenhouses. Inspired by the pragmatism of the historical greenhouses, the module organizes the façade, the planning, and the landscape.
▼项目远观,view in distant
▼道路视角,view from the street
▼建筑入口,view of the entrance
▼玻璃温室,view of the glass greenhouses
▼立面细部,details of the facade
该设施位于校园的重要交叉路口,通过该研究设施的选址可以看出,植物研究对加州大学河滨分校文化和特色的重要性。设计将科学作为校园展示的一部分,将玻璃温室置于底层混凝土结构之上,使来往此处的学生、教职人员和研究人员可以观看并体验校园内的研究。
Located at a significant crossroads on the campus, the facility represents the importance of plant research to the culture and character of UCR by placing a utilitarian research facility in a visible and approachable location. The result is a design that puts science on display—placing the glass greenhouses above a concrete base so that students, faculty, and researchers can see and experience the research happening on campus.
▼楼梯通向二层玻璃温室,stairs leading to the glass greenhouses
▼温室内部,interior view
▼天台视角,view on the terrace
创新规划
Innovative Planning and Modularity
设计施工团队通过规划和研究,提出了一个新的设计概念,为温室增加了15%以上的研究空间。
Through planning and design studies, the design-build team was able to propose a new planning concept that increased the research space of the greenhouses by more than 15%.
▼灯光效果,lighting view
▼模型,model
▼总平面图,masterplan
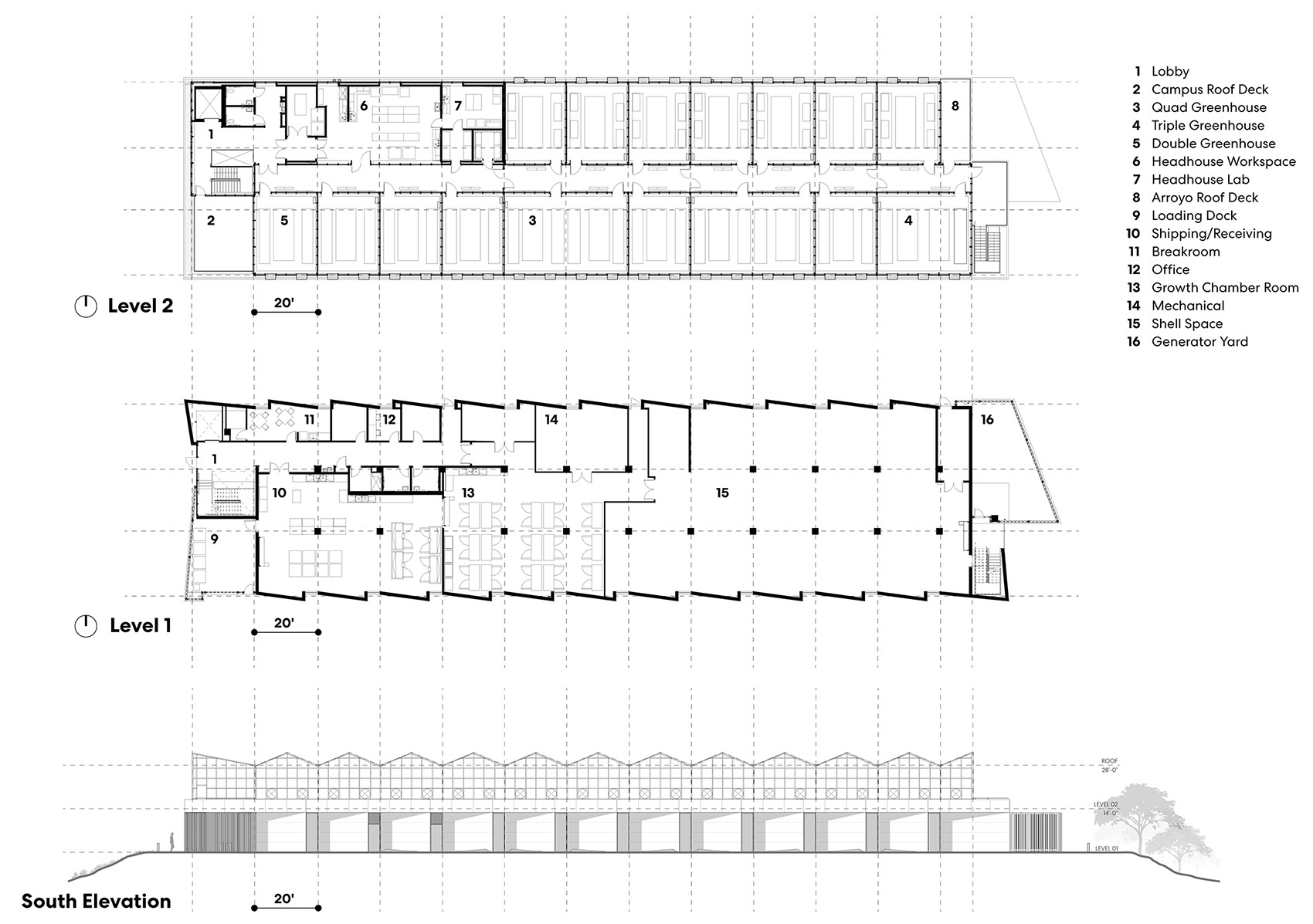
▼平面图&立面,plans & elevation
加利福尼亚大学河滨分校植物研究中心
建筑设计:Perkins&Will
项目地点:美国加利福尼亚州河滨县
竣工日期:2021年
建筑面积:2,863平方米
业主:加利福尼亚大学河滨分校
奖项:
2021年,建筑团队铜奖,美国《建筑设计和施工(Building Design + Construction)》杂志
University of California, Riverside Plant Research 1
Architecture Firm: Perkins&Will
Project location: Riverside, California
Completion Date: 2021
Gross Built Area: 2,863 square meters
Clients: University of California, Riverside
Awards:
Bronze Building Team Award
Building Design + Construction, 2021
客服
消息
收藏
下载
最近

















