查看完整案例


收藏

下载
■ LJID - 象限设计独家专访
人生何不像这满目烟火与漫天繁星一样,一半属于现实,一半奔向理想。而设计,则是理想与现实的交融之处,安下一个叫做“家”的壳,你可以在这尘世中轻轻一抬头,徒手便可摘星辰。
保留倾斜的屋顶再缀以 星辰
这样日月山河与人间烟火便不再冲突
空间以温暖的木色搭配纯净的白
营造温暖自然的家居底色
打开的结构使阳光与空气得以自由流通
之字形楼梯成为空间中的中心
但同时透明的结构又让这种分割藕断丝连
厨房空间分离出导台区域
同时也丰富了餐厅空间的功能
亦可以承担部分待客休闲的用途
餐厅吊灯自顶部悬挂而下
如悬浮般形成与餐桌的联动关系
夜晚可以靠在靠垫上看星空
室外真实的星河璀璨与室内人造的星光点点
主卧同样纳入倾斜的天窗
布置以飘窗 得到一个可供休憩
赏月的场景 空间的排布依结构而设
自在流淌 自然形成的几何结构
带来强大有力的拉伸气场
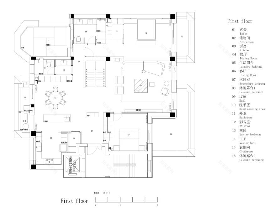
平面图 1 P. 24
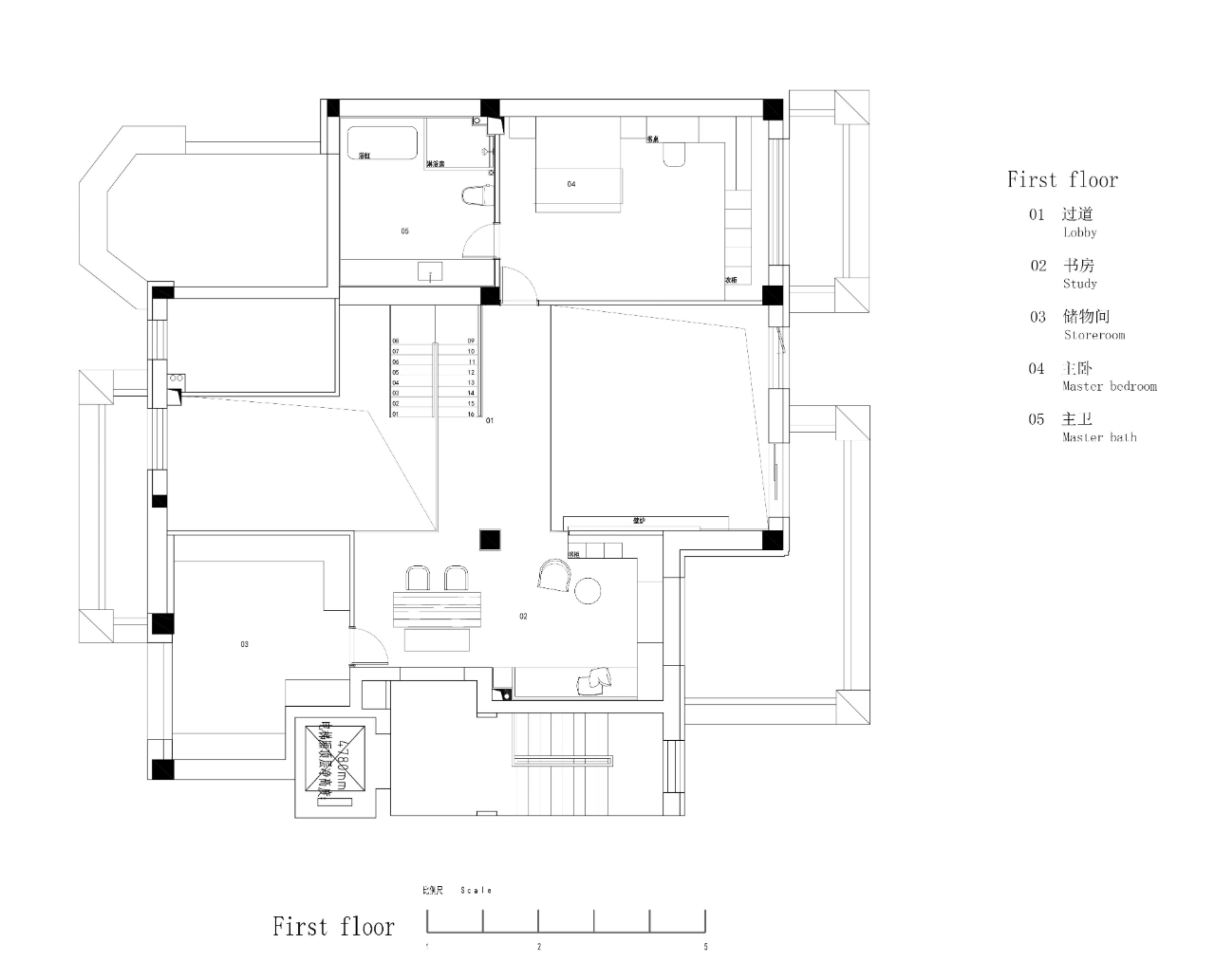
平面图 2 P. 25
C 象限则是“天马行空的奇想”
象限孵化在浩瀚星河的沙漠里,这全是出乎自然。我们可能因为思维形态的关系去做自己喜欢的事情,而不做自己不喜欢的事,同一类人对于落在他们思维偏好范畴内的事一般很容易得到共识。“凡心所向,素履所往”在物质时代的语境下,我们忠于自我的表达获得更真实的共鸣
客服
消息
收藏
下载
最近































