查看完整案例


收藏

下载
新建筑位于贝尔市中心,火车站和湖泊之间的中心地带,它就如同一块高耸于城市缝隙空间中的巨石,以引人注目的尺度俯瞰着周围现有的建筑环境。而建筑立面的设计却保持非常克制的韵律感,与现有的周围建筑环境相适应。
瑞士创意园区大楼坐落于比尔市,是瑞士首栋建成的该类型建筑,后续的五栋将于不同地点陆续建成。本项目为私营企业和研究机构合作开发创新技术和产品提供了优质的基础设施,从而创造出可观的经济价值和大量就业机会。同时,全新的大楼将作为整个思兰地区的创意实验室、人才磁石和创新驱动力,为地区的经济发展作出贡献。
在信息共享、商品交易、团队合作以及灵感交换的过程中,创新思维得以应运而生 —— 所有这些都是通过社会互动实现的,好的基础设施能够协助城市营造发展创新的理想环境。设计面临的挑战在于如何将大致给定的功能框架与复杂的细节结合起来,这两者之间的关系需要在一种非常动态的过程中不断调整。建筑师的主要目标是为这些新兴的产业创造出相应的技术环境以及合理的空间框架,以开放性与灵活性激发在其中工作的人们的思维、计划能力,以及行动力。
新建筑位于贝尔市中心,火车站和湖泊之间的中心地带,它就如同一块高耸于城市缝隙空间中的巨石,以引人注目的尺度俯瞰着周围现有的建筑环境。而建筑立面的设计却保持非常克制的韵律感,与现有的周围建筑环境相适应。立面设计受到钢结构的启发,所有垂直与水平元素都以一种非常完整的构造逻辑方式组合起来。深色的立面在城市肌理中彰显出优雅的风韵与强而有力的存在感。
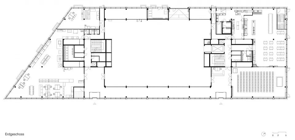
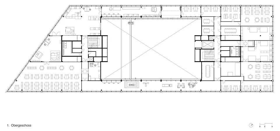
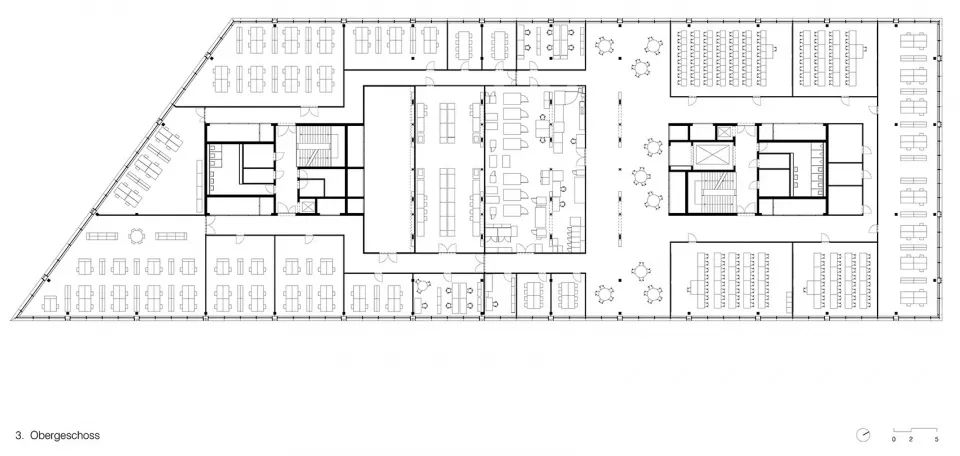
建筑中心的通高空间容纳了本项目的核心 —— 工厂车间。车间大厅周围围绕着门厅、接待区、自助餐厅、礼堂,以及公共展览空间。上部楼层则排布了一系列教室、办公室和实验室。位于五层的开放空间为团队合作与交流提供了理想的环境,被称为开放创新室。
▲满足创新科技产业的办公环境
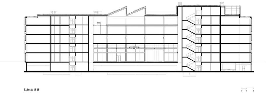
承重结构的选择在整合业主对功能的需求以及技术与结构的限制中具有极其重要的意义。无支撑的双层通高车间,构成了项目的主要空间,车间采用了桁架结构,只有在上层空间中才能看到。因此,该空间获得了最大限度上的层高,同时在追求空间的多功能性、灵活性与空间的表现力之间得到了平衡。
▲暴露在空间中的承重结构
在保持空间风格一致的情况下,将承重结构与技术服务功能分离,意味着该建筑在未来将具有可持续的发展前景。虽然作为一座高科技建筑,需要满足最顶级的技术要求,但是建筑师还是秉承了结构与功能分离的概念,因此造就了这样一座高效的、可扩展的建筑,使它能够与其用户一起发展成长。混凝土结构中没有植入任何元素,一切都是可见的,使其在未来依旧能够保持良好的灵活性。除了结构和立面外,建筑的外壳结构还包括两处配备有供暖系统的垂直核心筒、地下室以及顶层技术室。每一层的室内设计都是根据用户的需求设置的。此外,建设和运营期间的费用也达到了平衡。
▲大面积高窗引入充足自然采光与天空景观
瑞士创新园区大楼作为一个巨大的有机体,其内部的所有系统都是向外部公开,甚至展示出来的,因此,可以说本项目为创意产业的建筑表达作出了巨大的贡献。远离了家乡保护风格(Heimatstil),来自Solothurn Schule的建筑师们创造出了预制和标准化的新概念。这种对工业材料、拼装建筑和建筑秩序致敬的态度,将在瑞士创新园区得以延续。
客服
消息
收藏
下载
最近





























