查看完整案例


收藏

下载
改造前,原始建筑1
改造前,原始建筑2
改造前,原始建筑3
改造前,建筑总平面图
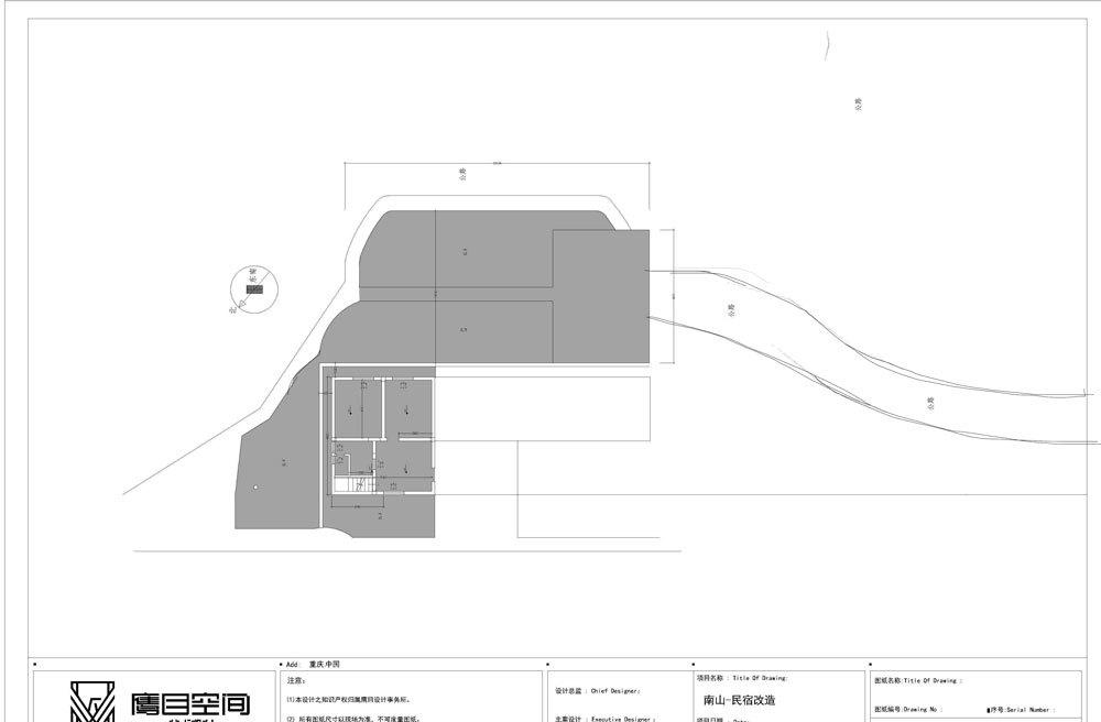
改造后,建筑总平面图
改造中照片,改建楼梯
改造中照片,后花园部分
改造中照片,加建后花园到侧花园楼梯
改造中照片,室外围墙基础
改造中照片,室外亭台
改造中照片,侧门
改造中照片,外墙刷白色漆
改造中照片,花园水景基础完成
改造中照片,室内贴砖
自建房,古典中式,玄关效果图
自建房,古典中式,客厅效果图1
自建房,古典中式,客厅效果图2
自建房,古典中式,客厅效果图3
自建房,古典中式,餐厅效果图
自建房,古典中式,棋牌区效果图
自建房,古典中式,花园效果图1
自建房,古典中式,花园效果图2
自建房,古典中式,花园效果图3
施工图节选。建筑立面图1
施工图节选。建筑立面图1
施工图节选,地面铺装
施工图节选。顶面设计图
施工图节选。大样结构剖面图
客服
消息
收藏
下载
最近






























