查看完整案例


收藏

下载
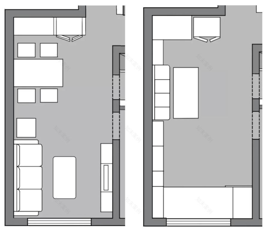
这是莫岚老师最终给到的布局:
最初,设计师思考了两种布局:其实这原本应该是一个常见的中国式客餐厅户型。设计师给出了一个大胆的想法——舍弃了传统意义上的沙发、茶几、电视三件套。一家人并没有太多的犹豫,就采纳了设计师的方案。
住宅一般包含起居室、餐厅、厨房这样的共用空间,和卧室这样的私人空间组成。这些概念是第二次世界大战后从美国传入的,流传已久。我们确实可以从新思考一下这种传统的方式。
布局直接影响到我们的生活方式。原先传统的布局是以电视为中心;而设计师改造后的布局,变成了孩子为中心。孩子有宽敞的活动空间,家人跟孩子在房间互动。
一起来看下这种全新的布局给生活带来的变化。
1、舍弃了电视
考虑到一家人平时没有电视的习惯。当然也顾及到孩子正是视力发育期,担心看电视对孩子的视力有不可逆的伤害。所以就干脆舍弃了电视。
2、160 x 80的大餐桌,喝茶办公两不误。
女业主说,她父亲喜欢茶喝,他习惯在桌子前摆放一套自己的专属茶具。
男业主偶尔在餐桌办公,餐桌底下留了地插。
3、160 x 80的大餐桌,五口人吃饭舒适又放松。一家人可以放松的面对面一边吃饭一边聊天。
如果是原先的方案,不仅姥爷的茶具没地方放;五个人一起吃饭束手束脚,胳膊肘还会打架;会坐在过道的人会没有安全感;冰箱开门也会受到影响。
4、孩子的活动空间翻倍。
常规布局活动空间7平米;
去掉客厅后的布局,孩子的活动空间11平米。
留给孩子的宽敞的活动空间
5、收纳面积翻倍
常规布局收纳面积仅有1.8平方米,去掉客厅后收纳面积达到了5.4平方米。
6、能住八口人
假期的时候奶奶爷爷带着小孙子也来北京住,姥姥姥爷带着孩子睡在主卧;奶奶和小孙子睡在次卧的下铺,爷爷住在次卧的上铺。宝妈睡榻榻米上;宝爸在睡在卡座上——设计师特意把卡座设计成60cm的宽度。
7、用榻榻米代替沙发,功能翻倍孩子可以在上面撒泼打滚,老人偶尔在这里午休。亦动亦静的好地方~
比起沙发,榻榻米靠近窗户,采光更好。
女业主说,榻榻米的收纳比较杂。有厨房的杂粮、超市囤货、换季衣服、被褥等等。分担了各个空间的收纳短板,利用率可以说相当高。
蓝色漆黑板墙是孩子的涂鸦墙,也是宝爸宝妈记录日常工作的备忘录。
榻榻米的一头,女业主说她几乎每天都要在这里工作。
女业主很会持家。设计师曾拜访过两次,家里都超级干净整洁。
虽然有孩子,但东西并不是很多。她更喜欢简单的生活方式,不喜欢被太多的物品所干扰。
女业主还提到,有宝宝还能保持这么整洁,多亏了当初设计师的合理布局。她的职业是一名工程师,严谨又挑剔,能找到这么懂她的设计师很难得。
客厅另一角度
专设玩具空间,宝宝可以自己拿玩具,从小培养收纳意识。
接下来我们说说客餐厅的收纳
客厅定制了一面40cm进深的超级收纳柜。
定制超级收纳柜之前设计师就和屋主把客厅要收纳的物品进行了分类,共六大类:床品:被褥、四件套
宝宝:洗护、纸尿裤、玩具
办公:书籍、文件(说明书、保修单、证件等)、文具(纸、笔、剪刀等杂物)日用:饰品、工具、药箱
餐边柜:酒水茶叶、零食、保健品、水吧、水杯等
大件物品:行李箱三个、旅行包、熨斗、孩子的推车等
最终的布局由设计师和屋主最终商讨决定
书籍和饰品的区域用了玻璃门,餐边柜部分留出了开放的空间,姥姥的十字绣作品作为乔迁心意被挂在视觉中心,同时遮挡起原有强电箱的身影。
刚入住后
因为有宝宝,日积月累东西会逐渐增多,所以女业主留出了足够的备用空间。
最右边的一面柜子做餐边柜,柜子中间一层留43cm的高度做为水吧,提前预留了插座。平时可以直接在上面给宝宝冲奶粉。
宝宝的生活用品和玩具区。
客厅的拐角设计了一个77cm进深的收纳柜,宝妈测量了家里的行李箱、宝宝推车、购物车的尺寸后进行了规划。
卫生间实际使用面积仅3.5平米。
卫生间做了两分离,一人上厕所一人在外面洗漱。
细心的设计师在浴室柜的旁边留出了18cm,用来放塑料盆。
洗衣机的旁边留出20cm,用来放吸尘器、拖把等。
考虑到晾晒空间有限,洗衣机选择了洗烘一体,搭配折叠晾衣杆完成干衣功能。
浴室柜买的成品,成品家具比定制家具更具性价比。
洗漱池的台面面积比较小,充分利用了抽屉收纳。上面放日常用品;下面收纳洗衣液等清洁用品。
淋浴区推拉门的密闭性很好,价格实惠又实用。
客服
消息
收藏
下载
最近



























































